
Prodej bytu 2+kk • 55 m² bez realitkyZakšínská, Praha - Střížkov
Zakšínská, Praha - StřížkovMHD 3 minuty pěšky • Částečně vybaveno • Výtah • Parkování • Garáž • Lodžie 3,8 m²Využít program Bydlím hned, koupím později
RK nekontaktovat. Psát správu. Čislo neplatné.
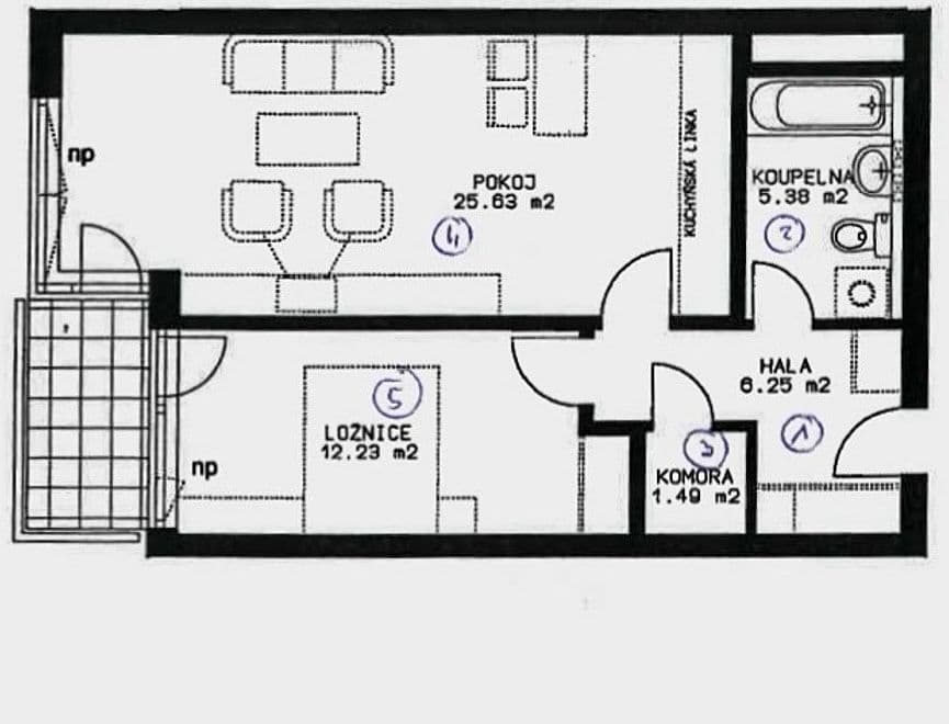
Nabízím k prodeji světlý a prakticky řešený byt 2+kk o velikosti cca celkem cca 54,8 m² (včetně balkonu), situovaný ve 2. nadzemním podlaží moderního rezidenčního projektu FINeP – Park Prosek, Praha 9.
Byt je orientovaný na západ, díky čemuž nabízí dostatek přirozeného světla a příjemnou atmosféru zejména v odpoledních hodinách.
Dispozice a vybavení:
• obývací pokoj s kuchyňskou linkou
• samostatná ložnice
• koupelna s vanou
• zasklený balkon (cca 3,8 m²)
• nová kuchyňská linka v záruce
• filter na vodu / revezní osmóza
• praktické dispoziční řešení
Garáž:
• možnost dokoupení garážového stání
Lokalita:
Velmi klidná a oblíbená část Prahy 9 – Střížkov.
V docházkové vzdálenosti metro C – Střížkov (cca 8 minut), kompletní občanská vybavenost v okolí (obchody, restaurace, školy, školky).
Milovníci přírody ocení blízkost parků – Park Přátelství a Ďáblický háj.
Ideální jako:
• vlastní bydlení
• investice na pronájem (výborná poptávka v lokalitě)
Parametry nemovitosti
| Dostupné od | 31. 7. 2026 |
|---|---|
| Konstrukce budovy | Smíšená |
| Vybaveno | Částečně |
| Číslo inzerátu | 1015508 |
| PENB | B - Velmi úsporná |
| Užitná plocha | 55 m² |
| Cena za jednotku | 150 909,09 Kč / m2 |
| Stav | Velmi dobrý |
|---|---|
| Dispozice | 2+kk |
| Podlaží | 2. podlaží z 7 |
| Vlastnictví | Osobní |
| Umístění | Klidná část |
| Rizika | Prověřit » |
Vybíráte byt?
Mějte jistotu, že máte všechny důležité informace!
Co tato nemovitost nabízí?
| Garáž | |
| Výtah | |
| Parkování |
| Lodžie 3,8 m² | |
| MHD 3 minuty pěšky |
V okolí nemovitosti najdete
Využít program Bydlím hned, koupím později















