Prodej domu 3+1 • 216 m² bez realitky, Porýní-Falc
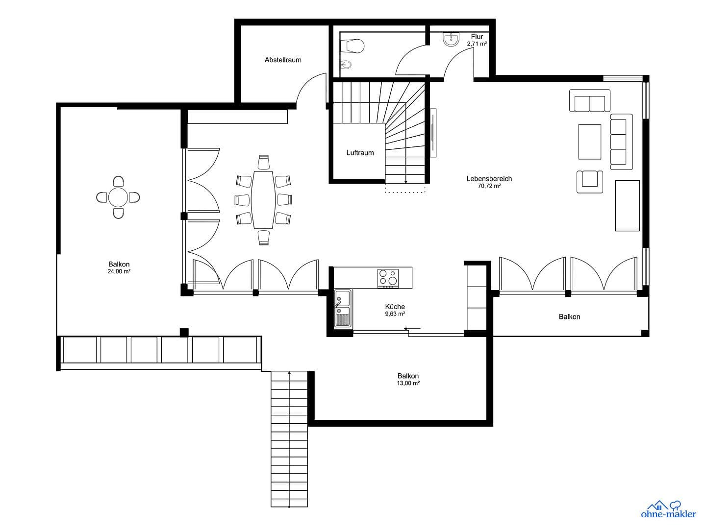
, Porýní-FalcMHD do minuty pěšky • Parkování • GarážDům byl postaven podle vlastního návrhu a na konci roku 2010 byl dokončen jako montovaná stavba. Přes zastřešený vchod vstoupíte do domu a ocitnete se ve velkolepé hale o rozloze 26 m². 1,25 metrů široký točivý schod vede do obytné části v horním patře. Pro optimální výhled se obytná část nachází v horním patře, zatímco ložnice a koupelny jsou v přízemí, aby bylo zajištěno příjemné ochlazení.
Z obývací části, s mnoha podlahovými okny otevíratelnými do stran, se nabízí krásný volný výhled na Rýn a město Oberwesel.
Obytné patro disponuje otevřenou loftovou atmosférou s celkovou plochou 80 m² a střešní výškou 4,5 metru. Šest střešních oken zajišťuje příjemné denní světlo a jsou poháněna elektricky.
Vedle kuchyně (východní strana) se nachází prostorná terasa o rozloze 13 m², kde si můžete vychutnat ranní slunce a snídat. Velmi prostorná toaleta (6,75 m²) s odděleným předprostorem s umyvadlem a úložným prostorem zajišťuje, že na této úrovni najdete a umístíte vše potřebné. Vedle obývacího pokoje se dále nachází terasa o rozloze 25 m² (jižní strana), která je propojena s terasou u kuchyně.
V přízemí se nacházejí dvě prostorné ložnice (24 a 23 m²), každá s vlastní koupelnou, přičemž jedna z nich má navíc šatní prostor. Koupelna (14 m²) je vybavena vanou, dvojitou sprchou, dvěma velkými umyvadly a oddělenou, uzamykatelnou toaletou s bidetem. Koupelna pro hosty (4,25 m²) má sprchu, toaletu a velmi široké umyvadlo.
Světlem prosvětlená zimní zahrada (21 m²) se skvěle hodí jako ateliér. Garáž nabízí plochu 24 m². Základová deska byla vylita a zároveň tvoří střechu 45 m² velkého přístřešku pro auta, který nabízí dostatek parkovacích míst pro dva osobní automobily a případně i jeden přívěs.
Dům je situován tak, že nabízí nádherný výhled na město Oberwesel a Rýn. Oberwesel, s téměř 3 000 obyvateli, je dobře dostupný po dálnici A61 a silnici B9. Město disponuje kompletní infrastrukturou včetně základní a střední školy, tří supermarketů, obchodů Rossmann, Tedi, Kik a velmi kvalitních sportovních zařízení (DJK).
Je dobré vědět, že existuje kvalitní vlakové spojení, které umožňuje půlhodinové cesty do Koblenzu (30 minut) a Mainzu (40 minut). Letiště Hahn se nachází 50 km daleko a je dosažitelné za 55 minut.
Okolí nabízí lesy, třpytivá pole a turistické stezky, které vás zvou na příjemnou procházku.
Dům je vybaven Vaillant tepelným čerpadlem se zemními kolektory, podlahovým vytápěním, moderními dlažbami a sanitárními zařízeními, trojitým zasklením, všestrannými žaluzemi, zvukově izolovanými vnitřními stěnami, množstvím vypínačů a zásuvek, optickým internetem a teplovodním okruhem. Komín navíc poskytuje možnost atmosférického vytápění pomocí dřevěného kamna.
Vynikající tepelná izolace zajišťuje energeticky efektivní dům, který dělá instalaci solárních panelů téměř zbytečnou.
Neexistuje žádný jiný dům v Německu, který by byl navržen podle vlastní vize.
Stručně řečeno, prostorný a komfortní dům (216 m²) s terasami o rozloze 50 m², nabízející jedinečný výhled, ve kterém se budete cítit jako doma každý den. To vše činí život a bydlení v Oberweselu na Rýně velmi atraktivním.



























