Prodej domu 5+1 • 195 m² bez realitky, Hessen
Tento samostatně stojící rodinný dům (rok výstavby 1956) se nachází v jedné z nejoblíbenějších rezidenčních čtvrtí v Bad Homburgu a okouzluje svým jedinečným šarmem i vysokou mírou soukromí. Přibližně 788 m² velký pozemek je nádherně zkrášlený zeleňou a díky živým plotům, keřům a stromům je příjemně stíněný od velmi klidné obytné ulice a sousedů.
Dům je od roku 1980 průběžně a důkladně modernizován. Získal přírodní břidlicovou střechu, střešní plochy byly izolovány, elektrické rozvody modernizovány, v horním patře bylo instalováno okno s podlahou až ke stropu z izolačního skla se zde malým balkónkem před ním, vnější nátěr byl obnoven, ve všech obytných prostorech byl položen parketový podlahový kryt, v suterénu byla přidána další koupelna se sprchou, kanalizace byla zrenovována, na ochranu vodovodních potrubí byla instalována úpravna vody, suterénová izolace byla obnovena a vchod do domu obdržel nové schodiště z světlé žuly atd.
Obytná plocha činí cca 195 m² plus přibližně 100 m² užitné plochy.
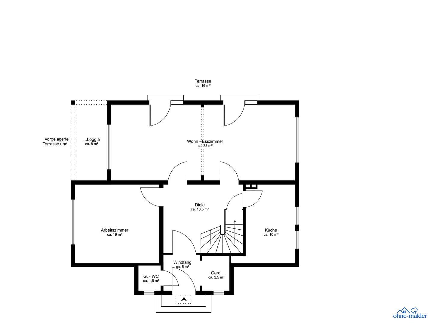
V přízemí se nachází přibližně 38 m² velký obývací/jídelní pokoj se dvěma velkými okny a dvěma terasovými dveřmi. Před ním se nachází pískovcová terasa se stínící markýzou (cca 16 m²) a po straně je krytý volný pokoj (loggia) s přilehlou terasou (cca 8 m²). Dále je tu prostorná pracovna (cca 19 m²) s výhledem do zahrady, vestavěná kuchyň (cca 10 m²) a velkorysý vstupní prostor se šatnou, předsálím, hostinským WC a halou (cca 18 m²).
V horním patře se nachází hlavní ložnice (cca 16 m²) s vlastní koupelnou s vanou a WC, dále dvě dětské místnosti (jedna cca 17 m² s malým balkónkem a druhá cca 13 m²) a sprchová koupelna s WC. Před těmito pokoji je umístěna galerie o rozloze přibližně 12 m².
Půda je upravena jako velká hobby místnost s další skladovací místností, ke kterým je přístup pomocí vysouvacího žebříku.
V suterénu se nachází další koupelna se sprchou/WC, dále dva upravené, vytápěné skladovací prostory (každý cca 13 m²) a prádelna (cca 8 m²).
K domu náleží samostatně stojící garáž s automatickými sekčními dveřmi, přičemž před ní je na příjezdové cestě dostatek místa pro zaparkování dalšího vozidla. Za garáží se nachází velký venkovní posezení s pískovcovou terasou.
Dům se nachází ve vilové čtvrti Ellerhöhe/Zollstock (PSČ 61352) v odkloněné jihozápadní poloze od silnice na velmi klidné vedlejší ulici. Tato oblast je velmi zelená a tvoří ji převážně samostatně stojící, volně postavené rodinné domy. Aby byla zachována stávající vysoká kvalita bydlení, je stavební plán přesně stanoven tak, že stávající zahradní plochy zůstanou zachovány a zahuštění osídlení smí probíhat pouze v přiměřené míře.
Vycházíte vstříc velmi dobré infrastruktuře Bad Homburgu, největšího města v předtaunuské oblasti (cca 55 000 obyvatel) se všemi lékařskými zařízeními, novou krajskou nemocnicí, mateřskými školami, všemi typy škol, nákupními možnostmi, bohatou kulturní nabídkou, mnoha sportovními a volnočasovými zařízeními a veřejnou dopravou.
Před dveřmi máte předtaunuský region se svými lesy a loukami. Římská kastrum Saalburg na Limes, zrekonstruovaná císařem Vilémem II. a celosvětově jediná zcela zrestaurovaná římská kastrum, je autem dosažitelná za 30 minut.
Renomovaná gymnázium Kaiserin-Friedrich, oblíbená Taunus-Therme, Seedammbad (venkovní i krytý bazén) a lázeňský park s tenisovým a golfovým klubem jsou v bezprostřední blízkosti a za pár minut pěšky, stejně jako rekreační oblast Hardtwald. Centrum Bad Homburgu se svými nákupními ulicemi a zámeckým parkem se zámkem bývalých landgrafů z Hesenska-Homburgu je rovněž dostupné pěšky přes lázeňský park. Vzdálenost do centra Frankfurtu přes dálnici A 661 činí cca 16 km.
Celkově tedy jde o vynikající makro- i mikrolokaci s trvalou hodnotou.
• Parketové podlahy (světlý kanadský javor) ve všech obytných prostorech
• Dlaždice v koupelnách a vedlejších místnostech
• Izolovaná okna
• Elektricky ovládané dřevěné rolety v přízemí
• Vestavěná kuchyň s pracovními deskami z granitu
• Centrální plynové topení (modernizováno) s ohřevem teplé vody
• Zařízení na úpravu vody (rok výstavby 2017)
• Markýzy pro terasovou oblast
• Vestavěná skříň v suterénu
Konečná spotřeba energie budovy činí 160,5 kWh/(m²·rok).
Snadno ovladatelné zařízení na úpravu vody od společnosti perma-trade Wassertechnik s názvem „permasolvent aktiv plus“ (rok výstavby 2017) chemicky volně chrání vodovodní potrubí před vodním kamením, zlepšuje energetickou efektivitu, pomocí aktivace kyslíkem působí jako ochrana proti bakteriím a vitalizuje pitnou vodu.
Pracovní desky vestavěné bílé kuchyně jsou vyrobeny z granitu rosa porino.
Poznámky:
– Všechny rozměrové údaje jsou uvedeny bez záruky!
– Aby se předešlo zbytečným snahám, vyřízení dotazů zájemců předpokládá, že předem budou zaskytnuty podrobné informace o financování kupní ceny a solventnosti zájemců (viz VOP bez makléře, realitní inzeráty, paragraf 4 „Kupní pas“).

















