Pronájem bytu 4+1 • 151 m² bez realitkyWestliche Stadtmauerstraße 64 Erlangen Erlangen Bayern 91054
Westliche Stadtmauerstraße 64 Erlangen Erlangen Bayern 91054MHD 2 minuty pěškyTento výjimečný a čerstvě zrekonstruovaný loftový byt v nejvyšším patře spojuje prostorné bydlení, dostatek světla a osobitý charakter v centrální lokalitě Erlangenu. Na více než 130 m² obytné plochy Vás očekává otevřená a působivá atmosféra s dostatkem místa pro volný rozvoj.
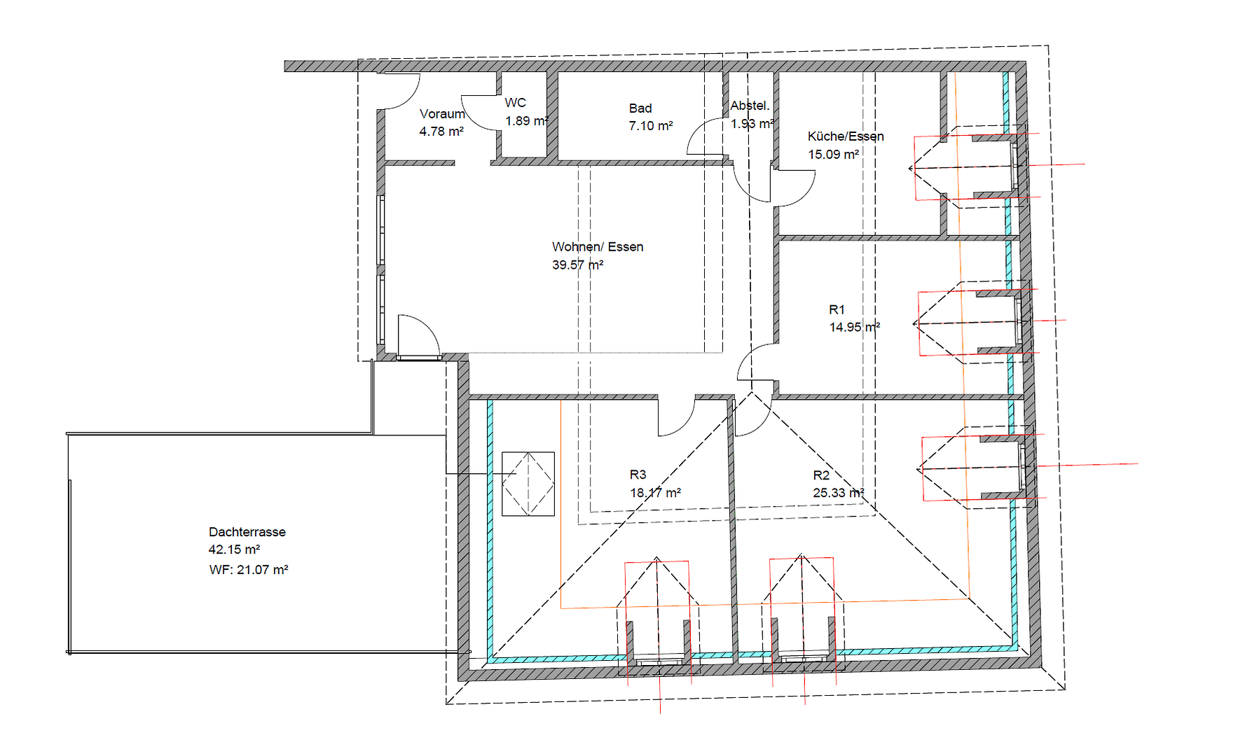
Srdcem bytu je prostorný obývací a jídelní prostor, ze kterého jsou pohodlně dostupné další místnosti. Viditelné dřevěné trámy téměř ve všech pokojích dodávají bytu zvláštní kouzlo a vytvářejí elegantní, teplou atmosféru s pravým loftovým charakterem.
Celkově má byt čtyři dobře řešené pokoje a nabízí tak ideální podmínky pro páry, rodiny nebo pro ty, kteří chtějí bydlení a práci velkoryse propojit. Koupelna je vybavena vanou a sprchou. Navíc je v předsíni k dispozici samostatná toaleta pro hosty.
Skutečným lákadlem je prostorná střešní terasa o velikosti přibližně 42 m². Odtud si můžete užít krásný výhled na Erlangen a zároveň zde najít jedinečné útočiště nad střechami města. Podlahová krytina terasy je aktuálně v procesu obnovy, a proto je využívání střešní terasy do dokončení prací omezeno.
Měsíční celkový nájem po dokončení střešní terasy činí 2 300 €. Tato částka již zahrnuje poplatky a měsíční nájem za vestavěnou kuchyň ve výši 75 €. Dokud nebudou práce na střešní terase dokončeny, celkové nájemné se dočasně sníží o 200 € na 2 100 € měsíčně.
Byt se nachází na atraktivním místě v Erlangenu, spojuje centrální bydlení s vynikající infrastrukturou. Obchodní možnosti, kavárny, restaurace a další denní služby jsou snadno dostupné. Také centrum města, nádraží a veřejná doprava jsou dobře propojeny, což zajišťuje krátké cesty v každodenním životě. Díky blízkosti k univerzitě a významným zaměstnavatelům je lokalita zvláště zajímavá jak pro studenty, tak pro pracující. Okolí navíc nabízí příjemnou atmosféru bydlení s dobrými možnostmi k odpočinku.
• čerstvě zrekonstruovaný loftový byt v nejvyšším patře
• více než 130 m² obytné plochy
• 4 pokoje
• prostorný, otevřený obývací a jídelní prostor
• viditelné dřevěné trámy téměř ve všech místnostech
• střešní terasa o velikosti cca 42 m²
• koupelna s vanou a sprchou
• samostatná toaleta pro hosty
• vestavěná kuchyň je k dispozici
• centrální topení, renovováno v roce 2023
• světlá a prostorná obytná atmosféra
• centrální poloha v Erlangenu
Nájem / Náklady
• měsíční celkový nájem po dokončení střešní terasy: 2 300 €
• v celkovém nájmu je zahrnuto: poplatky a vestavěná kuchyň
• dočasně snížený celkový nájem do dokončení střešní terasy: 2 100 €
• důvod snížení: Využívání střešní terasy je do dokončení prací omezeno.
V okolí nemovitosti najdete
Stále hledáte to pravé?
Nastavte si hlídacího psa. Nabídky vybrané na míru dostanete souhrnně 1× denně e-mailem. S Premium profilem máte k ruce hlídačů rovnou 5 a když se něco objeví, informují vás obratem.









