
Prodej bytu 4+1 • 98 m² bez realitkyVašátkova, Praha - Černý Most
Využít program Bydlím hned, koupím později
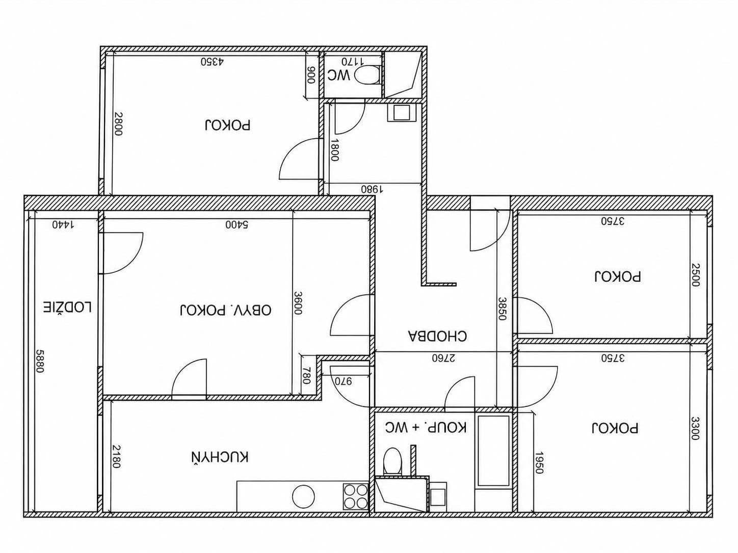
Prostorný byt 4+1/L, 98 m² – 2× WC, lodžie, sklep, 5.NP s výtahem, klidná lokalita | Praha 9 – Černý Most, ul. Vašátkova
Cena: 7 490 000 Kč (+ nesplacená anuita 2 710 000 Kč, která se hradí formou měsíčních splátek družstvu bez prokazování příjmu, částkou 24 300 Kč včetně služeb).
Tento velký byt si tak lze pořídit s nižší počáteční investicí a zbytkovou částku si postupně hradit formou měsíčních plateb.
Dispozice bytu tvoří prostorná předsíň, obývací pokoj se vstupem na lodžii, kuchyně s jídelním koutem, tři samostatné pokoje, koupelna s vanou a toaletou a další samostatná toaleta s umyvadlem, kde je možné po úpravě vybudovat sprchový kout.
Velkou výhodou je také možnost rodinného dvougeneračního využití nebo k pronájmu. Byt je momentálně spolehlivě pronajat, kde nájemní smlouva končí 8/2026. Nový majitel tak může pokračovat s pronájmem nebo se rozhodnout jinak.
Lokalita nabízí klidné bydlení s kompletní občanskou vybaveností – školy, školky, dětská hřiště, obchody i restaurace v docházkové vzdálenosti. Výborná dopravní dostupnost: autobusová zastávka cca 100 m od domu, metro B – stanice Černý Most cca 4 minuty autobusem.
Parkování na parkovišti přímo u domu bez modrých zón. Pod parkovištěm se nachází bezpečnostní kryt. Krásný výhled do přírodního parku z lodžie, která je na JZ.
Prohlídky proběhnou ve vybraných termínech. Doporučuji rezervaci předem.
V případě vážného zájmu je možné o ceně jednat. RK prosím nereagovat !
Parametry nemovitosti
| Dostupné od | 27. 4. 2026 |
|---|---|
| Konstrukce budovy | Panel |
| Vybaveno | Částečně |
| Číslo inzerátu | 1016932 |
| PENB | G - Mimořádně nehospodárná |
| Rekonstrukce | Jádro |
| Umístění | Sídliště |
| Cena za jednotku | 76 428,57 Kč / m2 |
| Stav | Dobrý |
|---|---|
| Dispozice | 4+1 |
| Podlaží | 5. podlaží z 7 |
| Vlastnictví | Družstevní |
| Převod do osobního vlastnictví | Ano |
| Anuita | 2 700 000 Kč |
| Užitná plocha | 98 m² |
Co tato nemovitost nabízí?
| Sklep 10 m² | |
| Výtah | |
| Parkování |
| Lodžie 8 m² |
V okolí nemovitosti najdete
Využít program Bydlím hned, koupím později




