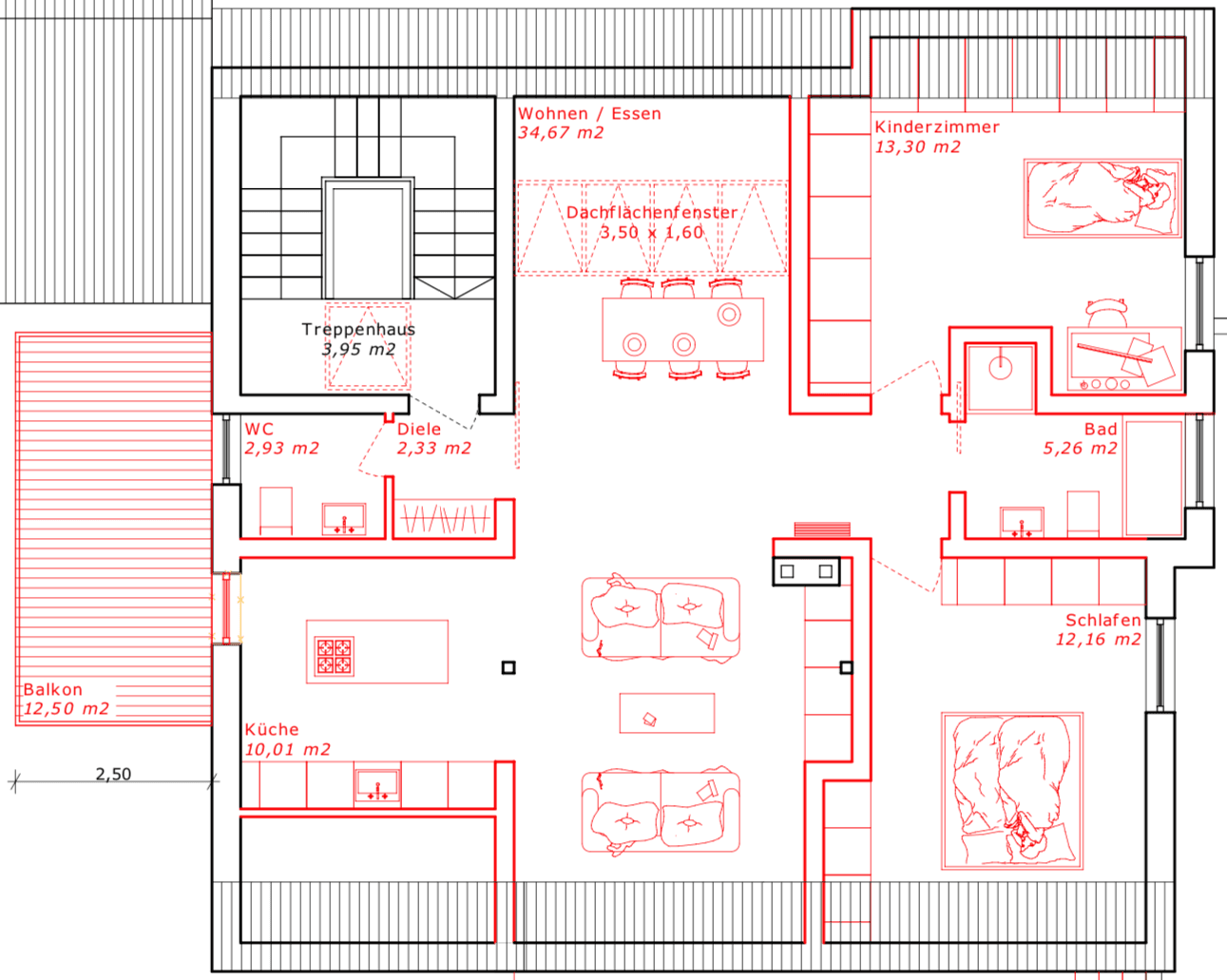
Pronájem bytu 4+1 • 93 m² bez realitky, Bavorsko
, BavorskoMHD 1 minuta pěšky • Výtah • ParkováníKrásný velký a světlý byt k pronájmu.
Vybavení:
– Výtah ze suterénu až do 1. patra
– Velký obývací/jídelní prostor
– Vinylová podlaha
– Podlahové vytápění
– Krbová kamna
– Vestavěná kuchyň
– 1 parkovací místo
Navíc:
– Sklepní místnost, plocha cca 14 m²
Herbertshofen je část obce Markt Meitingen. Má ideální dopravní spojení s B2, město disponuje autobusovým a vlakovým spojením. V Meitingen najdete veškeré potřeby pro každodenní život (supermarkety, školy, školky, lékaři, lékárny, kino). Rekreační oblast u řeky Lech je dosažitelná pěšky.
Dům se nachází centrálně v centru obce, je situován v klidné oblasti a je dostupný po soukromé cestě.
Energetický průkaz: Prohlášení o energetické spotřebě
Spotřeba energie: 61,4 kWh/(m²·rok)
Energetická třída: B
Datum vystavení: 12.04.2019
Platnost do: 04-2029
Rok výstavby (podle energetického průkazu): 1999
Druh vytápění: Podlahové vytápění
Hlavní zdroj energie: Tepelné čerpadlo (vzduch-voda)
V okolí nemovitosti najdete
Stále hledáte to pravé?
Nastavte si hlídacího psa. Nabídky vybrané na míru dostanete souhrnně 1× denně e-mailem. S Premium profilem máte k ruce hlídačů rovnou 5 a když se něco objeví, informují vás obratem.



