Pronájem bytu 5+1 • 160 m² bez realitky, Šlesvicko-Holštýnsko
, Šlesvicko-HolštýnskoMHD 2 minuty pěšky • ParkováníNAD STŘECHAMI LENSANH – OKOUZLUJÍCÍ DVOJPODLAŽNÍ BYT VE STYLEM VYBAVENÉ HISTORICKÉ BUDOVĚ
Tento výjimečný dvojpodlažní byt spojuje historický šarm s moderním komfortem bydlení a nachází se přímo v srdci Lensanhu. V bývalé tiskárně z roku 1924, která prošla v roce 2024 důkladnou a kvalitní rekonstrukcí, vznikly dvě exkluzivní obytné jednotky – tento byt uchvacuje prostorností, světlem a jedinečnými detaily.
S přibližně 160 m² obytné plochy rozložené na dvou úrovních a samostatným vstupem do bytu nabízí pocit bydlení téměř jako v vlastním domě.
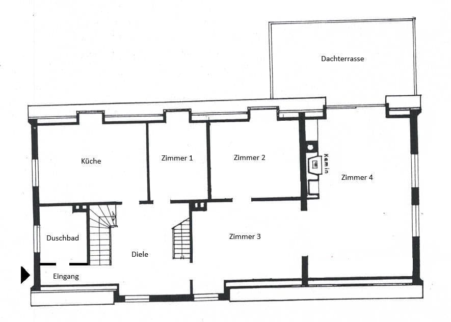
BYDLENÍ A ŽIVOT NA DVOUCH PODLAŽÍCH
V 1. patře vás čeká moderní, prostorná kuchyňská část s velkým místem pro společné vaření a vychutnávání jídla, nové sprchové baníčko s oknem, klidná ložnice, dva velkorysé propojené obývací pokoje s krbem, které ohromují svou otevřeností a světlostí, a přímý vstup na slunnou střešní terasu – ideální místo pro odpočinek nad střechami malebného městečka Lensahn.
Po schodišti v chodbě se dostanete do podkroví, kde se nachází okouzlující bílá koupelna s dekorativními obloukovými okny, dvě samostatné místnosti a průchozí pokoj, ideální jako šatna, čtecí koutek nebo dětský herní prostor.
NÁJEMNÍ PODMÍNKY
Základní nájemné: 1 750 €
Provozní náklady (včetně nákladů na topení): 350 €
Celkové nájemné: 2 100 €
Parkovací místo (v ceně)
Kauce: 5 250 €
Tento jedinečný dvojpodlažní byt oslní svým unikátním charakterem historické budovy, prostorným dispozicím a vybavením, které nezanechává nic na přání – je to domov pro ty, kdo hledají něco výjimečného!
Byt se nachází na atraktivní centrální lokalitě v Lensanhu. Obchody pro každodenní potřeby, lékaři, školy a školky jsou v bezprostřední blízkosti a snadno dosažitelné pěšky.
Lensahn působí díky své kvalitní infrastruktuře a praktické dostupnosti veřejné dopravy a blízkosti Bäderstraße.
Zvláště stojí za zmínku blízkost Baltského moře – oblíbené pláže Lübecker Bucht jsou dosažitelné během několika minut jízdy, což láká na procházky, výlety a relaxační chvíle u moře.
Kombinace centrální polohy a pobřežní blízkosti činí tuto lokalitu mimořádně atraktivní.
HLAVNÍ VLASTNOSTI
• Přibližně 160 m² obytné plochy na dvou úrovních (dvojpodlažní byt)
• Samostatný vstup do bytu zajišťující vysokou míru soukromí
• Stylově zrekonstruovaná historická budova (bývalá tiskárna, rok výstavby 1924)
• Prostorná kuchyňská část s moderním prostředím
• Dva velké propojené obývací pokoje s krbem
• Slunná střešní terasa
• Nové sprchové baníčko s oknem
• Okouzlující bílá koupelna v podkroví s dekorativními obloukovými okny
• Několik flexibilně využitelných místností ideálních pro rodinu, hosty nebo home office
• Designové vinylové podlahy v teplém vzhledu dřeva (v novém stavu)
• Opravené původní dřevěné dveře s kouzlem historické budovy
• Prostorné, světlé místnosti s příjemnou atmosférou bydlení
• Parkovací místo je zahrnuto v ceně nájmu
• Centrální lokalita v Lensanhu, v blízkosti Baltského moře
V okolí nemovitosti najdete
Stále hledáte to pravé?
Nastavte si hlídacího psa. Nabídky vybrané na míru dostanete souhrnně 1× denně e-mailem. S Premium profilem máte k ruce hlídačů rovnou 5 a když se něco objeví, informují vás obratem.









