
Pronájem bytu 3+1 • 72 m² bez realitkyLoppengasse 21 A, , Bádensko-Württembersko
Loppengasse 21 A, , Bádensko-WürttemberskoMHD 3 minuty pěšky • ParkováníPrvní bydlení po rekonstrukci od 01.06.26: V klidné části centrálního Nusslochu jsou k bezproviznímu pronájmu dva velmi pěkné, kompletně zrekonstruované byty o rozloze 72 resp. 32 m² obytné plochy. Váš nový domov má krásný a klidný balkon a bude vybaven kvalitními, bydlení prospívajícími materiály. Vybavení je prvotřídní – keramikou z přírodního kamene, okny z masivního dřeva (částečně novými) a parketovou podlahou.
Pozor: Fotografie pocházejí z již dokončených bytů v přední části objektu. Oba zde nabízené byty jsou momentálně v rekonstrukci.
Jako nájemci jsou vhodní výhradně lidé s trvalým pracovním poměrem na plný úvazek nebo s ručením. Kauce činí tři měsíční nájmy bez zahrnutí nákladů na služby.
Smlouvy na elektřinu a internet si nájemci uzavírají sami, jelikož tyto náklady nejsou zahrnuty do zálohy na provozní náklady.
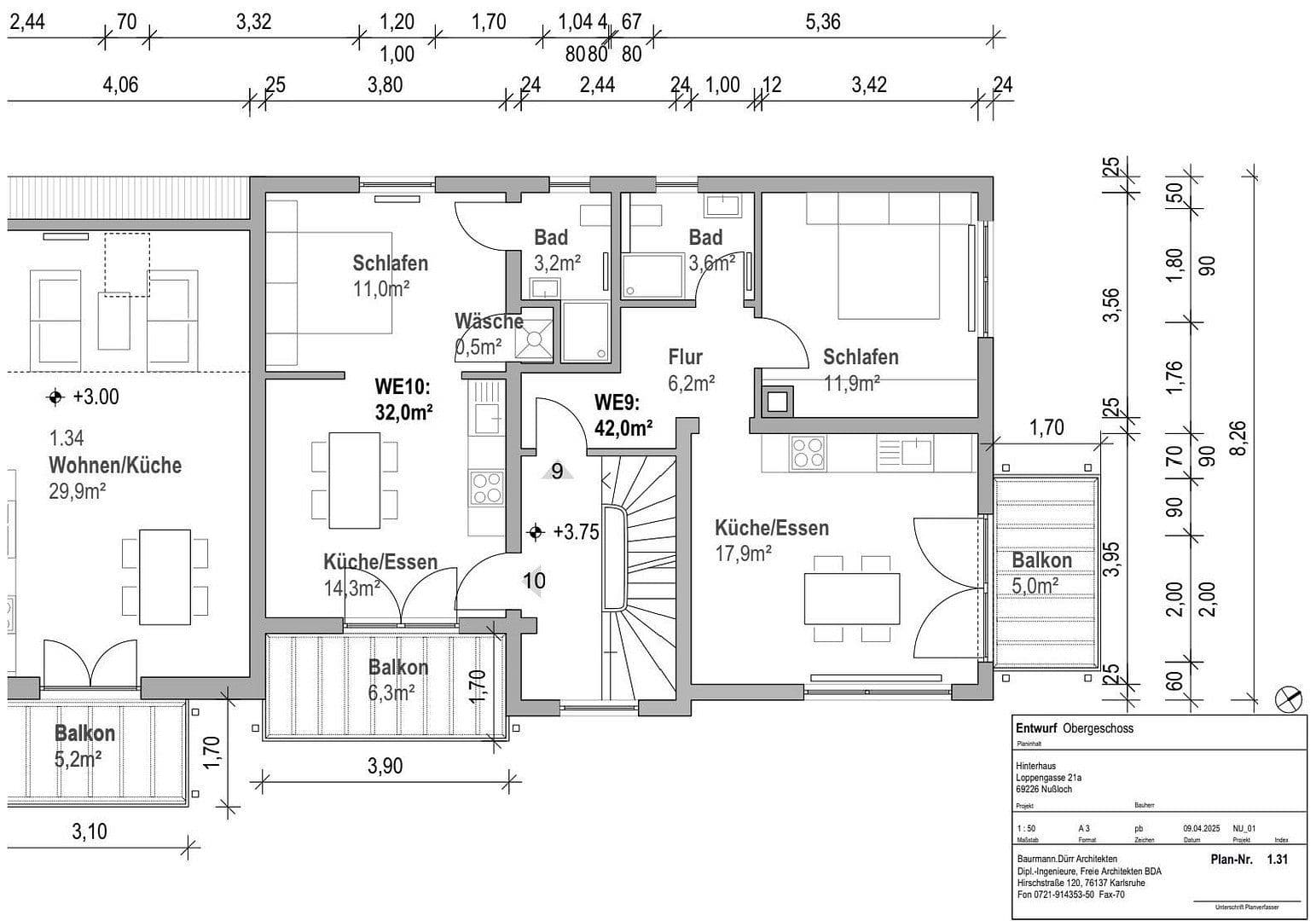
Přehled dostupných bytů a nájmů bez služeb, navíc záloha na provozní náklady + elektřina + internet:
Byty v zadní části budovy, zatím nedokončeně rekonstruované, k dispozici od 01.06.2026:
– Byt 8 v přízemí s přibližně 72 m² a balkonem, nájemné 1030 EUR bez služeb, plus provozní náklady, elektřina a internet. Přibližně k dispozici od 01.06.26. Volitelně s parkovacím místem pro automobil za 70 EUR měsíčně.
– Byt 10 v prvním patře s přibližně 32 m² a balkonem, nájemné 530 EUR bez služeb, plus provozní náklady, elektřina a internet. Přibližně k dispozici od 01.06.26. Volitelně s parkovacím místem pro automobil za 70 EUR měsíčně.
Budova se nachází blízko centra Nusslochu. Obchody, úřady, lékaři (ÖNPV) a školy jsou v bezprostřední blízkosti.
Vybavení je prvotřídní s dlaždicemi z přírodního kamene, okny z masivního dřeva (částečně novými) a parketovou podlahou. Stěny jsou hladce omýté a natřené bílou barvou.
V okolí nemovitosti najdete
Stále hledáte to pravé?
Nastavte si hlídacího psa. Nabídky vybrané na míru dostanete souhrnně 1× denně e-mailem. S Premium profilem máte k ruce hlídačů rovnou 5 a když se něco objeví, informují vás obratem.














