Prodej bytu 3+1 • 104 m² bez realitkyHalle Giebichenstein Sachsen-Anhalt 06114
Obě remizové domy se nacházejí centrálně v dvoře. Byly postaveny mezi lety 2023 a 2025 navýšením stávajících remíz a ohromují moderním designem, kvalitními materiály a energeticky efektivní výbavou, včetně tepelného čerpadla a tepelné izolace s vzhledem cihel (energetický štítek A+).
Parkovací místo nebo garážové stání lze volitelně zakoupit přímo před domem.
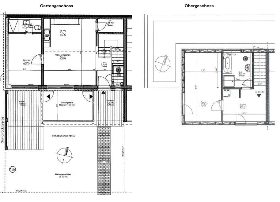
Levý dům (jednotka WE 24) se rozprostírá na dvou patrech: v úrovni zahrady se nachází ložnice s vlastní koupelnou se sprchou a přímým vstupem na zahradní terasu a rovněž otevřený obytný a jídelní prostor s předinstalovanými kuchyňskými připojeními. Následuje luxusní zimní zahrada, vybavená podlahovým topením a všemi mediálními připojeními. Ze zimní zahrady se dostanete dvěma způsoby na terasu a do zahrady.
Pro zajištění soukromí jsou na oknech instalovány textilní rolety s funkcí ochrany před slunečními paprsky a zároveň zajišťující možnost nahlédnutí zvenčí. Rolety lze ovládat elektricky pomocí dálkových ovladačů a jsou navrženy tak, aby z vnitřní strany bylo možné ven vidět.
Vstupní prostor doplňuje návštěvnická toaleta. Velká okna sahající téměř ze země i střešní okno nad kuchyní zajišťují přísun denního světla a cirkulaci vzduchu.
V horním patře se nachází velká ložnice, pracovní kout a moderní koupelna s okenním prvkem, vybavená vanou i sprchou, dále pak prádelna s připojením pro pračku a sušičku a dalšími úložnými prostory.
Podlahy jsou pokryty kvalitním dubovým parketovým dřevěným povrchem. Koupelna disponuje podlahovým topením a ručníkovačem.
Mozartova ulice probíhá horizontálně od východně umístěného Paulusviertel směrem k západně situované Saale a protíná čtvrť Giebichenstein v severní části centra města.
Čtvrť Giebichenstein dostala své jméno podle hradu Giebichenstein, který se nachází přímo na řece Saale a byl postaven již ve 12. století. Na hradním pozemku se od roku 1919 nachází část uměleckého kampusu Vysoké umělecké školy v Halle. Zástavba této čtvrti pochází převážně z 19. století a od roku 1990 byla postupně zrekonstruována. V blízkosti zoo a směrem k řece Saale převládají vilové budovy s předzahrádkami a vzácnou zeleňovou výsadbou. Díky blízkosti řeky Saale a částečně historickým parkovým a zeleným plochám (Amtsgarten, Reichardts Garten, Heinrich-Heine-Park) patří tato čtvrť mezi nejzazelenější čtvrti. V této oblasti žije přibližně 10 000 obyvatel.
Číslo domu 18 na Mozartově ulici představuje velmi klidnou adresu, nacházející se přímo naproti zadní části muzea přírodních věd.
V nedaleké ulici Reil se nachází několik zastávek tramvaje a autobusu. Lidový park, další parkové plochy i řeka Saale jsou dosažitelné pěšky v řádu méně než 500 metrů.
Domy na adresách Mozartova ulice 16, 17 a 18 byly postaveny v 30. letech 20. století jednotným stavebním stylem a dnes tvoří renovovaný chráněný památný obytný komplex. Tři přední domy byly postaveny bez bočních křídel či příčných budov, což umožnilo vznik prostorné dvůrkové plochy za domy. Nabízené remizy patří ke domu číslo 18.
Remizy byly přeměněny na moderní dvojdům. Samotný dvůr je prostorný a udržovaný se zelení. V dalších remizách jsou umístěna parkovací místa pro kola, technické zázemí domu a garáž. Přístup k remizám je možný skrze vjezd domu číslo 18.
Při navýšení střešní plochy u tří předních domů byla kromě nové krytiny zrekonstruována také fasáda, vstupní prostory, schodiště, společná elektrická instalace, vjezd a další oblasti.
Garáž nebo/neb. parkovací místo na dvoře je možné (viz expozice).






























