Prodej domu 5+kk • 150 m² bez realitkyNová Ves - Mlýnice, Liberecký kraj
Tato nemovitost již od 45 069 Kč měsíčně s roční úrokovou sazbou od 4,79 %.
Nabídka novostavby moderního, nízkoenergetického rodinného domu, kolaudovaného v roce 2023.
Dům stojí na malebném místě, uprostřed malé osady Mlýnice, necelý kilometr nad Mlýnickou vodní nádrží. Poklidná osada je obklopená okolními bohatými lesy a loukami, zároveň je však místo výborně přístupné hned z několika směrů. Lokalita kombinuje venkovský klid s dostupností velkého města a stává se tak ideálním místem pro ty, kdo chtějí bydlet blíž k přírodě, ale zároveň mít město s obchody a službami takříkajíc „za rohem“.
Jednopodlažní dům s obytným podkrovím a velkým půdním prostorem stojí na vlastním pozemku o výměře 828m2.
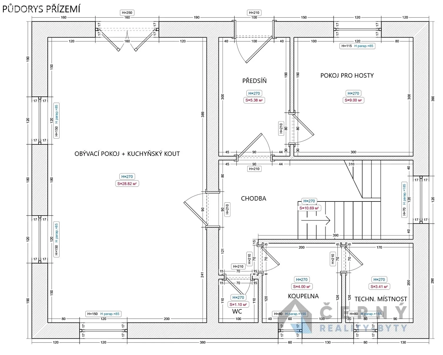
Dispozičně je řešen jako 5+kk se dvěma koupelnami a technickou místností. Užitná plocha objektu činí 153m2.
Dům je kompletně vybaven moderními technologiemi. Vytápění je řešeno tepelným čerpadlem vzduch/voda, v celém objektu je podlahové topení. V domě je instalován energeticky efektivní splitový klimatizační systém. Okna jsou opatřena trojskly, podlahové krytiny tvoří vinyl a dlažba.
V přízemí objektu se nachází vstupní předsíň, velmi prostorný obývací pokoj s kuchyňským koutem a výstupem na zahradu, pokoj pro hosty, koupelna se sprchovým koutem, samostatné WC a technická místnost. Moderní kuchyňská linka je kompletně vybavena spotřebiči včetně lednice a myčky nádobí. Ve druhém nadzemním podlaží jsou umístěny tři ložnice, prostorná koupelna s vanou a samostatná toaleta. Z chodby v patře je po výklopném schodišti přístup do velkého úložného půdního prostoru.
Celý dům působí velmi příjemným a útulným dojmem a je vybaven vkusným nábytkem a zařizovacími předměty. V případě zájmu je možnost většinu vybavení v domě ponechat.
Naprosto rovinatý pozemek kolem domu je oplocený a osázený pouze trávou, takže ponechává budoucímu majiteli možnost vytvořit si zahradu podle svých představ.
Termín uvolnění ihned.
Bydlení, které vám poskytne klid a soukromí, dostatek vlastního prostoru a zároveň komfortní zázemí moderní novostavby. Bez práce, bez starostí - vše nové, v perfektním stavu - jen se nastěhovat a spokojeně žít.
Parametry nemovitosti
| Dostupné od | 29. 4. 2026 |
|---|---|
| Konstrukce budovy | Cihla |
| Vybaveno | Částečně |
| Nízkoenergetický | Ano |
| PENB | B - Velmi úsporná |
| Užitná plocha | 150 m² |
| Rizika | Prověřit » |
| Stav | Novostavba |
|---|---|
| Dispozice | 5+kk |
| Číslo inzerátu | 1017895 |
| Vlastnictví | Osobní |
| Poloha domu | Samostatný |
| Plocha pozemku | 830 m² |
| Cena za jednotku | 71 666,67 Kč / m2 |
Co tato nemovitost nabízí?
| MHD 1 minuta pěšky |
| Parkování | |
| Terasa 40 m² |
V okolí nemovitosti najdete
Tato nemovitost již od 45 069 Kč měsíčně s roční úrokovou sazbou od 4,79 %.
















