
Pronájem bytu 3+1 • 73 m² bez realitkyU Kostela, Jablonec nad Nisou - Mšeno nad Nisou, Liberecký kraj
Máte o nabídku zájem?
Ušetřete 14 500 Kč na provizi a komunikujte se všemi majiteli.
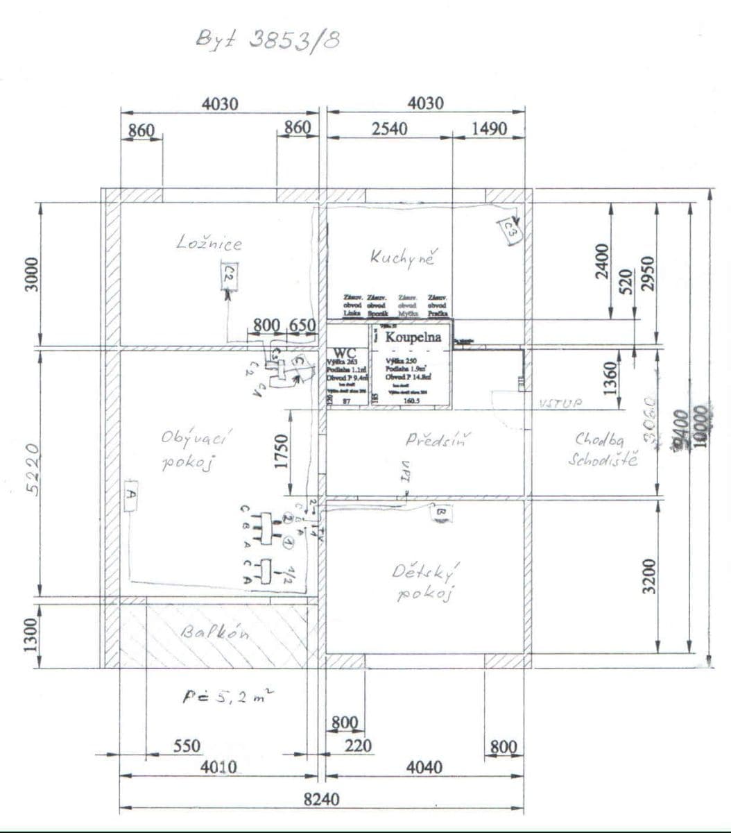
Nabízím dlouhodobý pronájem bytu 3+1 po celkové starší rekonstrukci s lodžií, 73 m2, ve 4. nadzemním podlaží s výtahem, se sklepní kójí, sklepní místnost pro kola v ulici U Kostela 3853/17, v Jablonci nad Nisou, s orientací na JZ.
Byt je v revitalizovaném-kompletně zatepleném bytovém domě se zasklenou lodžií, dokončená realizace bude 1.12.2025.
V bytě jsou nová plastová okna s trojskly, dlažba, v místnostech plovoucí podlaha, zátěžový koberec. Byt je částečně zařízen, kuchyňská linka, kombinovaný plynový sporák s elektrickou troubou, zařízená koupelna s vanou, zastavěné WC, dřevěný kryt na radiátoru v kuchyni, dřevěná světelná rampa a další.
Byt je kompletně vymalován.
Byt je vhodný pro rodinu s dětmi, pro 2 až 4 osoby, nekuřáci, bez větších zvířat.
Další vybavení, eventuálně úpravy si můžou zrealizovat ke své spokojenosti, dle svých představ uživatelé bytu.
Vytápění ústřední. Zajištěn úklid společných prostor domu. Sklepní zamykatelná místnost pro ukládání kol.
Cena za služby, energie dle počtu osob (záloha na služby je pro 1 osobu).
Cena nájmu: 14 500 Kč
Záloha na služby: 3 500 Kč (topení, tep. a st. voda, výtah, osvětlení spol. prost., pevný dom. odpad, úklid, správa...)
Záloha na energie: 1 500 Kč (elektřina, plyn - přihlášeno na pronajímatele)
Celková cena: 19 500 Kč
Vratná kauce: 35 000 Kč
Byt je k dispozici od 1.12.2025.
Bydlení na dobré adrese - supermarket Kaufland, Bus MHD, zdravotní středisko, lékárna, základní škola Arbesova, banka, sportoviště, tři přehrady ....
Parametry nemovitosti
| Stáří | 30 - 50 let |
|---|---|
| Stav | Velmi dobrý |
| Dispozice | 3+1 |
| Podlaží | 4. podlaží z 8 |
| Vytápění | Ústřední |
| Vlastnictví | Osobní |
| Rekonstrukce | Kompletní |
| Užitná plocha | 73 m² |
| Dostupné od | 1. 12. 2025 |
|---|---|
| Konstrukce budovy | Panel |
| Vybaveno | Částečně |
| Provedení | Standardní |
| Číslo inzerátu | 341072 |
| PENB | C - Úsporná |
| Umístění | Klidná část |
| Cena za jednotku | 199 Kč / m2 |
Co tato nemovitost nabízí?
| Sklep 3 m² | |
| Výtah | |
| Parkování |
| Lodžie 5,2 m² | |
| MHD 1 minuta pěšky |
V okolí nemovitosti najdete
Máte o nabídku zájem?
Ušetřete 14 500 Kč na provizi a komunikujte se všemi majiteli.
Stále hledáte to pravé?
Nastavte si hlídacího psa. Nabídky vybrané na míru dostanete souhrnně 1× denně e-mailem. S Premium profilem máte k ruce hlídačů rovnou 5 a když se něco objeví, informují vás obratem.




















