
Pronájem bytu 1+kk • 32 m² bez realitkyNa Břasích, Hýskov - Hýskov, Středočeský kraj
Máte o nabídku zájem?
Ušetřete 10 000 Kč na provizi a komunikujte se všemi majiteli.
Pronajmu zrekonstruovaný podkrovní byt 32 m2 v jednopodlažním domě, částečně vybavený. Preferuji dlouhodobý pronájem. V osobním vlastnictví, RK prosím nepište ani nevolejte.
K bytu náleží:
-kůlna/dílna 12 m2 s elektřinou (postavená 2019)
-terasa 12 m2 (postavená 2020)
-parkoviště s kamerovým systémem
Dispozice je neobvyklá. Nejedná se čistě o byt ve stylu paneláku - nabízí zajímavý benefit v podobě dílny a terasy - možnost práce s nářadím, uskladnění kol a motorek, posezení v soukromí
poplatky 3000,- Kč zahrnují:
-Vodu
-elektřinu
-plyn
-svoz odpadu 1x týdně
Dům je v Hýskově u Berouna u hlavní silnice u řeky, dostupnost 200 m autobus a vlak. nádraží, 500 m dvě restaurace, jednota, večerka, obecní úřad.
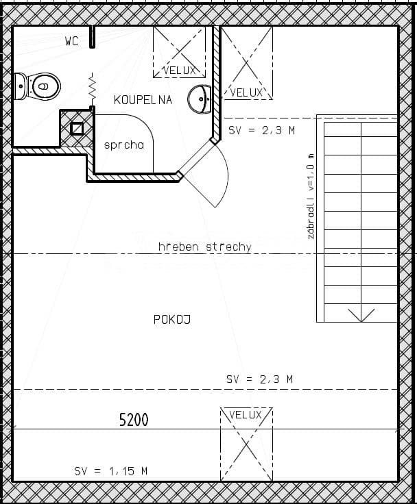
V bytě je jedna velká místnost s kuchyňkou, koupelna se sprchovým koutem a WC. Střešní okna jsou v každé místnosti. byt NENÍ dispozičně vhodný pro více než 2 osoby. Na bytu se po rekonstrukcích v letech 2012 a 2020 neustále pracuje, proto se můžou fotografie drobně lišit.
Vchod a předsíňka je společná se spodním bytem, který mám také ve vlastnictví. Tento společný prostor 3m2 není započítán do uvedené výměry.
Sprchový kout, trouba, sporák, pračka, vestavěný nábytek, spaní v patře.
Internetová přípojka DSL 100/20 Mbit je v bytě zřízená, výběr poskytovatele a tarifu připojení k internetu je na vás.
Vratná kauce 26.000 Kč s dvouměsíční výpovědní dobou.
Parametry nemovitosti
| Dostupné od | 1. 5. 2026 |
|---|---|
| Dispozice | 1+kk |
| Podlaží | 2. podlaží z 2 |
| Číslo inzerátu | 433427 |
| PENB | G - Mimořádně nehospodárná |
| Umístění | Klidná část |
| Cena za jednotku | 313 Kč / m2 |
| Konstrukce budovy | Cihla |
|---|---|
| Vybaveno | Částečně |
| Vytápění | Ostatní |
| Vlastnictví | Osobní |
| Rekonstrukce | Kompletní |
| Užitná plocha | 32 m² |
Co tato nemovitost nabízí?
| MHD 4 minuty pěšky |
| Parkování | |
| Terasa 12 m² |
V okolí nemovitosti najdete
Máte o nabídku zájem?
Ušetřete 10 000 Kč na provizi a komunikujte se všemi majiteli.
Stále hledáte to pravé?
Nastavte si hlídacího psa. Nabídky vybrané na míru dostanete souhrnně 1× denně e-mailem. S Premium profilem máte k ruce hlídačů rovnou 5 a když se něco objeví, informují vás obratem.





















