
Pronájem bytu 3+1 • 75 m² bez realitkySrbská, Brno - Královo Pole, Jihomoravský kraj
Máte o nabídku zájem?
Ušetřete 27 500 Kč na provizi a komunikujte se všemi majiteli.
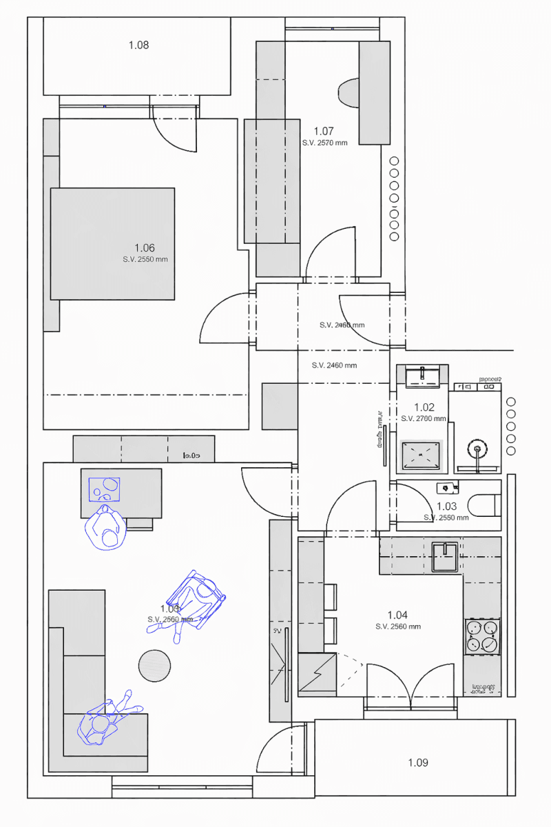
Nabízím k pronájmu nově zrekonstruovaný, ještě neobývaný, byt 3+1 s dvěma balkóny a garáží na ulici Srbská v Brně - Králově Poli.
Byt se nachází v třetím patře cihlového domu. Z prostorné předsíně jsou přístupné všechny tři pokoje, kuchyně, koupelna se sprchovým koutem a samostatné WC. K bytu náleží i zděná sklepní kóje. Na uzavřeném dvoře se nachází zděná garáž.
Byt se nachází v lokalitě s výbornou dostupností (trolejbus, tramvaj) a v blízkosti Technologického parku a VUT.
Po dokončené rekonstrukci se čeká již jen na vestavěnou skříň v ložnici, skříň s lavicí v obývacím pokoji a uzavřenou skříň na chodbě - vše bude na míru od stolaře.
Byt je k dispozici ihned, s předpokládaným dovybavením do poloviny dubna.
Cena pronájmu je 27500 Kč + zálohy na energie (4500 Kč).
Parametry nemovitosti
| Dostupné od | 15. 4. 2026 |
|---|---|
| Konstrukce budovy | Cihla |
| Vybaveno | Částečně |
| Číslo inzerátu | 502085 |
| Rekonstrukce | Kompletní |
| Užitná plocha | 75 m² |
| Stav | Po rekonstrukci |
|---|---|
| Dispozice | 3+1 |
| Podlaží | 3. podlaží z 4 |
| Vlastnictví | Osobní |
| Umístění | Klidná část |
| Cena za jednotku | 367 Kč / m2 |
Co tato nemovitost nabízí?
| Balkón 3,7 m² | |
| Garáž | |
| Lodžie 3,8 m² |
| Sklep 3 m² | |
| Parkování |
V okolí nemovitosti najdete
Máte o nabídku zájem?
Ušetřete 27 500 Kč na provizi a komunikujte se všemi majiteli.
Stále hledáte to pravé?
Nastavte si hlídacího psa. Nabídky vybrané na míru dostanete souhrnně 1× denně e-mailem. S Premium profilem máte k ruce hlídačů rovnou 5 a když se něco objeví, informují vás obratem.
















