
- 3+kk
- 63 m²
Máte o nabídku zájem?
Ušetřete 12 300 Kč na provizi a komunikujte se všemi majiteli.
Dlouhodobý pronájem bytu.
Světlý byt ve 3. patře cihlového domu, bez výtahu, s ideální polohou - 5 minut pěšky od autobus. a vlak. nádraží a 10 minut pěšky od centra města, v okolí vzrostlá zeleň.
Parkování možné před domem nebo ve dvoře.
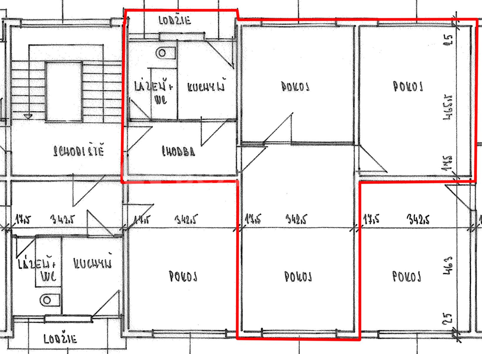
Dispozice bytu: dvě ložnice 12 a 15 m2 situované na východ, obývací pokoj 17,5 m2 sit. na západ.
Kuchyň (sporák na elektřinu, v domě není plyn zaveden) je samostatná místnost se vstupem na prostorný balkón.
Koupelna a WC jsou společně.
Typ vytápění: centrální, radiátory.
K bytu náleží zděný sklep v přízemí a jedna sklepní kóje.
Dům byl v 2022 zateplen a v bytech vyměněna okna.
| Stáří | Nad 50 let |
|---|---|
| Stav | Po rekonstrukci |
| Dispozice | 3+1 |
| Podlaží | 3. podlaží z 4 |
| Vytápění | Ústřední |
| Vlastnictví | Osobní |
| Rekonstrukce | Interiér |
| Užitná plocha | 64 m² |
| Dostupné od | 1. 5. 2026 |
|---|---|
| Konstrukce budovy | Cihla |
| Vybaveno | Částečně |
| Provedení | Standardní |
| Číslo inzerátu | 522143 |
| PENB | C - Úsporná |
| Umístění | Klidná část |
| Cena za jednotku | 192,19 Kč / m2 |
| Balkón 8 m² | |
| MHD 4 minuty pěšky |
| Sklep 6 m² | |
| Parkování |
Máte o nabídku zájem?
Ušetřete 12 300 Kč na provizi a komunikujte se všemi majiteli.

Stále hledáte to pravé?
Nastavte si hlídacího psa. Nabídky vybrané na míru dostanete souhrnně 1× denně e-mailem. S Premium profilem máte k ruce hlídačů rovnou 5 a když se něco objeví, informují vás obratem.