
Pronájem bytu 1+1 • 35 m² bez realitkyDlouhá, Nový Jičín - Nový Jičín-Dolní Předměstí, Moravskoslezský kraj
Dlouhá, Nový Jičín - Nový Jičín-Dolní Předměstí, Moravskoslezský krajMHD 3 minuty autem • Částečně vybaveno • Výtah • Sklep 4 m²Máte o nabídku zájem?
Ušetřete 7 500 Kč na provizi a komunikujte se všemi majiteli.
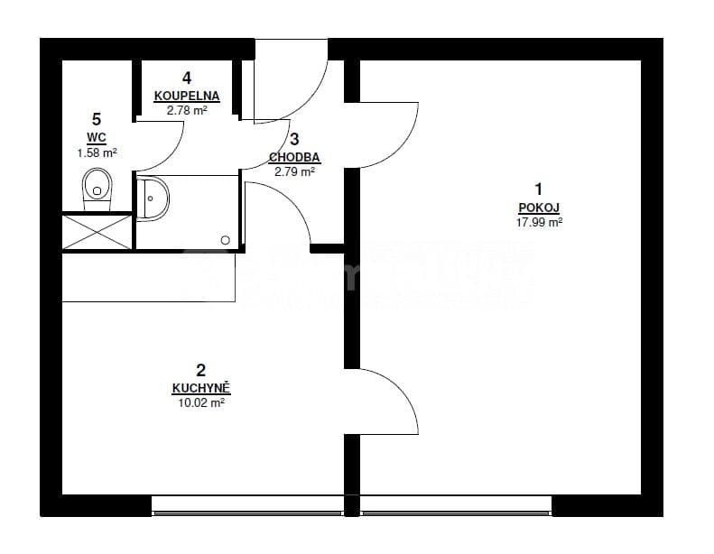
Nabízíme k pronájmu bytovou jednotku 1+1 podlahové ploše 35 m2, která se nachází v 2.NP šestipodlažního panelového domu na ulici Dlouhá v Novém Jičíně.
Byt samotný je v původním udržovaném stavu. WC je samostatné a přístupné přes koupelnu. K bytu patří sklepní kóje. V domě je osobní výtah. Parkovací kapacita je přímo u domu. V lokalitě je dostupná veškerá občanská vybavenost a dětské hřiště.
Byt je nevybaven. Pouze v kuchyni je nová kuchyňská linka a plně funkční kuchyňský sporák s troubou Mora.
Cena nájmu 7500 Kč + veškeré energie a služby 3860 Kč formou zálohy s ročním vyúčtováním (topení: 500 Kč, teplá voda: 1 350 Kč, studená voda: 430 Kč, plyn: 300 Kč, elektřina: 740 Kč, domovní služby: 240 Kč, internet 300 Kč). Cena za energie a služby je pro cca dvě osoby. Vytápění je z centrálního teplovodu. Okna orientovaná na jih.
Byt je nekuřácký stejně jako veškeré společné prostory v domě.
Prohlídky jsou možné dle domluvy.
Kauce ve výši 18 000 Kč.
Byt je k dispozici ihned.
Parametry nemovitosti
| Dostupné od | 1. 2. 2026 |
|---|---|
| Konstrukce budovy | Panel |
| Vybaveno | Částečně |
| Vytápění | Vzdálené |
| Vlastnictví | Osobní |
| Umístění | Klidná část |
| Cena za jednotku | 214 Kč / m2 |
| Stav | Dobrý |
|---|---|
| Dispozice | 1+1 |
| Podlaží | 2. podlaží |
| Číslo inzerátu | 576476 |
| PENB | G - Mimořádně nehospodárná |
| Užitná plocha | 35 m² |
Co tato nemovitost nabízí?
| Bezbariérový přístup | |
| MHD 3 minuty autem |
| Sklep 4 m² | |
| Výtah |
V okolí nemovitosti najdete
Máte o nabídku zájem?
Ušetřete 7 500 Kč na provizi a komunikujte se všemi majiteli.

Pronájem bytuLidická, Kopřivnice - Kopřivnice, Moravskoslezský kraj- 2+1
- 53 m²
8 500 Kč + 4 700 Kč10 000 Kč
Ušetříte 1 500 Kč
Stále hledáte to pravé?
Nastavte si hlídacího psa. Nabídky vybrané na míru dostanete souhrnně 1× denně e-mailem. S Premium profilem máte k ruce hlídačů rovnou 5 a když se něco objeví, informují vás obratem.








