
Pronájem bytu 2+kk • 60 m² bez realitkyMoravanská, Praha - Vinoř
Moravanská, Praha - VinořMHD 4 minuty pěšky • Částečně vybaveno • ParkováníMáte o nabídku zájem?
Ušetřete 23 000 Kč na provizi a komunikujte se všemi majiteli.
K pronájmu pro dvě seriozní pracující osoby je k disozici od 01.05.2026. Prosím pošlete na sebe Vaše tel.číslo, nebo
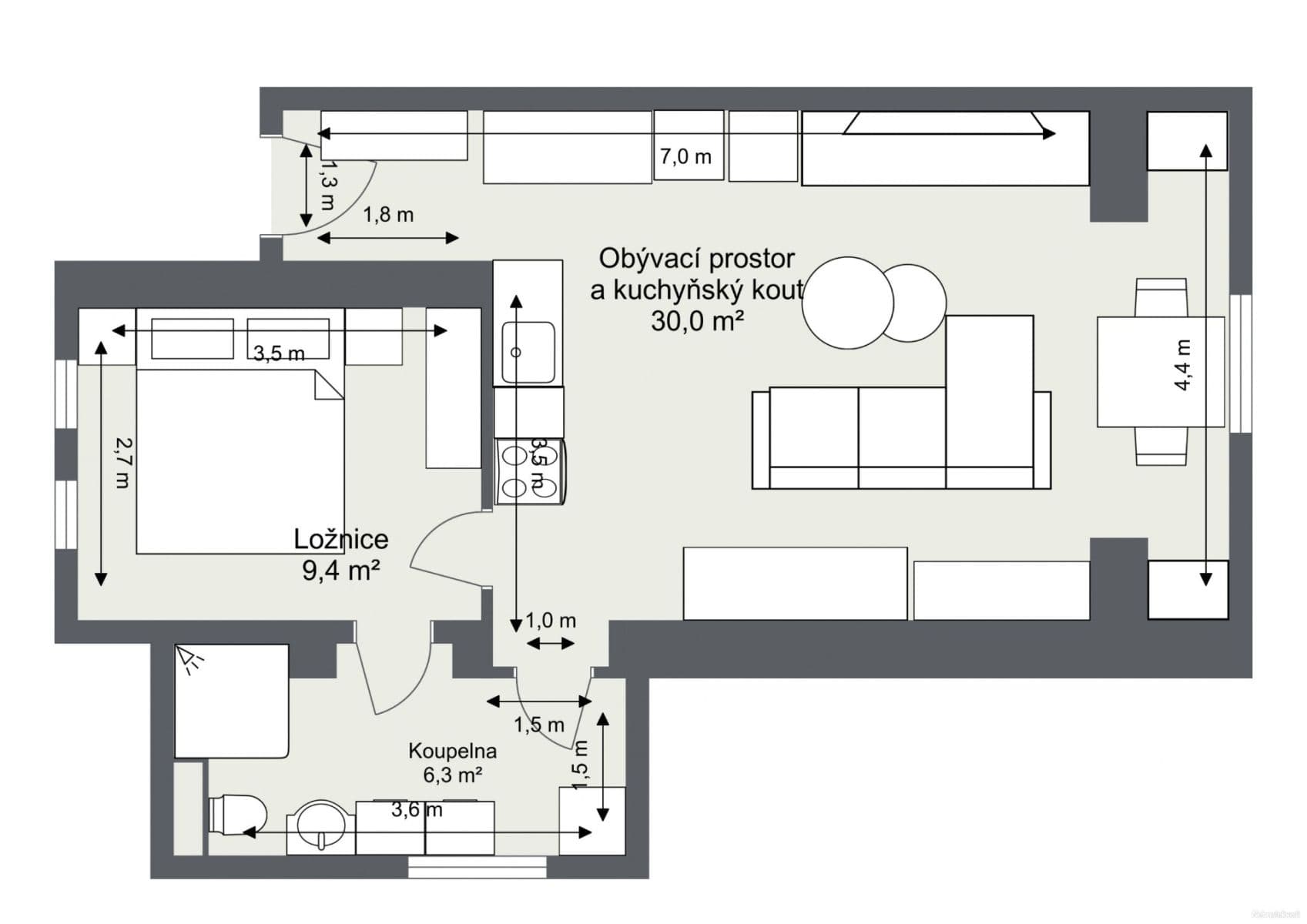
kontakt proběhl rychleji?Nadstandardní 1x byt 2+kk 60m2 ve vile na vlastním pozemku 1000m2 kde je možnost grilování ve vilové zástavbě Praha 19 ,Vinoř s integrovanou dopravou do centra Prahy, 300 metrů pěší chůzí na autobus, který jede k metru maximálně 15 minut a 20 minut metrem do centra Prahy. Dům je po kompletní rekonstrukci . Jedná se o dlouhodobý pronájem.Kauce jednoměsíčního nájmu. V okolí se nachází cyklostezka, golfové hřiště s možností trávení volného času v okolní přírodě . Tel) Adresa Moravanská 507, Praha Vinoř .PLATBA PRONÁJMU JE 23 000+3 000 Kč. včetně platby SPOTŘEBY ELEKTRICKÉ ENERGIJE , VODNÉ A STOČNÉ,odvoz odpadu. Pouze seriozní klientelu. Na pozemku je možnost parkování a grilování.Pozemek a dům je kompletně oplocen.Domácí mazlíčci mohou být, ale je nutné po nich uklízet jak na pozemku, tak v interiéru domu.Děkuji Rettych
Parametry nemovitosti
| Stáří | Do 10 let |
|---|---|
| Stav | Novostavba |
| Dispozice | 2+kk |
| Podlaží | 2. podlaží z 2 |
| Vytápění | Elektrické |
| Vlastnictví | Osobní |
| Rekonstrukce | Kompletní |
| Užitná plocha | 60 m² |
| Dostupné od | 1. 5. 2026 |
|---|---|
| Konstrukce budovy | Cihla |
| Vybaveno | Částečně |
| Provedení | Standardní |
| Číslo inzerátu | 591711 |
| PENB | B - Velmi úsporná |
| Umístění | Klidná část |
| Cena za jednotku | 383,33 Kč / m2 |
Co tato nemovitost nabízí?
| Předzahrádka 1 200 m² | |
| Parkování | |
| MHD 4 minuty pěšky |
| Domácí mazlíčci vítáni |
V okolí nemovitosti najdete
Máte o nabídku zájem?
Ušetřete 23 000 Kč na provizi a komunikujte se všemi majiteli.
Stále hledáte to pravé?
Nastavte si hlídacího psa. Nabídky vybrané na míru dostanete souhrnně 1× denně e-mailem. S Premium profilem máte k ruce hlídačů rovnou 5 a když se něco objeví, informují vás obratem.
























