Pronájem bytu 5+kk • 184 m² bez realitkyLípová, Praha - Nové Město
Máte o nabídku zájem?
Ušetřete 75 000 Kč na provizi a komunikujte se všemi majiteli.
Pronájem nového bytu 5+kk bez RK - od majitele, neplatíte provizi
Lípová, Praha 2
75.000 Kč + poplatky za elektřinu, plyn a vodu v bytě samotném - všechny ostatní poplatky jsou v ceně, parkování je také v ceně
• Unikátní příležitost k nájmu nádherného bytu v opraveném domě na Praze 2. Byt má výhled na Petřín na jedné straně a z druhé strany je pohled do klidného zeleného vnitrobloku.
• Předností tohoto bytu je parkovací místo ve vnitrobloku.
• Dům se nachází v samotném centru Prahy mezi Karlovým náměstím a I.P.Pavlova, v pěší vzdálenosti od Rašínova nábřeží / náplavky, Václavského náměstí a krásných historických míst.
• Velikou předností tohoto domu je krásná a rozlehlá zahrada ve vnitrobloku, která náleží pouze obyvatelům tohoto domu a také výtah, který staví přímo na patře.
• Oceníte skvělou dopravní dostupnost: stanice metra (všechny linky) i tramvaje jsou vzdáleny pouhých pár minut chůze. Parkování je možné také na ulici v okolí domu (v modré zóně).
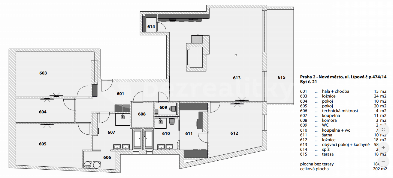
• Rozloha bytu je 202 m2 (z toho 18 m2 je terasa situovaná do vnitrobloku); je situovaný v posledním 5. patře
• Byt má pěknou kuchyni (vybavenou indukcí, myčkou, troubou, americkou lednicí s výrobníkem ledu) s odděleným špajzem, obývací prostor, 4 oddělené pokoje – z toho 1 ložnice má nádhernou šatnu s vestavěným nábytkem a koupelnu pouze pro sebe (s vanou, sprchovým koutem a dvěma umyvadly); ostatní 3 pokoje mají společnou koupelnu (taktéž s vanou, sprchovou zástěnou a dvěma umyvadly; za touto koupelnou je technická místnost s pračkou a sušičkou, oddělená dveřmi), tyto 3 pokoje jsou vedle sebe a prostřední z nich může být případně využit jako pracovna nebo společná šatna; v předsíni jsou vestavné skříně od truhláře, dále komora, oddělená toaleta; byt má hezká okna a velkou výhodou jsou klimatizace.
• V okolí je spousta obchůdků s potravinami, kaváren (Costa Coffee hned na rohu), restaurací, hospůdek, vináren… a veškerá občanská vybavenost.
Prohlídky jsou možné dle domluvy.
Nastěhování je možné od 1.7.2026.
Kauce nutná z důvodu standardu bytu - 99000 Kč.
Become the tenant of new apartment - from direct owner, therefore no provision
Lípová, Praha 2
75.000 CZK + consumption electricity, gas, water; all other fees included. This also includes parking space.
• This is the unique opportunity to live in the newly built flat in reconstructed traditional building (with lift) in Prague 2. The flat has astonishing views of Petřín on one side and the other side faces green courtyard.
• The great benefit of this flat is parking space in courtyard.
• The house lies between Karlovo náměstí and I.P. Pavlova squares, just in walking proximity to “náplavka” / Rašínovo nábřeží embankment, Václavské square and beautiful historical highlights of Prague.
• There is a nice garden in courtyard shared by residents of this house only.
• The flat situated on 5th floor (the last one) has 202 m2. The amazing terrace has 18 m2 and faces courtyard.
• There is an entrance room with built-in wardrobe, storage room, living room with kitchen (including dishwasher, induction cooktop, American fridge, oven and separated storage room); there are four bedrooms; the master bedroom has own special wardrobe and bathroom with both bathtub and shower; other three rooms share another bathroom also with bathtub and shower, separated toilet; separated room for washing machine + drying machine; nice windows and great benefit – air conditioning.
• You will appreciate close public transport – tram station and all subway lines are in walking distance.
• You will find all necessary facilities in walking distance, you can enjoy many shops, cafes, restaurants really close to your home.
To arrange viewing kindly contact me.
The flat can be rented from 1st July 2026.
Security deposit is necessary due to standards of this flat (99.000,- CZK).
Parametry nemovitosti
| Dostupné od | 1. 7. 2026 |
|---|---|
| Konstrukce budovy | Cihla |
| Vybaveno | Částečně |
| Provedení | Luxusní |
| Vlastnictví | Osobní |
| Umístění | Klidná část |
| Cena za jednotku | 407,61 Kč / m2 |
| Stav | Novostavba |
|---|---|
| Dispozice | 5+kk |
| Podlaží | 5. podlaží z 5 |
| Číslo inzerátu | 616194 |
| PENB | G - Mimořádně nehospodárná |
| Užitná plocha | 184 m² |
Co tato nemovitost nabízí?
| Balkón 1 m² | |
| Parkování | |
| Terasa 18 m² |
| Předzahrádka 1 m² | |
| Výtah | |
| MHD 1 minuta pěšky |
V okolí nemovitosti najdete
Máte o nabídku zájem?
Ušetřete 75 000 Kč na provizi a komunikujte se všemi majiteli.
Stále hledáte to pravé?
Nastavte si hlídacího psa. Nabídky vybrané na míru dostanete souhrnně 1× denně e-mailem. S Premium profilem máte k ruce hlídačů rovnou 5 a když se něco objeví, informují vás obratem.
























