
Pronájem bytu 3+1 • 64 m² bez realitkyArménská, Brno - Bohunice, Jihomoravský kraj
Máte o nabídku zájem?
Ušetřete 20 000 Kč na provizi a komunikujte se všemi majiteli.
Nabízím k podnájmu byt v osobním vlastnictví na ulici Arménská v Brně-Bohunicích. Pouze dlouhodobě, vždy na kalendářní rok s možností prolongace po vzájemné dohodě.
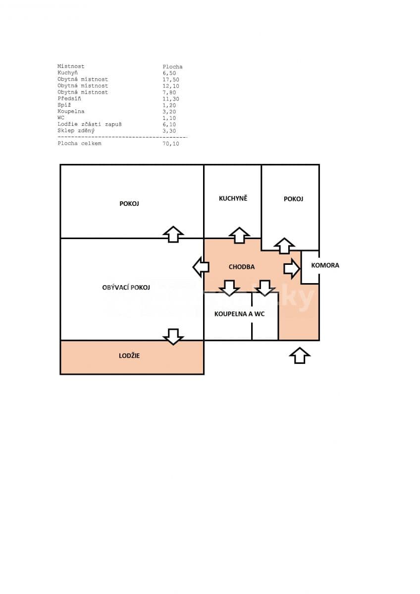
Byt je dispozičně řešen jako 3+1 s průchozím obývacím pokojem (viz orientační půdorys). Nachází se v 2. NP (1. patře, tedy pod bytem je ještě jeden byt). Dům je panelový po revitalizaci. U domu je velké parkoviště. K bytu patří sklepní kóje.
Nájemné 20.000 Kč za měsíc + služby 4.490 Kč za měsíc (zálohy na teplo, ohřev vody, vodné, stočné, úklid společných prostor, společná elektřina, výtah, elektřina). Plyn zaveden, ale nepřipojen (elektrická varná deska). Internet NETBOX zaveden (ale nepřipojen). Nájemné a služby jsou splatné vždy do 5. dne v měsíci, za který se platí.
Vyjma internetu na sebe nájemník nepřepisuje žádné služby, vyúčtování služeb vždy jednou za rok v návaznosti na vyúčtování správce nebo dodavatele.
Vratná jistota: 30.000 Kč
Není určeno pro realitní kanceláře. Bez provize.
Byt je podle vlastní zkušenosti vhodný pro rodinu s max. dvěma malými dětmi nebo mladý pracující pár. Nekuřáky. Nájem je kalkulován bez zvířat.
Volné od 1. 4. 2026.
Prohlídky možné až od 30.3.2026.
Byt je částečně vybavený:
Kuchyň – kuchyňská linka, stůl, židle, varná deska, trouba, chladnička s malým mrazákem, myčka, digestoř, kuchyňské rádio (mikrosystém)
Chodba – vestavěná pračka, vestavěné skříně, předsíňová stěna
Obývací pokoj – knihovny, TV stolek, sedačka (na některých fotografiích je ještě vidět rohová sedací souprava, ale tu jsme odstěhovali).
Ložnice – manželská postel, komoda, skříň velká šatní
Dětský pokoj / pracovna – pracovní stůl, válenda, kontejner se zásuvkami, velká šatní skříň
Veškerá občanská vybavenost.
Parametry nemovitosti
| Dostupné od | 1. 4. 2026 |
|---|---|
| Konstrukce budovy | Panel |
| Vybaveno | Částečně |
| Číslo inzerátu | 665210 |
| PENB | F - Velmi nehospodárná |
| Užitná plocha | 64 m² |
| Stav | Velmi dobrý |
|---|---|
| Dispozice | 3+1 |
| Podlaží | 2. podlaží |
| Vlastnictví | Osobní |
| Umístění | Klidná část |
| Cena za jednotku | 313 Kč / m2 |
Co tato nemovitost nabízí?
| Sklep 3 m² | |
| Výtah | |
| MHD 4 minuty pěšky |
| Lodžie 6 m² |
V okolí nemovitosti najdete
Máte o nabídku zájem?
Ušetřete 20 000 Kč na provizi a komunikujte se všemi majiteli.
Stále hledáte to pravé?
Nastavte si hlídacího psa. Nabídky vybrané na míru dostanete souhrnně 1× denně e-mailem. S Premium profilem máte k ruce hlídačů rovnou 5 a když se něco objeví, informují vás obratem.



























