
Pronájem bytu 1+1 • 34 m² bez realitkyJeronýmova, Brno - Židenice, Jihomoravský kraj
Máte o nabídku zájem?
Ušetřete 13 900 Kč na provizi a komunikujte se všemi majiteli.
Nabízíme k dlouhodobému pronájmu pěkný byt 1 + 1 v novější nástavbě bytového domu (z roku 2015) ve IV. NP zrekonstruovaného cihlového domu bez výtahu.
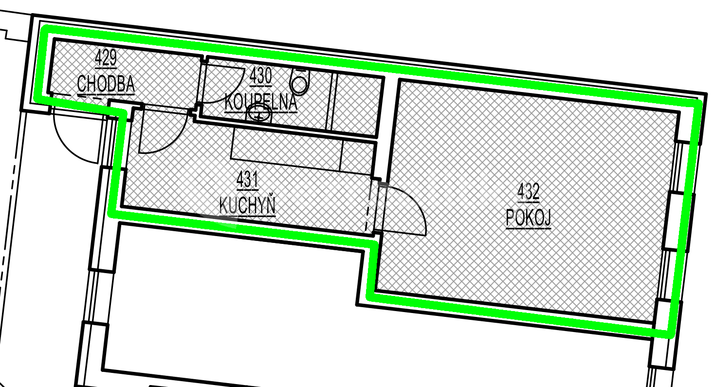
Vstup do bytu je z konce pavlače. Z předsíně je přístup do kuchyně a koupelny. Kuchyní se pak prochází do pokoje.
Kuchyně je vybavena kuchyňskou linkou se sklokeramickou dvouplotýnkovou varnou deskou (trouba není ve výbavě kuchyně!).
V koupelně je WC, umyvadlo a sprchový kout.
Prostorný pokoj (20 m2) má okna orientována na východ.
Byt je pronajímán bez dalšího vybavení a je ihned k nastěhování.
Celkové náklady na bydlení (bez internetu) při užívání jednou osobou činí 15.650 Kč měsíčně (13.900 Kč nájemné + 1.750 Kč zálohy na služby). Ve dvou osobách jsou celkové náklady 16.540 Kč (služby 2.640 Kč).
Internet doporučujeme wosa.cz (od 250 Kč/měsíčně).
Občanská vybavenost - blízkost zastávek MHD, obchody, občanská vybavenost, výborná dostupnost do centra Brna.
Smlouvu je možné uzavřít pouze s osobami bez záznamu v centrální evidencí exekucí či insolvenčním rejstříku.
Parametry nemovitosti
| Dostupné od | 1. 4. 2026 |
|---|---|
| Konstrukce budovy | Cihla |
| Vybaveno | Nevybaveno |
| Číslo inzerátu | 668318 |
| PENB | C - Úsporná |
| Užitná plocha | 34 m² |
| Stav | Velmi dobrý |
|---|---|
| Dispozice | 1+1 |
| Podlaží | 4. podlaží |
| Vlastnictví | Osobní |
| Umístění | Klidná část |
| Cena za jednotku | 409 Kč / m2 |
Co tato nemovitost nabízí?
| Sklep 3 m² | |
| MHD 3 minuty pěšky |
V okolí nemovitosti najdete
Máte o nabídku zájem?
Ušetřete 13 900 Kč na provizi a komunikujte se všemi majiteli.
Stále hledáte to pravé?
Nastavte si hlídacího psa. Nabídky vybrané na míru dostanete souhrnně 1× denně e-mailem. S Premium profilem máte k ruce hlídačů rovnou 5 a když se něco objeví, informují vás obratem.
















