
Pronájem bytu 3+1 • 21 m² bez realitkySochařská, Praha - Bubeneč
Máte o nabídku zájem?
Ušetřete 12 990 Kč na provizi a komunikujte se všemi majiteli.
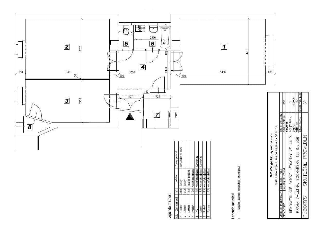
Nabízím jeden neprůchozí pokoj 21 m2 za 12.990kč (+ 1235kč zálohy el a plyn + 1265kč služby) v bytě 3+1 o ploše 81m2 hned u Stromovky. Pokoj je určen pouze pro jednu osobu. V ceně je připojení k internetu (kabelové -UPC/Vodafone). Dům je hned u Stromovky a má všechny výhody centra. V nejbližším okolí spousta restaurací, obchodů (Billa-200m), pošta, atp. Výborné spojení MHD, jak do centra, tak do Dejvic. Cca 200m tramvaje (i noční), do centra jedou 8 minut, na Hradčanskou 5min. 10minut pěšky je metro C Vltavská. Byt je ve 4.np. zrekonstruovaného cihlového domu s novým výtahem, má 3 neprůchozí uzamykatelné pokoje a samostatnou kuchyň přístupnou z haly. K dispozici kuch.linka s plynovým sporákem a troubou, MW trouba, pračka, lednice. V koupelně je vana, WC je umístěné samostatně. Vytápění vlastním plynovým kotlem. Volná je místnost č.2 ihned. Ve pokoji č. 3 bydlí pracující studentka ve věku okolo 30let, v pokoji č. 1 studující muž 25 let.
Owner offers (without commissions) room of 21 for 12.990kč for rent in apartment 3+1 , 81 m2, Prague 7-Bubeneč, Sochařská 13. Extra cost 1235 czk deposit for ele. and gas plus 1265czk (water and other services). The room is intended for one person only. A free Internet access in the flat is included (cable via UPC / Vodafone) . The house is next to Stromovka park and its location has all the advantages of the city center. In the immediate surroundings are all amenities, lots of restaurants, shops, post office, etc.. Within 100m is Stromovka park, within 200m supermarket Billa. There are excellent public transport links to the center and Dejvice as well. 200m away at Letna Square is a tram stop (also night links), it takes 8 minutes to the center , 5min to the metro Hradčanská line A , 10 minutes walk from the house to metro Vltavská line C. It is a flat located in 4th floor in a renovated brick building with new lift, has 3 separate rooms and a separate kitchen accessible from the hall. Layout arrangement is in the photos. The room n.2 is available. There is a kitchen unit with gas cooker and oven, refrigerator, MW oven and washing machine. The bathroom has a bath tube, toilet is located separately from the bathroom. Heating is provided by gas boiler. The rooms have parquet floors. In all the windows has got the silicone window seals.
The room n.2 is available now.
In the room n.3 a 30yers old student girl lives and in the room n.1 a student man around 25years.
V okolí nemovitosti najdete
Máte o nabídku zájem?
Ušetřete 12 990 Kč na provizi a komunikujte se všemi majiteli.
Stále hledáte to pravé?
Nastavte si hlídacího psa. Nabídky vybrané na míru dostanete souhrnně 1× denně e-mailem. S Premium profilem máte k ruce hlídačů rovnou 5 a když se něco objeví, informují vás obratem.




















