Prodej bytu 4+1 • 87 m² bez realitkyAntonína Slavíčka, Svitavy - Čtyřicet Lánů, Pardubický kraj
Antonína Slavíčka, Svitavy - Čtyřicet Lánů, Pardubický krajMHD 3 minuty autem • Částečně vybaveno • Parkování • Sklep 7 m² • Lodžie 4 m²Tato nemovitost již od 13 405 Kč měsíčně s roční úrokovou sazbou od 4,29 %.
Prodej bytu 4+1 s lodžií, 87 m², Svitavy – klidná lokalita
Cena: 3 390 000 Kč
Nabízíme k prodeji prostorný byt 4+1 s lodžií ve vyhledávané a klidné části Svitav. Byt se nachází v cihlovém domě, který právě prochází vnější kompletní rekonstrukcí – nová okna, střecha, zasklené balkony, zateplená fasáda. Kupující tak nečekají žádné další investice do domu.
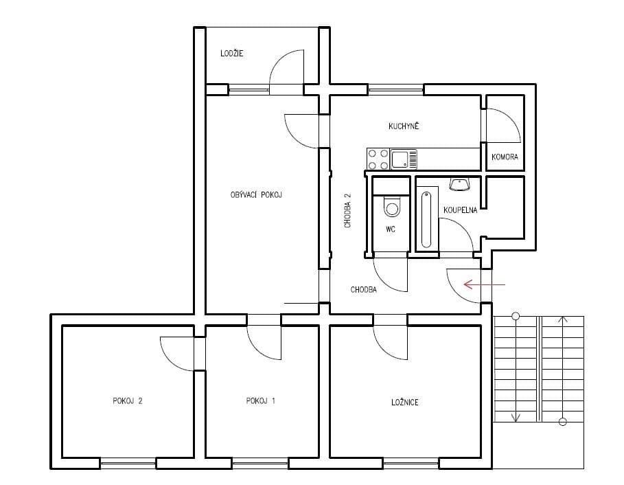
Byt o celkové ploše 87 m² disponuje velmi příjemnou a praktickou dispozicí:
obývací pokoj 20 m² s výstupem na zasklenou lodžii
kuchyně 8,2 m² + komora/spíž 2 m²
tři samostatné pokoje (12,24 m², 12,24 m², 12 m²)
koupelna 4,5 m²
samostatné WC
prostorná předsíň 7,2 m²
Topení zajišťuje vlastní plynový kotel, v kuchyni se nachází kombinovaný sporák. Interiér bytu je v původním stavu a je připravený k rekonstrukci dle vlastních představ. Exteriér domu je aktuálně v rekonstrukci, komplet hotové bude na jaře 2026, což představuje výraznou úsporu do budoucna.
K bytu náleží 2 sklepy – jeden vlastní samostatný, druhý sdílený s další rodinou – a také přilehlé pozemky patřící k budově. Parkování je možné přímo u domu.
Byt je ideální pro rodinu, která hledá prostorné bydlení, nebo pro každého, kdo oceňuje možnost upravit si interiér podle svého stylu. Vzhledem k velikosti, dispozici a stavu domu jde o mimořádně atraktivní nabídku v cenové hladině do 3,4 mil. Kč.
Prohlídky jsou možné kdykoliv po domluvě.
Rád vám byt osobně představím.
Parametry nemovitosti
| Stáří | 30 - 50 let |
|---|---|
| Stav | Před rekonstrukcí |
| Dispozice | 4+1 |
| Podlaží | 4. podlaží z 4 |
| Vytápění | Plynové |
| Vlastnictví | Osobní |
| Rekonstrukce | Interiér |
| Užitná plocha | 87 m² |
| Cena za jednotku | 38 966 Kč / m2 |
| Dostupné od | 5. 12. 2025 |
|---|---|
| Konstrukce budovy | Cihla |
| Vybaveno | Částečně |
| Provedení | Standardní |
| Číslo inzerátu | 804792 |
| PENB | G - Mimořádně nehospodárná |
| Umístění | Klidná část |
| Rizika | Prověřit » |
Co tato nemovitost nabízí?
| Sklep 7 m² | |
| Lodžie 4 m² | |
| MHD 3 minuty autem |
| Parkování |
V okolí nemovitosti najdete
Tato nemovitost již od 13 405 Kč měsíčně s roční úrokovou sazbou od 4,29 %.
Stále hledáte to pravé?
Nastavte si hlídacího psa. Nabídky vybrané na míru dostanete souhrnně 1× denně e-mailem. S Premium profilem máte k ruce hlídačů rovnou 5 a když se něco objeví, informují vás obratem.















