
Pronájem bytu • 36 m² bez realitkySanderova, Praha - Holešovice
Sanderova, Praha - HolešoviceMHD 3 minuty pěšky • VybavenoNájemné i poplatky platí pro pronájem na 12 měsíců. Tuto nabídku je však možné si pronajmout přes Flatio již od 1 měsíce. Administrativní poplatek je pro kratší pronájmy nižší. Pronájmy kratší než 6 měsíců jsou vždy bez kauce.
Hausbót Bonanza. Jste romantická duše, milovník přírody, nebo si jen chcete vyzkoušet něco úplně jiného? Toto je správná volba. Náš zcela nový, plně vybavený hausbót může být vaším druhým domovem během vašeho pobytu v Praze. Vaše dovolená v Praze bude nezapomenutelným zážitkem. Všechny hlavní turistické památky jsou snadno dostupné z hausbótu, ale naše místo u vody má také co nabídnout.
Náš hausbót Bonanza je zbrusu nový a nabízí veškeré vybavení a pohodlí, které najdete v každém standardním bytě. Je napojena na vodu, elektřinu, WIFI atd. Kromě jemného vznášení se čas od času nebudete cítit rozdíl mezi bytím ve standardním bytě a na hausbótu. Bonanza má ale něco, co jiná místa nemají - úžasný výhled na starý přístav obklopený moderními budovami a dostatek prostoru na terasách, aby se ochladilo a užilo si okolí.
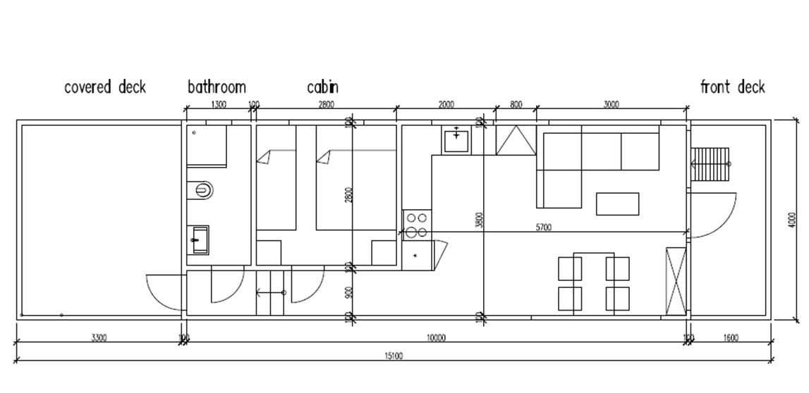
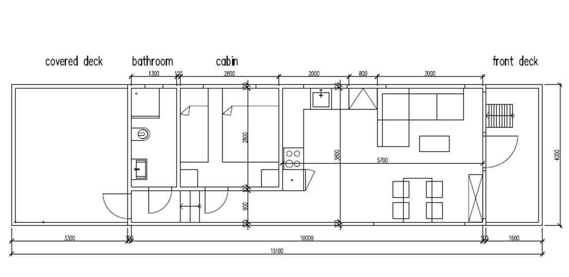
Celý byt v lodi se může ubytovat až pro 5 osob a má rozlohu 36 metrů čtverečních. Skládá se z obývacího prostoru, kabiny, koupelny a tří teras. V koupelně je sprcha, umyvadlo a toaleta. V kabině je manželská postel a patrová postel, takže v kabině mohou pohodlně spát 4 lidé. Do obývacího pokoje je otevřená kuchyň a pro 1 osobu je k dispozici rozkládací rozkládací pohovka. Kuchyň je plně vybavena. K dispozici je také lednička, mikrovlnná trouba a rychlovarná konvice.
Na lodi není televize, ale pokud si přinesete svůj vlastní notebook, můžete použít vestavěný projektor s rolovací obrazovkou pro sledování filmů ... Bude se vám líbit.
Můžete použít 3 různé terasy: jednu vzadu (13m2) se střechou nad ní, druhou vpředu (6m2) a třetí na střeše nad obytnou plochou (20m2). K dispozici jsou stoly a židle, které lze použít na terasách, takže si můžete dát svou snídani nebo relaxační chvíle venku.
Houseboat Bonanza - A unique experience in Prague. Are you a romantic sole, a nature enthusiast, or just want to try something totally different? This is the right choice. Our brand new, fully equipped houseboat can be your second home during your stay in Prague. Your holidays in Prague will be an unforgettable experience. All the major touristy sights are in easy reach from the houseboat, but our place on the water has a lot to offer as well.
Our houseboat Bonanza is brand new, and offers all the facilities and comfort found in every standard apartment. It's connected to the water, electricity, WIFI, etc. Besides gentle floating from time to time, you won't feel the difference between being in a standard apartment and on the houseboat. But Bonanza has something the other places don't - an amazing view of an old harbour surrounded by modern buildings and plenty of space on the terraces to chill out and enjoy the surroundings.
The whole apartment in the boat can accommodate up to 5 people, and it is 36 square meters large. It consists of a living area, a cabin, a bathroom and three terraces. There is a shower, a sink and a toilet in the bathroom. In the cabin there is a double bed, and a bunk bed, so 4 people can sleep in the cabin comfortably. A kitchen is open into the living area, and there is a convertible sofa bed to sleep on for 1 person. The kitchen is fully equipped. There is also a fridge, a microwave and a kettle.
There is no TV on the boat, BUT if you bring your own laptop, you can use the build-in projector with roll down screen to watch movies ... You will love it.
You can use 3 different terraces: one at the back (13m2) with a roof above it, second in the front (6m2), and third on the roof above the living area (20m2). There are tables and chairs available to be used on terraces so you can have your breakfast or a relax moment outdoor.
Parametry nemovitosti
| Dostupné od | 25. 3. 2026 |
|---|---|
| Podlaží | 1. podlaží |
| Umístění | Klidná část |
| Cena za jednotku | 1 681 Kč / m2 |
| Vybaveno | Vybaveno |
|---|---|
| Číslo inzerátu | 830800 |
| Užitná plocha | 36 m² |
Co tato nemovitost nabízí?
| Balkón | |
| MHD 3 minuty pěšky |
| Terasa |
V okolí nemovitosti najdete
Nájemné i poplatky platí pro pronájem na 12 měsíců. Tuto nabídku je však možné si pronajmout přes Flatio již od 1 měsíce. Administrativní poplatek je pro kratší pronájmy nižší. Pronájmy kratší než 6 měsíců jsou vždy bez kauce.
Stále hledáte to pravé?
Nastavte si hlídacího psa. Nabídky vybrané na míru dostanete souhrnně 1× denně e-mailem. S Premium profilem máte k ruce hlídačů rovnou 5 a když se něco objeví, informují vás obratem.
































