
Inzerát již není v nabídce
Pronájem bytu 2+1 • 62 m² bez realitkyDestinové, Praha - Košíře
Destinové, Praha - KošířeMHD 2 minuty pěšky • Částečně vybavenoNabízím k pronáju krásný byt 2+1 o celkové ploše 62m2. Nachází se v prvním poschodí menšího, nově zrekonstruovaného cihlového domu o šesti bytech. Tento byt je po celkové rekonstrukci v roce 2017, momentálně nově zrevitalizován, včetně výmalby a drobných oprav.
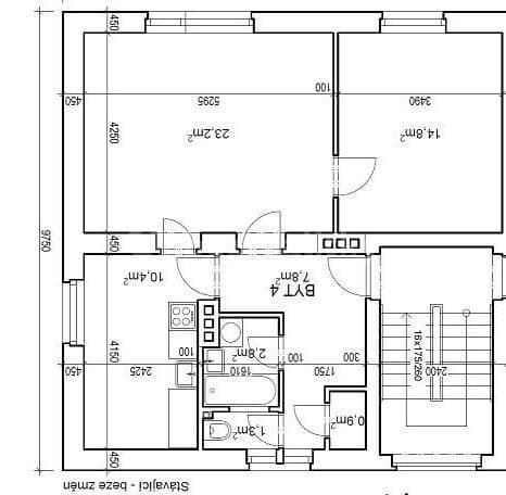
V bytě je koupelna se sprchovým koutem, pračkou a plynovým kotlem. Wc je samostatné. Též je k dispozici malá komora.
Z prostorné předsíně je vchod do samostatné, plně vybavené kuchyně a do dvou pokojů o rozměrech 23 a 15m2, které jsou průchozí. Dispozice je severo - východ, byt je ale velmi světlý.
Prostředí domu je velmi klidné, se staršími nájemníky. Preferujeme proto dlouhodobý pronájem klidným nekuřákům bez hlučných mazlíčků a dětí.
Byt je už zcela vyklizen až na pár kusů (např.postel, svítidla), které mohou po dohodě zůstat. K nastěhování bude od 1.11. 2025
Bytový dům se nachází v atraktivní rezidenční lokalitě Vidoule - Šmukýřka s dobrou dostupností - konečná autobusu 300 m, v pěší dostupnosti tramvaj i vlak.
Přednost dáváme zájemcům s ověřeným profilem, kteří o sobě něco málo napíší, po dobrých zkušenostech třeba i sdílenému pronájmu studentů.
V okolí nemovitosti najdete
Stále hledáte to pravé?
Nastavte si hlídacího psa. Nabídky vybrané na míru dostanete souhrnně 1× denně e-mailem. S Premium profilem máte k ruce hlídačů rovnou 5 a když se něco objeví, informují vás obratem.

















