
Prodej bytu 1+kk • 37 m² bez realitkyHornoměcholupská, Praha - Horní Měcholupy
Hornoměcholupská, Praha - Horní MěcholupyMHD do minuty pěšky • Výtah • Parkování • Garáž • Balkón 7,4 m² • Sklep 2,1 m² • Lodžie 7,4 m²Využít program Bydlím hned, koupím později
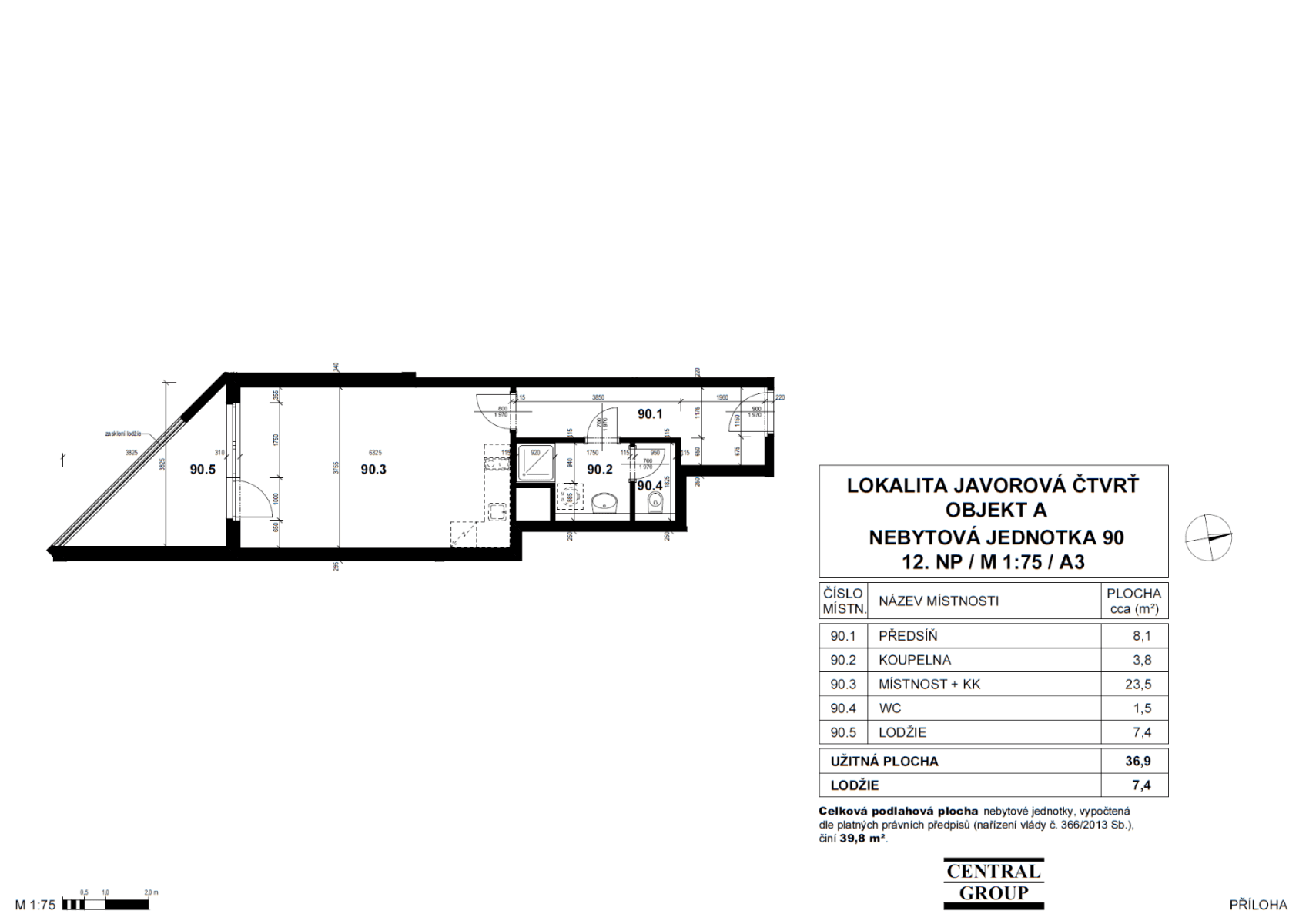
Světlý a prostorný 1kk(A) ateliér v předposledním patře bytového domu orientovaný na Jih se zaskleněnou trojúhelníkovou lodžií.
K ateliéru náleží 1 garážové stání v -1 pp a zděný sklep o rozloze 2,1 m2.
Objekt byl developerem Central Group kolaudován v roce 2016, což zaručuje moderní architekturu a kvalitní stavební materiály.
Ateliér má čistou užitnou plochu 37 m² (39,8 m² dle nařízení vlády č.366/2013Sb.)+ 7,4 m² zaskleněnou trojúhelníkovou lodžii + 2,1 m² sklepní kóje.
Dům má 2 výtahy.
Nemovitost je nabízena nevybavená. Ateliér je pronajatý jedním slušným nájemníkem od roku 2016.
Vstup do ateliéru je zajištěn bezpečnostními dveřmi NEXT.
Energetická třída B - viz PENEB.
Součástí nabídky 1kk ateliéru v ceně 5 390 000 Kč je zakoupení garážového stání ve výši 590 000 Kč a zděné sklepní kóje za 110 000 Kč.
Celková cena za ateliér, garáž a sklep je 6 090 000,- Kč.
Pokud Vás tento ateliér v předposledním patře zaujal, neváhejte mě kontaktovat.
Parametry nemovitosti
| Stáří | Do 10 let |
|---|---|
| Stav | Novostavba |
| Dispozice | 1+kk |
| Podlaží | 12. podlaží z 13 |
| Číslo inzerátu | 895204 |
| PENB | B - Velmi úsporná |
| Užitná plocha | 37 m² |
| Cena za jednotku | 164 595 Kč / m2 |
| Dostupné od | 1. 3. 2026 |
|---|---|
| Konstrukce budovy | Skeletová |
| Vybaveno | Nevybaveno |
| Vytápění | Ústřední |
| Vlastnictví | Osobní |
| Umístění | Klidná část |
| Rizika | Prověřit » |
Co tato nemovitost nabízí?
| Balkón 7,4 m² | |
| Sklep 2,1 m² | |
| Lodžie 7,4 m² | |
| MHD 0 minut pěšky |
| Bezbariérový přístup | |
| Garáž | |
| Výtah | |
| Parkování |
V okolí nemovitosti najdete
Využít program Bydlím hned, koupím později
Stále hledáte to pravé?
Nastavte si hlídacího psa. Nabídky vybrané na míru dostanete souhrnně 1× denně e-mailem. S Premium profilem máte k ruce hlídačů rovnou 5 a když se něco objeví, informují vás obratem.





















