
Prodej domu 5+kk • 145 m² bez realitkyPřevýšov - Převýšov, Královéhradecký kraj
Převýšov - Převýšov, Královéhradecký krajČástečně vybaveno • Parkování • Garáž • Sklep 37,05 m²Tato nemovitost již od 35 632 Kč měsíčně s roční úrokovou sazbou od 4,79 %.
Https://my.matterport.com/show/?m=waBso7fEA32
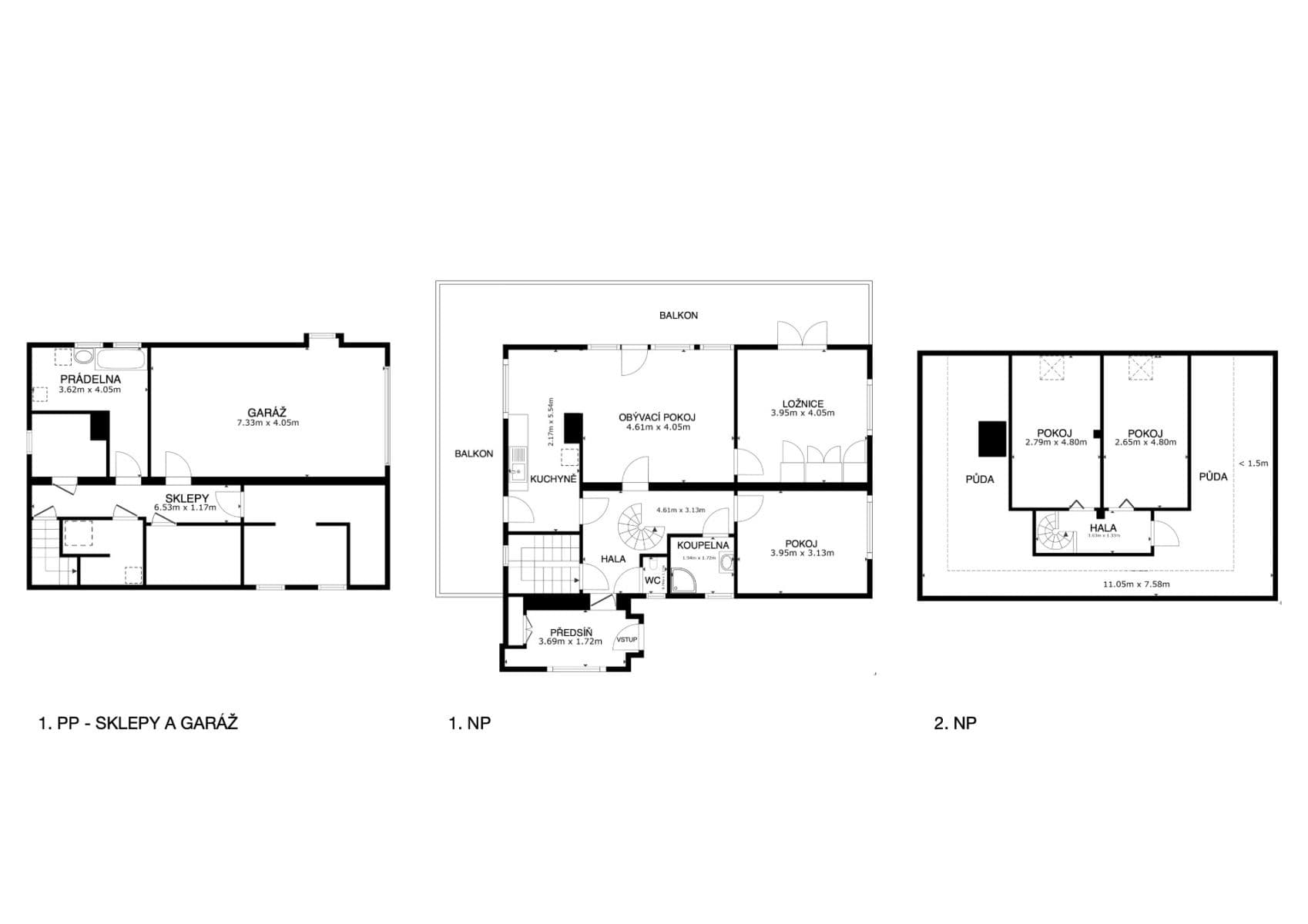
Prodám RD v Převýšově (okr. Hradec Králové). Samostatně stojící, podsklepený rodinný dům, s částečně využitím podkrovím, zkolaudovaný v roce 1988. Tento dům o zastavěné ploše 145 m2 s pozemkem 1439 m2 se nachází v okrajové klidné části obce.
V 1.PP (se nachází technické zázemí domu (garáž, kotelna, prádelna, sklad uhlí a dřeva, sklep).
1.NP se nachází (ložnice, dětský pokoj, obývací pokoj s kuchyní a spíží, chodba, koupelna a WC. Z obývacího pokoje je vstup na prostornou terasu s výhledem do zahrady.
2. NP je jen částečně využité a nachází se zde 2 pokoje s chodbou, která vede na půdu.
V průběhu let prošel dům rekonstrukcí
Dům je napojen na inženýrské sítě (voda, elektřina). Vytápění je kotlem na tuhá paliva. Vlastní studna, odkanalizování domu do vlastní jímky. Možné napojení na obecní plyn a kanalizaci.
Velkou výhodou je kompletní občanská vybavenost v místě – školka, dětské hřiště, obchod, hospoda. Výborná dopravní dostupnost: autobus, vlak, jen 25 minut do Hradce Králové a 40 minut do Prahy.
RK nevolat.
Parametry nemovitosti
| Stáří | 30 - 50 let |
|---|---|
| Stav | Po částečné rekonstrukci |
| Dispozice | 5+kk |
| Vytápění | Ostatní |
| Vlastnictví | Osobní |
| Poloha domu | Samostatný |
| Užitná plocha | 145 m² |
| Celkem podlaží | 3 |
| Cena za jednotku | 58 613,79 Kč / m2 |
| Dostupné od | 1. 3. 2026 |
|---|---|
| Konstrukce budovy | Smíšená |
| Vybaveno | Částečně |
| Číslo inzerátu | 913856 |
| PENB | G - Mimořádně nehospodárná |
| Umístění | Klidná část |
| Plocha pozemku | 1 584 m² |
| Rizika | Prověřit » |
Co tato nemovitost nabízí?
| Sklep 37,05 m² | |
| Garáž | |
| Parkování |
V okolí nemovitosti najdete
Tato nemovitost již od 35 632 Kč měsíčně s roční úrokovou sazbou od 4,79 %.




















