
Prodej domu • 185 m² bez realitkyRadějovice - Radějovice, Středočeský kraj
Radějovice - Radějovice, Středočeský krajParkování • Garáž • Balkón 15 m² • Terasa 20 m²Tato nemovitost již od 50 602 Kč měsíčně s roční úrokovou sazbou od 4,19 %.
Nabízíme k prodeji výjimečnou, atypickou nemovitost na lukrativním pozemku se vzrostlou zahradou
A velkorysým bazénem.
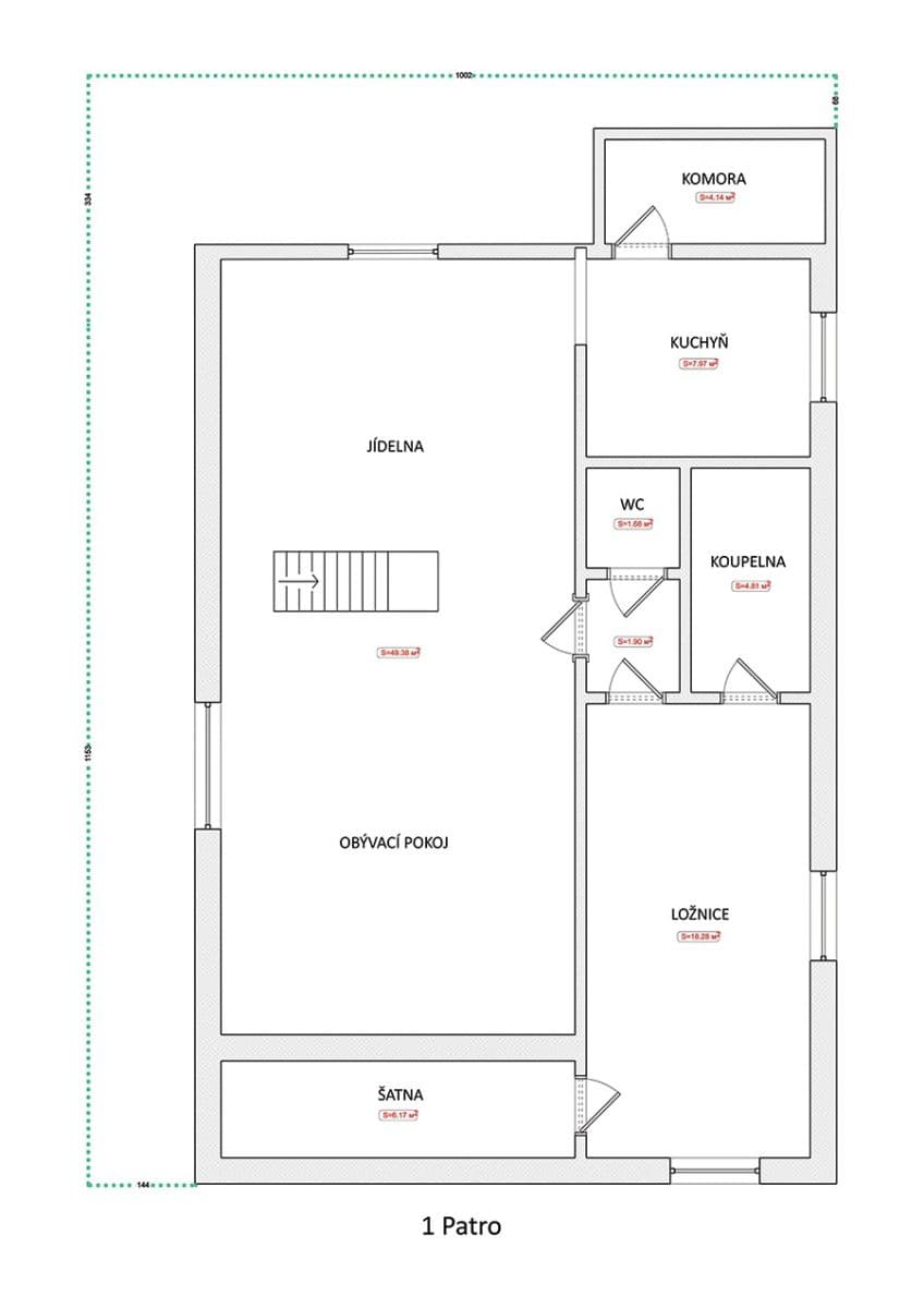
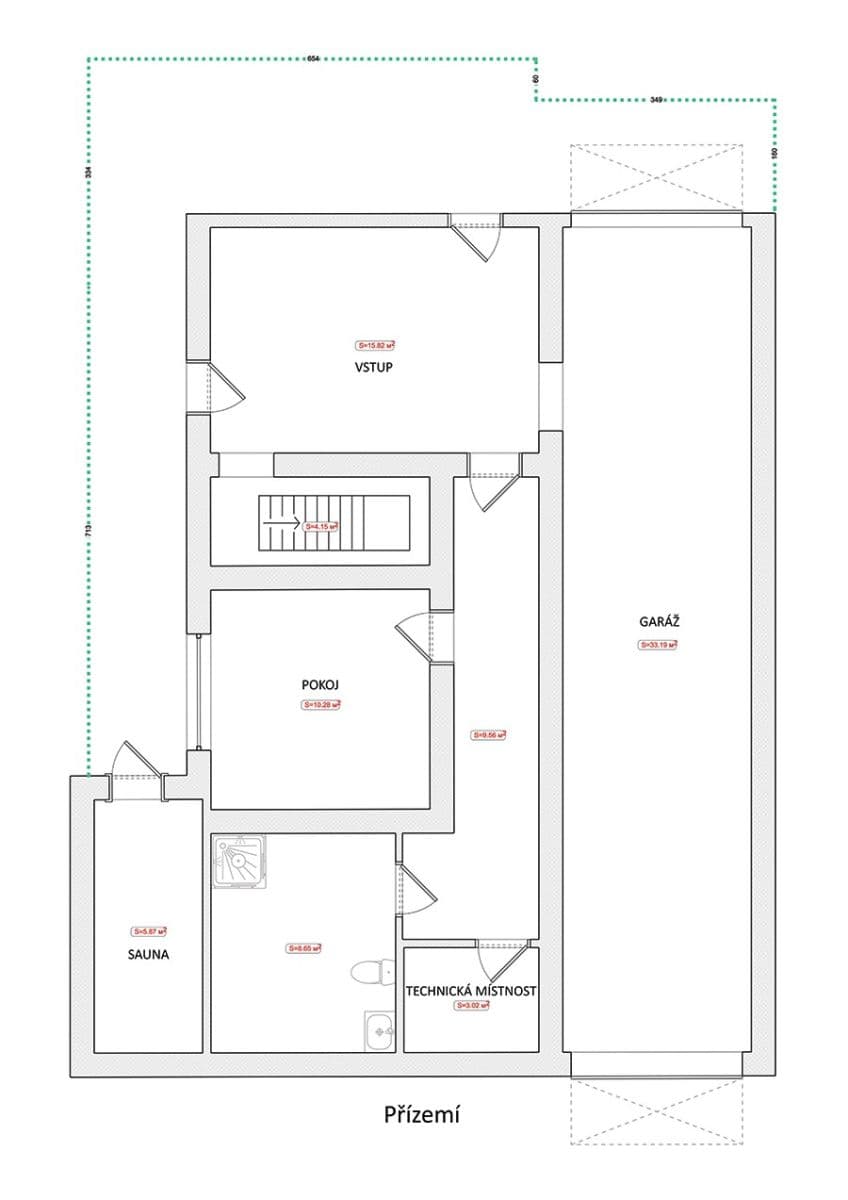
Dispozice domu jsou:
• Přízemí - 90 m2
• Vstupní hala
• Schodiště do 1.patra
• Pokoj
• Chodba
• Koupelna, WC, solárium
• Sauna
• Technická místnost
• Garáž
• 1. Patro - 95 m2
• Obývací pokoj a jídelna
• ložnice
• šatna
• chodba
• WC samostatné
• Koupelna + WC
• Kuchyň
• Komora
U bazénu je venkovní dlážděná terasa s ohništěm.
V patře je kolem poloviny domu, která vede nad zahradou, prostorný, průchozí balkon.
Kromě garáže o velikosti 33 m2 lze na vjezdu do pozemku zaparkovat 3 auta.
Autobusová zastávka je 1 minutu chůze od domu.
Požadovaná cena je 12.950.000 Kč.
RK nevolejte.
Parametry nemovitosti
| Dostupné od | 26. 6. 2025 |
|---|---|
| Konstrukce budovy | Cihla |
| Vybaveno | Nevybaveno |
| Vlastnictví | Osobní |
| Poloha domu | Samostatný |
| Plocha pozemku | 1 742 m² |
| Cena za jednotku | 70 000 Kč / m2 |
| Stav | Dobrý |
|---|---|
| Dispozice | Ostatní |
| Číslo inzerátu | 918684 |
| PENB | E - Nehospodárná |
| Užitná plocha | 185 m² |
| Rizika | Prověřit » |
Co tato nemovitost nabízí?
| Balkón 15 m² | |
| Terasa 20 m² |
| Garáž | |
| Parkování |
V okolí nemovitosti najdete
Tato nemovitost již od 50 602 Kč měsíčně s roční úrokovou sazbou od 4,19 %.
Stále hledáte to pravé?
Nastavte si hlídacího psa. Nabídky vybrané na míru dostanete souhrnně 1× denně e-mailem. S Premium profilem máte k ruce hlídačů rovnou 5 a když se něco objeví, informují vás obratem.












