Prodej bytu Čtyřpokojový • 99 m² bez realitkyMilosrdenstva, Košice - mestská časť Juh - Južné Mesto, Košický kraj
Milosrdenstva, Košice - mestská časť Juh - Južné Mesto, Košický krajMHD 2 minuty pěšky • Částečně vybaveno • Parkování • Balkón 10 m² • Sklep 18 m²Tato nemovitost již od 1 246 € měsíčně s roční úrokovou sazbou od 4,29 %.
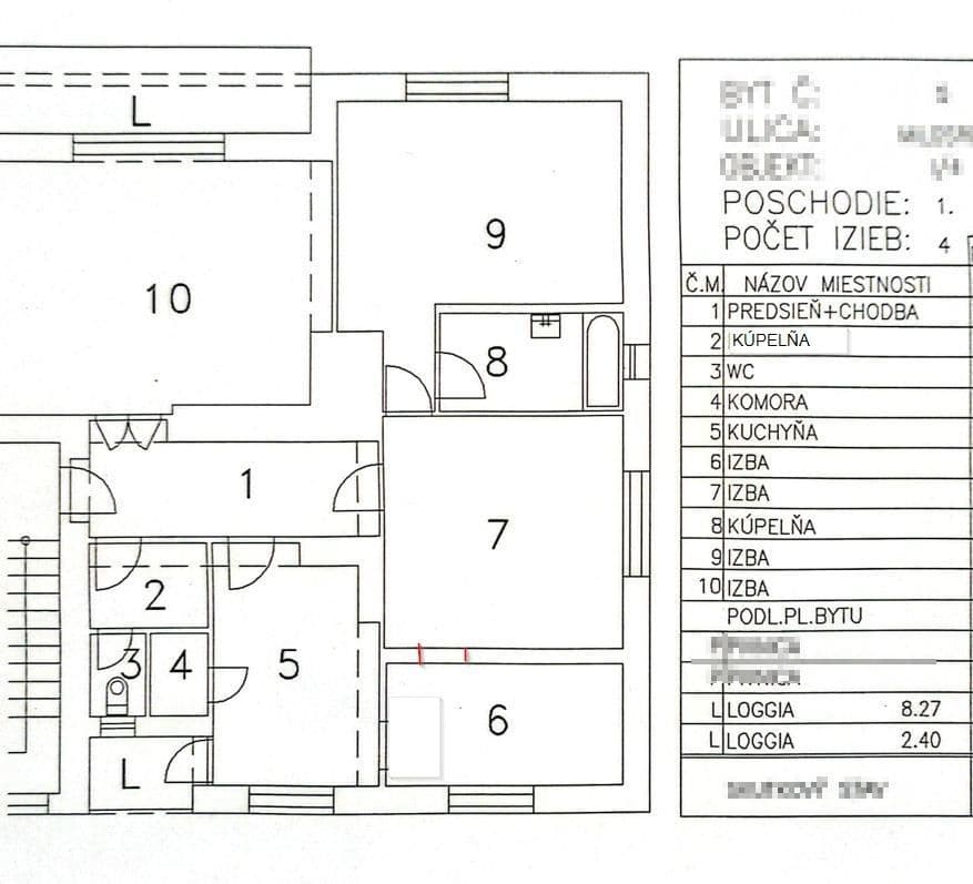
Predávam svoj osobný 4-izbový byt, ktorý sa nachádza v tehlovej budove so zrekonštruovaným a dobrým stavom. Dispozícia bytu je premyslene riešená a jeho celková plocha 99 m² ponúka dostatok priestoru pre rodinný život či pracovný priestor. Byt je čiastočne vybavený, čo umožňuje okamžité nasťahovanie a zároveň ponúka priestor pre individuálne úpravy podľa vašich predstáv.
Do bytu patrí aj príjemný balkón s rozlohou 8 m², ideálny na relaxáciu či rannú kávu, a praktická pivnica s plochou 18 m², ktorá poskytne dostatočné úložné priestory. Objekt sa nachádza v budove, kde sú dve podlažia, je umiestnený na 1. poschodí, čo zaručuje bezproblémový prístup k bytu. Parkovanie je zabezpečené v dvore, hoci v budove nie je garáž, výťah ani bezbariérový prístup.
Ak máte záujem o bližšie informácie alebo by ste si radi dohodli prehliadku, je možné ma kontaktovať prostredníctvom správ na komunikačnej platforme. Teším sa na vašu správu.
Parametry nemovitosti
| Dostupné od | 16. 9. 2025 |
|---|---|
| Konstrukce budovy | Cihla |
| Vybaveno | Částečně |
| Číslo inzerátu | 945221 |
| PENB | G - Mimořádně nehospodárná |
| Užitná plocha | 99 m² |
| Stav | Dobrý |
|---|---|
| Dispozice | Čtyřpokojový |
| Podlaží | 2. podlaží z 3 |
| Vlastnictví | Osobní |
| Umístění | Klidná část |
| Cena za jednotku | 3 182 € / m2 |
Co tato nemovitost nabízí?
| Balkón 10 m² | |
| MHD 2 minuty pěšky |
| Sklep 18 m² | |
| Parkování |
V okolí nemovitosti najdete
Tato nemovitost již od 1 246 € měsíčně s roční úrokovou sazbou od 4,29 %.
Stále hledáte to pravé?
Nastavte si hlídacího psa. Nabídky vybrané na míru dostanete souhrnně 1× denně e-mailem. S Premium profilem máte k ruce hlídačů rovnou 5 a když se něco objeví, informují vás obratem.


















