
Prodej bytu 2+kk • 55 m² bez realitkyŠlikova, Praha - Břevnov
Šlikova, Praha - BřevnovMHD 3 minuty pěšky • Částečně vybaveno • Sklep 2,8 m²Využít program Bydlím hned, koupím později
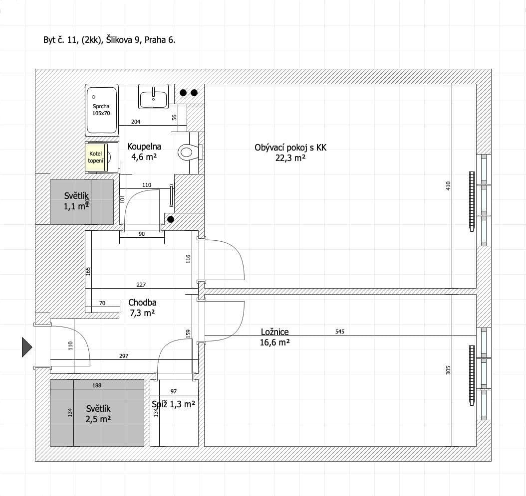
Krásný moderní a přitom noblesní byt 2+kk po kompletní moderní rekonstrukci, nacházející se ve druhém patře cihlového domu v krásné a klidné lokalitě města Prahy v blízkosti komplexu Pražského hradu (800 m Strahovské nádvoří, 1700 m Hradčanského náměstí, 1900 m Malostranské náměstí)! Tento byt může být ideálním místem pro milovníky staré Prahy, bankéře a businessmany, i mladé páry a menší rodiny. Pro ty, kdo hledají komfortní a moderní bydlení v osobním vlastnictví.
Byt má užitnou plochu 55 m2 a je vybaven novou moderní kuchyní (v ceně!). Navíc k bytu patří přístup na zahradní dvorek o ploše 50 m2, který poskytuje možnost příjemné relaxace nebo trávení volného času na čerstvém vzduchu. Součástí této nabídky je také sklep o ploše 2,8 m2, který poskytuje dodatečný úložný prostor.
Vzhledem k tomu, že jde o přímý prodej od majitele, který vám zajistí i veškerou převodní dokumentaci, ušetříte i velké prostředky!
K nastěhování ihned!
Pro více informací o této nemovitosti nebo sjednání termínu prohlídky nás prosím kontaktujte, rádi vám pomůžeme.
(Makléři prosím nepište, nevolejte, budete odmítnuti).
Parametry nemovitosti
| Dostupné od | 2. 7. 2025 |
|---|---|
| Konstrukce budovy | Cihla |
| Vybaveno | Částečně |
| Číslo inzerátu | 947158 |
| PENB | E - Nehospodárná |
| Rizika | Prověřit » |
| Stav | Velmi dobrý |
|---|---|
| Dispozice | 2+kk |
| Podlaží | 3. podlaží z 4 |
| Vlastnictví | Osobní |
| Užitná plocha | 55 m² |
| Cena za jednotku | 157 727 Kč / m2 |
Co tato nemovitost nabízí?
| Sklep 2,8 m² | |
| MHD 3 minuty pěšky |
V okolí nemovitosti najdete
Využít program Bydlím hned, koupím později
Stále hledáte to pravé?
Nastavte si hlídacího psa. Nabídky vybrané na míru dostanete souhrnně 1× denně e-mailem. S Premium profilem máte k ruce hlídačů rovnou 5 a když se něco objeví, informují vás obratem.






















