
Prodej pozemku • 950 m² bez realitkyLíšťany - Líšťany u Cítolib, Ústecký kraj
Líšťany - Líšťany u Cítolib, Ústecký krajTato nemovitost již od 13 800 Kč měsíčně s roční úrokovou sazbou od 4,29 %.
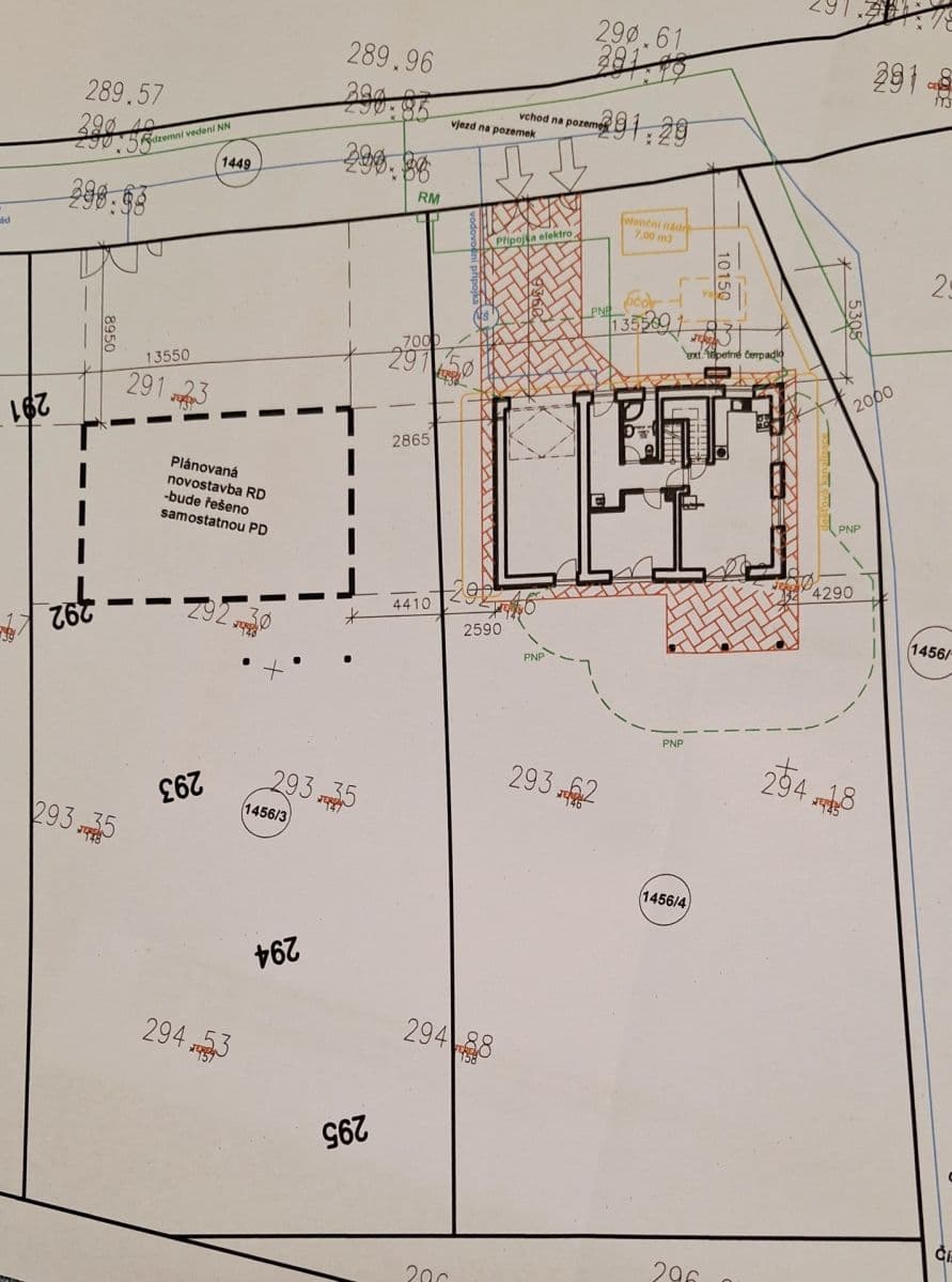
Nabízím zasíťovaný pozemek k výstavbě rodinného, případně rekreačního domu v klidné lokalitě obce Líšťany - 7 km od Loun, s krásným výhledem na České Středohoří.
Stavební povolení jsou vydána pro stavbu zděného rodinného domu 4+1
s garáží a dále pro domovní čističku odpadních vod. Na pozemku jsou vybudované přípojky vody a NN. V přilehlé místní komunikaci v ul. Na Hrádku je položena chránička pro veřejné osvětlení. Pro lokalitu je vydáno územní rozhodnutí pro pevný internet s plánovanou realizací v r. 2026.
Místo nabízí klidné bydlení a pobyt v přírodě v blízkosti lesů CHKO Džbán. Pozemek je slunný, mírně skloněný k SZ.
Obec vytváří přátelské prostředí, pořádá akce pro děti i dospělé. Dva obchody jsou přímo v obci, v dojezdové vzdálenosti 5 min. je v Lounech veškerá infrastruktura. Milovníci lyží mohou být v zimě do hodiny na Klínovci, nebo na Klínech.
Z Líšťan je výborné autobusové spojení do Loun a déle do Prahy, autem 40 min. Po dokončení zkapacitnění silnice I/7 bude Praha ještě dostupnější.
Stavební povolení zaručují, že noví majitelé mohou ihned začít vytvářet svůj vysněný domov.
Parametry nemovitosti
| Dostupné od | 25. 11. 2025 |
|---|---|
| Typ pozemku | Stavební |
| Umístění | Klidná část |
| Cena za jednotku | 3 674 Kč / m2 |
| Číslo inzerátu | 950104 |
|---|---|
| Vlastnictví | Osobní |
| Plocha pozemku | 950 m² |
Co tato nemovitost nabízí?
V okolí nemovitosti najdete
Tato nemovitost již od 13 800 Kč měsíčně s roční úrokovou sazbou od 4,29 %.
Stále hledáte to pravé?
Nastavte si hlídacího psa. Nabídky vybrané na míru dostanete souhrnně 1× denně e-mailem. S Premium profilem máte k ruce hlídačů rovnou 5 a když se něco objeví, informují vás obratem.














