
Prodej nebytového prostoru • 96 m² bez realitkyMělnická, Praha - Malá Strana
Tato nemovitost již od 34 347 Kč měsíčně s roční úrokovou sazbou od 4,19 %.
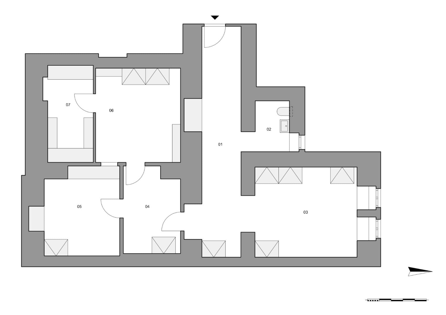
Nabízíme k prodeji komerční prostor o výměře 95,7 m², který se nachází v suterénu a v současnosti je využíván pro únikové hry. Zaujme svým působivým cihlovým interiérem a nabízí široké možnosti využití – například pro zážitkové aktivity, kreativní dílnu nebo jiný originální projekt. Prostor má svůj samostatný vstup a vlastní měření energií. O prodeji prostor vč. vybavení je možné jednat.
Výhodou je skvěle dostupná lokalita na pomezí Smíchova a Malé Strany, nedaleko nábřeží Vltavy. Místo je zajímavou obchodní příležitostí, kterou lze uchopit mnoha způsoby. Blízkost Malé Strany a rušné křižovatky Anděl zajišťuje dostatečný ruch a potenciál nejen v podobě turistického ruchu. Návštěvníky přivádí do lokality spousta menších obchodů, kaváren a restaurací, ale také zelené plochy na Dětském a Střeleckém ostrově, Kampě nebo v Petřínských sadech.
Ulice Mělnická je přímo u tramvajové zastávky a v okolí je možné parkovat na modrých i smíšených zónách.
Více informací Vám rádi sdělíme na uvedených kontaktech nebo je naleznete na webových stránkách City Home.
We offer for sale a commercial space with an area of 95.7 m², located in the basement and currently used for escape games. It impresses with its striking brick interior and offers broad potential for use – for example, for experiential activities, a creative workshop, or another original project. The space features its own entrance and individual energy metering. Negotiations regarding the sale of the space including its equipment are possible.
An advantage is its excellently accessible location on the border of Smíchov and Malá Strana, not far from the Vltava embankment. The location presents an interesting business opportunity that can be approached in many ways. The proximity of Malá Strana and the bustling Anděl junction ensures ample activity and potential, not only in terms of tourist traffic. Numerous small shops, cafes, and restaurants, as well as green areas at Dětský and Střelecký Island, Kampa, or in the Petřín Gardens, attract visitors to the area.
Mělnická Street is right by a tram stop, and parking is available in both blue and mixed zones in the vicinity.
More information will be gladly provided via the listed contacts or can be found on the City Home website.
Parametry nemovitosti
| Dostupné od | 30. 9. 2025 |
|---|---|
| Konstrukce budovy | Cihla |
| Číslo inzerátu | 950739 |
| PENB | F - Velmi nehospodárná |
| Plocha nebytového prostoru | 96 m² |
| Stav | Dobrý |
|---|---|
| Vybaveno | Nevybaveno |
| Vlastnictví | Osobní |
| Poloha nebytového prostoru | Rohový |
| Cena za jednotku | 91 563 Kč / m2 |
Co tato nemovitost nabízí?
V okolí nemovitosti najdete
Tato nemovitost již od 34 347 Kč měsíčně s roční úrokovou sazbou od 4,19 %.
Stále hledáte to pravé?
Nastavte si hlídacího psa. Nabídky vybrané na míru dostanete souhrnně 1× denně e-mailem. S Premium profilem máte k ruce hlídačů rovnou 5 a když se něco objeví, informují vás obratem.
















