
Prodej bytu 3+1 • 85 m² bez realitkyMatoušova, Liberec - Liberec, Liberecký kraj
Matoušova, Liberec - Liberec, Liberecký krajČástečně vybaveno • ParkováníTato nemovitost již od 21 686 Kč měsíčně s roční úrokovou sazbou od 4,19 %.
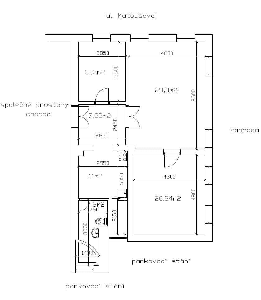
Nabízíme k prodeji byt 3+1 o výměře 85 m², v osobním vlastnictví, v Liberci v ulici Matoušova. V těsné blízkosti se nachází vlakové i autobusové nádraží a zastávka MHD. V docházkové vzdálenosti se nachází Mateřská škola, ZŠ, cyklostezka, Billa, pošta.
Byt se nachází v přízemí zděného cihlového domu, ve kterém je pouze 8 bytů. Dům je po dílčích rekonstrukcích, aktuálně má nově zrekonstruovanou střechu, má fungující SVJ. Dům má vlastní zahrádku a parkovací místo, náležící ke každému bytu, za domem na vlastním oploceném pozemku.
Vytápění a příprava teplé vody je řešena novým plynovým kotlem umístěným v kuchyni. K bytu náleží několik dalších uzamykatelných úložných prostor – sklepní kóje, kůlna, místnost na chodbě a půdní kóje.
Byt má tři prostorné pokoje, kuchyň a koupelnu s WC. Byt je vybaven kuchyňskou linkou, veškerými spotřebiči a částečně i nábytkem – možnost konkrétní domluvy o co bude mít kupující zájem.
Financování je možné hypotékou, byt je k nastěhování dle dohody.
Parametry nemovitosti
| Dostupné od | 1. 2. 2026 |
|---|---|
| Konstrukce budovy | Cihla |
| Vybaveno | Částečně |
| Číslo inzerátu | 954105 |
| PENB | G - Mimořádně nehospodárná |
| Užitná plocha | 85 m² |
| Cena za jednotku | 65 294 Kč / m2 |
| Stav | Velmi dobrý |
|---|---|
| Dispozice | 3+1 |
| Podlaží | 1. podlaží z 3 |
| Vlastnictví | Osobní |
| Umístění | Rušná část |
| Rizika | Prověřit » |
Co tato nemovitost nabízí?
| Bezbariérový přístup | |
| Parkování |
V okolí nemovitosti najdete
Tato nemovitost již od 21 686 Kč měsíčně s roční úrokovou sazbou od 4,19 %.


Prodej bytuDlouhý Most - Dlouhý Most, Liberecký kraj- 3+1
- 80 m²
4 500 000 Kč4 700 000 Kč
Ušetříte 200 000 Kč

Stále hledáte to pravé?
Nastavte si hlídacího psa. Nabídky vybrané na míru dostanete souhrnně 1× denně e-mailem. S Premium profilem máte k ruce hlídačů rovnou 5 a když se něco objeví, informují vás obratem.



















