
Prodej bytu 3+1 • 64 m² bez realitkyKollárova, Písek - Písek, Jihočeský kraj
Kollárova, Písek - Písek, Jihočeský krajMHD 3 minuty pěšky • Částečně vybaveno • Výtah • Parkování • Balkón 7,22 m² • Sklep 2,48 m²Tato nemovitost již od 22 663 Kč měsíčně s roční úrokovou sazbou od 4,19 %.
Žádáme RK aby nás nekontaktovaly s nabídkou k zastoupení.
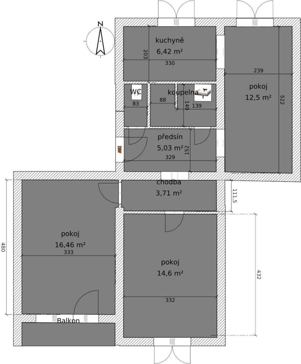
Jako přímý majitel nabízím k prodeji byt 3+1 o výměře 64 m² ve třetím patře cihlového domu s výtahem. Navenek nenápadný dům v Kollárově ulici je pečlivě udržovaný a v docházkové vzdálenosti od centra města a veškeré občanské vybavenosti. Kuchyň a obývací pokoj jsou situovány do ulice, ale oba pokoje mají výhled do vnitrobloku plného zeleně a na Píseckou věž.
Byt prošel kvalitní rekonstrukcí – má dvě ložnice, obývací pokoj, koupelnu, samostatné WC a kuchyň vyrobenou truhlářem na míru a vybavenou kvalitními spotřebiči.
Obývací místnosti mají všechny parketové podlahy, v případě dětského pokoje momentálně zakryto kobercem. Kuchyň, předsíň a chodbička mají vinylové podlahy. Koupelna je obložena kvalitním materiálem Rako Defile, stejně tak jsou kvalitní zařizovací předměty.
K bytu patří prostorný balkon (7,2 m²), ideální pro ranní kávu, a sklep (2,5 m²), který nabízí další úložný prostor.
V domě je také možnost používat kolárnu. Dvůr uvnitř vnitrobloku je rozsáhlý a umožňuje nejen parkování ale poskytuje prostor i pro další činností (hraní s dětmi, pikniky apod.).
S neustále stoupající hustotou silničního provozu je neocenitelná výhoda možnost parkování v uzavřeném dvoře. Byt je v osobním vlastnictví. Energetický štítek budovy: G (typické pro starší zástavbu).
Parametry nemovitosti
| Stáří | 30 - 50 let |
|---|---|
| Stav | Po rekonstrukci |
| Dispozice | 3+1 |
| Podlaží | 3. podlaží z 5 |
| Vytápění | Vzdálené |
| Vlastnictví | Osobní |
| Umístění | Centrum |
| Rizika | Prověřit » |
| Dostupné od | 15. 11. 2025 |
|---|---|
| Konstrukce budovy | Cihla |
| Vybaveno | Částečně |
| Provedení | Standardní |
| Číslo inzerátu | 955364 |
| PENB | G - Mimořádně nehospodárná |
| Užitná plocha | 64 m² |
| Cena za jednotku | 90 625 Kč / m2 |
Co tato nemovitost nabízí?
| Balkón 7,22 m² | |
| Parkování |
| Sklep 2,48 m² | |
| Výtah | |
| MHD 3 minuty pěšky |
V okolí nemovitosti najdete
Tato nemovitost již od 22 663 Kč měsíčně s roční úrokovou sazbou od 4,19 %.
Stále hledáte to pravé?
Nastavte si hlídacího psa. Nabídky vybrané na míru dostanete souhrnně 1× denně e-mailem. S Premium profilem máte k ruce hlídačů rovnou 5 a když se něco objeví, informují vás obratem.



















