
Pronájem bytu 3+1 • 98 m² bez realitkyBratislavská, Brno - Zábrdovice, Jihomoravský kraj
Máte o nabídku zájem?
Ušetřete 15 000 Kč na provizi a komunikujte se všemi majiteli.
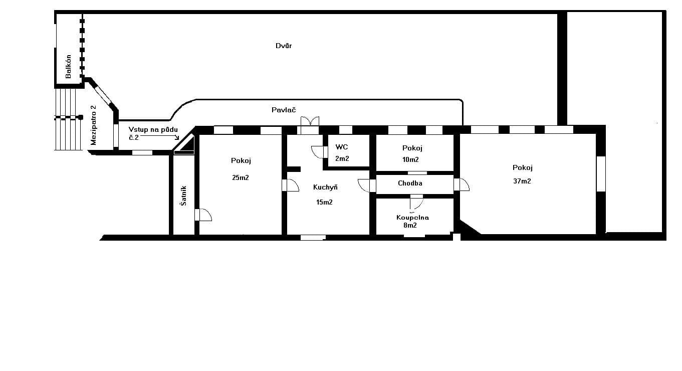
Nabízím k pronájmu nově rekonstruovaný 3+1 byt o rozloze 98 m², situovaný v cihlové budově. Tento prostorný byt je částečně vybavený, což umožní přizpůsobení dle vlastních představ. Byt se nachází v prvním mezipatře ze samostatným vchodem přes pavlač s výhledem do dvora.
Zvláštní předností této nemovitosti je prostorný balkón o rozloze 30 m², který nabízí ideální místo k relaxaci či posezení při příjemném počasí. Nemovitost je určena pouze pracujícím nebo studentům bez zvířat. V areálu nejsou řešeny parkovací možnosti, garáž, výtah ani bezbariérový přístup, což je třeba vzít v úvahu.
V případě zájmu mě oslovte prostřednictvím zpráv na této komunikační platformě.
V okolí nemovitosti najdete
Máte o nabídku zájem?
Ušetřete 15 000 Kč na provizi a komunikujte se všemi majiteli.
Stále hledáte to pravé?
Nastavte si hlídacího psa. Nabídky vybrané na míru dostanete souhrnně 1× denně e-mailem. S Premium profilem máte k ruce hlídačů rovnou 5 a když se něco objeví, informují vás obratem.













