Pronájem bytu 3+kk • 54 m² bez realitkyVacov - Javorník u Stach, Jihočeský kraj
Máte o nabídku zájem?
Ušetřete 23 999 Kč na provizi a komunikujte se všemi majiteli.
Toužíte po rekreačním útulném apartmánu pro sebe či svou rodinu, aniž byste museli vynakládat miliony na pořízení takové nemovitosti?
Máme pro Vás ideální řešení!
Baťovna je dokonalým celoročním místem pro všechny, kteří chtějí svůj volný či pracovní čas trávit kvalitně v klidu a přírodě.
Dlouhodobý pronájem kompletně vybaveného apartmánu s veškerým zázemím toto vše nabízí.
Baťovna (neboli Baťův dům) se nachází v samém srdci šumavské obce Javorník v těsné blízkosti lesa.
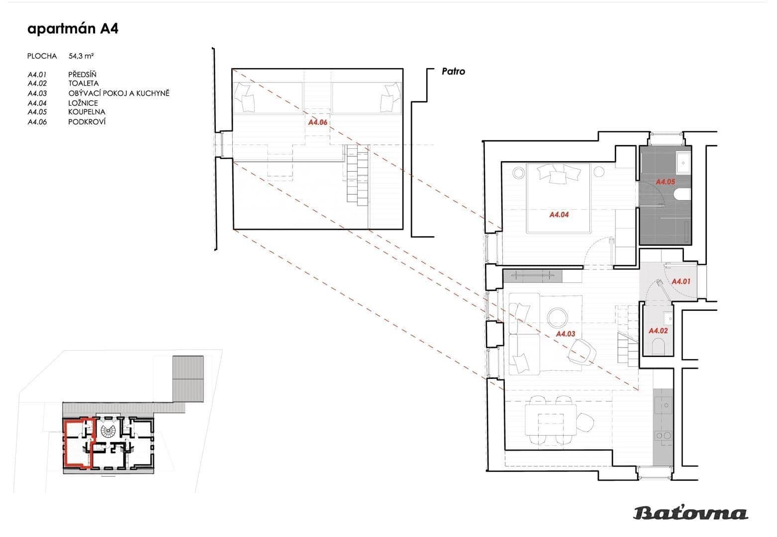
Apartmán A4 o dispozici 3+kk (2+kk + patro na spaní) o velikosti 54 m2 disponuje obývacím pokojem s plně vybavenou kuchyňskou linkou vč. veškerých spotřebičů, ve kterém je dále vestavěná obývací stěna se smart televizí, komfortní rozkládací pohovka a jídelní stůl se židlemi. V apartmánu se dále nachází ložnice s manželskou postelí a vestavěnými skříněmi, další ložnice v patře (otevřená galerie), chodba s vestavěnými skříněmi, koupelna se sprchovým koutem a WC a další samostatné WC. V celém apartmánu je podlahové topení.
Nájemné: 23 999 měsíčně + záloha na služby 3 000 měsíčně (voda, elektřina, vytápění, internet).
Původní Baťovna postavená v letech 1940-1941 společností Baťa (Janem Antonínem Baťou) sloužila kdysi jako místo obchodu. V dalších dekádách pak byla oblíbeným místem setkávání a sloužila jako restaurace.
Nová Baťovna má veškeré prvky moderního bydlení, které se však zcela plynule propojí s původními kamennými základy, původním opláštěním trámy apod.
Baťovna si zachovala svůj půvab i ráz díky několikaleté citlivé rekonstrukci, kde se v interiéru kombinují různé materiály jako kámen, sklo, kov, pohledový beton a hlavně dřevo.
Chata Baťovna prošla kompletní rekonstrukcí, všechny apartmány jsou zcela nové a kompletně zařízené nadčasovým nábytkem a kvalitními spotřebiči.
Co objekt nabízí: saunu, ochlazovací bazének, venkovní sprchu, krytá parkovací stání, venkovní grill a ohniště, lyžárnu, prádelnu, kolárnu, úložné prostory...
O lokalitě: Malebnou krajinu i nedotčenou přírodu, to vše najdete na Šumavě v obci Javorník v nadmořské výšce 1065 m.n.m.
Obec Javorník je celoročním rekreačním střediskem s příležitostí pro aktivní vyžití jednotlivců i rodin.
Přímo v obci se nachází lyžařský vlek, rozhledna, kaplička, trasy na kola, nástup do bílé stopy, dvě restaurace a ve vedlejší obci také oblíbené přírodní koupaliště.
V dojezdové vzdálenosti skiareál Zadov, lanové centrum či NP Šumava...)
Vzhledem k tomu, že majitel Baťovny má mnohaleté zkušenosti se záchranou historických objektů i se stavbou nových moderních rezidencí, chtěl své dovednosti uplatnit v místě, které jej od začátku uchvátilo a chytilo za srdce.
Věříme, že genius loci tohoto nádherného místa dýchne i na Vás.
Are you longing for a cozy vacation apartment for yourself or your family without having to spend millions on such a property? We have the ideal solution for you!
Baťovna is the perfect all-year-round place for those who want to spend their leisure or work time in peace and nature. A long-term rental of a fully furnished apartment with all the amenities offers all of this.
Baťovna (or Baťa’s House) is located in the very heart of the Šumava village of Javorník, right next to the forest. Apartment A4, with a layout of 3+kk (2+kk plus a sleeping level) and a size of 54 m², features a living room with a fully equipped kitchen including all appliances. The living space also includes a built-in media wall with a smart TV, a comfortable pull-out sofa, and a dining table with chairs. The apartment further offers a bedroom with a double bed and built-in wardrobes, another bedroom on the upper level (open gallery), a hallway with built-in wardrobes, a bathroom with a shower and toilet, and an additional separate WC. The entire apartment is heated with underfloor heating.
Rent: CZK 23,999 per month plus a service charge of CZK 3,000 per month (covering water, electricity, heating, internet).
Originally built in 1940–1941 by the Baťa company (by Jan Antonín Baťa), the Baťovna once served as a trading post. In the following decades, it became a popular meeting place and even operated as a restaurant.
The new Baťovna features all the elements of modern living that blend seamlessly with the original stone foundations, vintage timber cladding, and so on. Thanks to several years of sensitive reconstruction, the building has retained its charm and character while combining different materials such as stone, glass, metal, exposed concrete, and especially wood in the interior.
The Baťovna cottage has undergone a complete reconstruction—all apartments are entirely new and fully furnished with timeless furniture and high-quality appliances.
What the property offers: a sauna, a cooling pool, an outdoor shower, a covered parking space, an outdoor grill and fire pit, a ski storage room, a laundry, a bicycle storage room, storage spaces…
About the location: You will find beautiful countryside and unspoiled nature in the Šumava region in the village of Javorník at an altitude of 1,065 m above sea level. The village of Javorník is an all-year-round recreational center offering opportunities for both individual and family activities. In the village itself, there is a ski lift, an observation tower, a chapel, cycling trails, an entry point into the “White Trail,” two restaurants, and in the neighboring village, a popular natural swimming pool. Within easy reach are the Zadov ski area, a rope park, and the Šumava National Park.
Given that the owner of Baťovna has many years of experience in restoring historic buildings as well as building new modern residences, he wanted to apply his skills in a place that captivated him and stole his heart from the very beginning.
V okolí nemovitosti najdete
Máte o nabídku zájem?
Ušetřete 23 999 Kč na provizi a komunikujte se všemi majiteli.
Stále hledáte to pravé?
Nastavte si hlídacího psa. Nabídky vybrané na míru dostanete souhrnně 1× denně e-mailem. S Premium profilem máte k ruce hlídačů rovnou 5 a když se něco objeví, informují vás obratem.


















