
Pronájem bytu 2+kk • 39 m² bez realitkyVacov - Javorník u Stach, Jihočeský kraj
Toužíte po rekreačním útulném apartmánu pro sebe či svou rodinu, aniž byste museli vynakládat miliony na pořízení takové nemovitosti?
Máme pro Vás ideální řešení!
Baťovna je dokonalým celoročním místem pro všechny, kteří chtějí svůj volný či pracovní čas trávit kvalitně v klidu a přírodě.
Dlouhodobý pronájem kompletně vybaveného apartmánu s veškerým zázemím toto vše nabízí.
Baťovna (neboli Baťův dům) se nachází v samém srdci šumavské obce Javorník v těsné blízkosti lesa, do kterého všechny apartmány nabízejí nerušené výhledy.
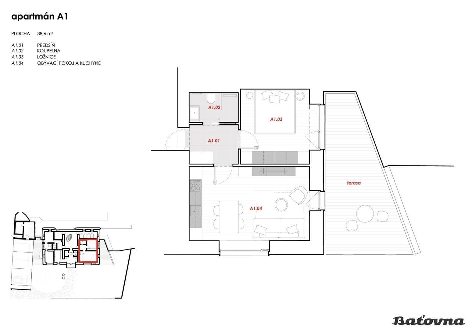
Apartmán A1 o dispozici 2+kk a velikosti 39 m2 a se vstupem na vlastní terasu disponuje obývacím pokojem s plně vybavenou kuchyňskou linkou vč. veškerých spotřebičů, ve kterém je dále vestavěná obývací stěna se smart televizí, komfortní rozkládací pohovka a jídelní stůl se židlemi. V apartmánu se dále nachází ložnice s manželskou postelí a vestavěnými skříněmi, chodba s vestavěnými skříněmi a koupelna se sprchovým koutem a WC. V celém apartmánu je podlahové topení.
K apartmánu náleží kryté parkovací stání.
Nájemné: 19 999 měsíčně + záloha na služby 2 500 měsíčně (voda, elektřina, vytápění, internet).
Původní Baťovna postavená v letech 1940-1941 společností Baťa (Janem Antonínem Baťou) sloužila kdysi jako místo obchodu. V dalších dekádách pak byla oblíbeným místem setkávání a sloužila jako restaurace.
Nová Baťovna má veškeré prvky moderního bydlení, které se však zcela plynule propojí s původními kamennými základy, původním opláštěním trámy apod.
Baťovna si zachovala svůj půvab i ráz díky několikaleté citlivé rekonstrukci, kde se v interiéru kombinují různé materiály jako kámen, sklo, kov, pohledový beton a hlavně dřevo.
Chata Baťovna prošla kompletní rekonstrukcí, všechny apartmány jsou zcela nové a kompletně zařízené nadčasovým nábytkem a kvalitními spotřebiči.
Co všechno objekt nabízí: saunu, ochlazovací bazének, venkovní sprchu, krytá parkovací stání, venkovní grill a ohniště, lyžárnu, prádelnu, kolárnu, úložné prostory...
O lokalitě: Malebnou krajinu i nedotčenou přírodu, to vše najdete na Šumavě v obci Javorník v nadmořské výšce 1065 m.n.m.
Obec Javorník je celoročním rekreačním střediskem s příležitostí pro aktivní vyžití jednotlivců i rodin.
Přímo v obci se nachází lyžařský vlek, rozhledna, kaplička, trasy na kola, nástup do bílé stopy, dvě restaurace a ve vedlejší obci také oblíbené přírodní koupaliště.
V dojezdové vzdálenosti skiareál Zadov, lanové centrum či NP Šumava...)
Vzhledem k tomu, že majitel Baťovny má mnohaleté zkušenosti se záchranou historických objektů i se stavbou nových moderních rezidencí, chtěl své dovednosti uplatnit v místě, které jej od začátku chytilo za srdce.
Věříme, že genius loci tohoto nádherného místa dýchne i na Vás.
Do you long for a cozy holiday apartment for yourself or your family without having to spend millions to acquire such a property?
We have the perfect solution for you!
Baťovna is the ideal year-round destination for anyone who wants to spend their free or work time in quality comfort surrounded by nature.
A long-term rental of a fully equipped apartment with complete amenities offers all this.
Baťovna (or Baťa House) is located in the very heart of the Šumava village of Javorník, in close proximity to a forest, to which all apartments offer uninterrupted views.
Apartment A1, featuring a 2+kk layout and an area of 39 m² with access to its own terrace, boasts a living room with a fully equipped kitchenette—including all appliances—and a built-in media wall with a smart TV, a comfortable convertible sofa, and a dining table with chairs. The apartment also includes a bedroom with a double bed and built-in wardrobes, a hallway with fitted closets, and a bathroom with a shower and WC. Underfloor heating is installed throughout the apartment.
An indoor parking space is provided with the apartment.
Rental price: 19,999 per month + a monthly service charge deposit of 2,500 (covering water, electricity, heating, and internet).
The original Baťovna, built between 1940 and 1941 by the Baťa company (under Jan Antonín Baťa), once served as a place of commerce. In later decades, it became a popular meeting spot and functioned as a restaurant.
The new Baťovna incorporates all the elements of modern living, seamlessly blending them with the original stone foundations, the authentic timber cladding, and more. It has retained its charm and character thanks to several years of sensitive renovation, during which the interior combines various materials such as stone, glass, metal, exposed concrete, and especially wood.
The Baťovna cottage has undergone a complete reconstruction; all apartments are entirely new and fully furnished with timeless furniture and high-quality appliances.
The property offers a variety of amenities including a sauna, a cooling pool, an outdoor shower, indoor parking, an outdoor grill and fire pit, a ski storage room, a laundry, bike storage, and additional storage spaces.
About the location: Picturesque landscapes and untouched nature await you in Šumava, in the village of Javorník at an altitude of 1065 m above sea level. The village of Javorník is a year-round recreational center with opportunities for active pursuits for both individuals and families.
Within the village you will find a ski lift, an observation tower, a small chapel, cycling routes, a ski-to-trail connection, two restaurants, and in a neighboring village, a popular natural swimming pool.
Within driving distance are the Zadov ski resort, a rope park, and the Šumava.
Given that the owner of Baťovna has many years of experience in the preservation of historical buildings and in the construction of new modern residences, he wanted to apply his skill
V okolí nemovitosti najdete

Pronájem bytuNa Valše, Sušice - Sušice nad Otavou, Plzeňský kraj- 2+kk
- 60 m²
17 500 Kč + 3 000 Kč19 000 Kč
Ušetříte 1 500 Kč
Stále hledáte to pravé?
Nastavte si hlídacího psa. Nabídky vybrané na míru dostanete souhrnně 1× denně e-mailem. S Premium profilem máte k ruce hlídačů rovnou 5 a když se něco objeví, informují vás obratem.



















