Prodej pozemku • 862 m² bez realitkyVlastějovice - Vlastějovice, Středočeský kraj
Vlastějovice - Vlastějovice, Středočeský krajTato nemovitost již od 19 537 Kč měsíčně s roční úrokovou sazbou od 4,19 %.
Nabízím k prodeji rozestavěný RD s pozemkem o rozloze 862 m², který je v mém osobním vlastnictví. Tento pozemek skýtá ideální příležitost pro rodinnou výstavbu či podnikatelskou realizaci, neboť se jedná o území vhodné k výstavbě dle aktuálních předpisů.
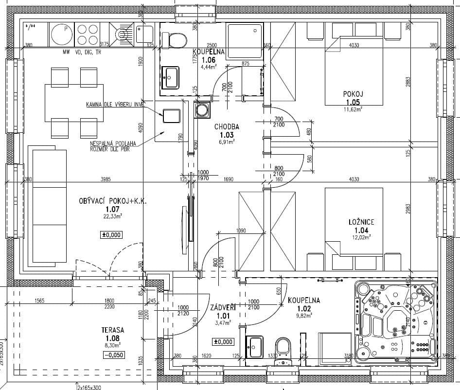
Na pozemku je již schválená stavba rodinného domu a hotové základové pasy pro dům, schválená projektová dokumentace a stavební povolení.
Pozemek se nachází na atraktivní lokalitě a nabízí potenciál pro rozvoj dle individuálních představ. Výhodou této nabídky je jednoduchost převodu vlastnictví a flexibilita využití pozemku, který čeká na nového majitele, jenž jej využije k naplnění svých stavebních a investičních záměrů.
V případě zájmu o bližší informace a sjednání prohlídky mne prosím kontaktujte skrz zprávy / komunikační platformu.
Cena dohodou
Parametry nemovitosti
| Dostupné od | 3. 11. 2025 |
|---|---|
| Typ pozemku | Stavební |
| Plocha pozemku | 862 m² |
| Číslo inzerátu | 961350 |
|---|---|
| Vlastnictví | Osobní |
| Cena za jednotku | 5 800 Kč / m2 |
Co tato nemovitost nabízí?
V okolí nemovitosti najdete
Tato nemovitost již od 19 537 Kč měsíčně s roční úrokovou sazbou od 4,19 %.
Stále hledáte to pravé?
Nastavte si hlídacího psa. Nabídky vybrané na míru dostanete souhrnně 1× denně e-mailem. S Premium profilem máte k ruce hlídačů rovnou 5 a když se něco objeví, informují vás obratem.





