
Prodej domu 4+kk • 160 m² bez realitkyJana Čermáka, Přišimasy - Přišimasy, Středočeský kraj
Tato nemovitost již od 59 193 Kč měsíčně s roční úrokovou sazbou od 4,59 %.
Rodinný dům s vinotékou v Přišimasech – domov s duší, komfortem a vizí do budoucna
Nabízíme k prodeji samostatně stojící cihlový rodinný dům v srdci obce Přišimasy, ideální pro rodiny, které hledají klid, zázemí a možnost spojit bydlení s podnikáním nebo prací z domova.
Dům se nachází v centru obce, v pěší vzdálenosti od školy, školky i obchodů. Díky výborné dostupnosti do Prahy autem, vlakem i autobusem představuje místo, kde se venkovská pohoda potkává s městským komfortem.
Přišimasy mají strategickou polohu u hranic Prahy, sousedí s Úvaly, odkud jezdí příměstské vlaky na Masarykovo i Hlavní nádraží. Na nádraží jste za 5 minut a za dalších 25 minut vystupujete v centru Prahy. Žádné kolony a žádný stres.
⸻
Místo, které roste s vámi
Obec Přišimasy právě prochází dynamickým rozvojem – budují se nové chodníky, chystá se spádová škola v Úvalech (otevření do 2 let) a probíhá výstavba nového obchvatu, který výrazně zrychlí cestu do Prahy a zároveň sníží provoz v obci.
To vše zvyšuje hodnotu nemovitostí i kvalitu života obyvatel.
⸻
Dům s charakterem, pohodlím i moderními technologiemi
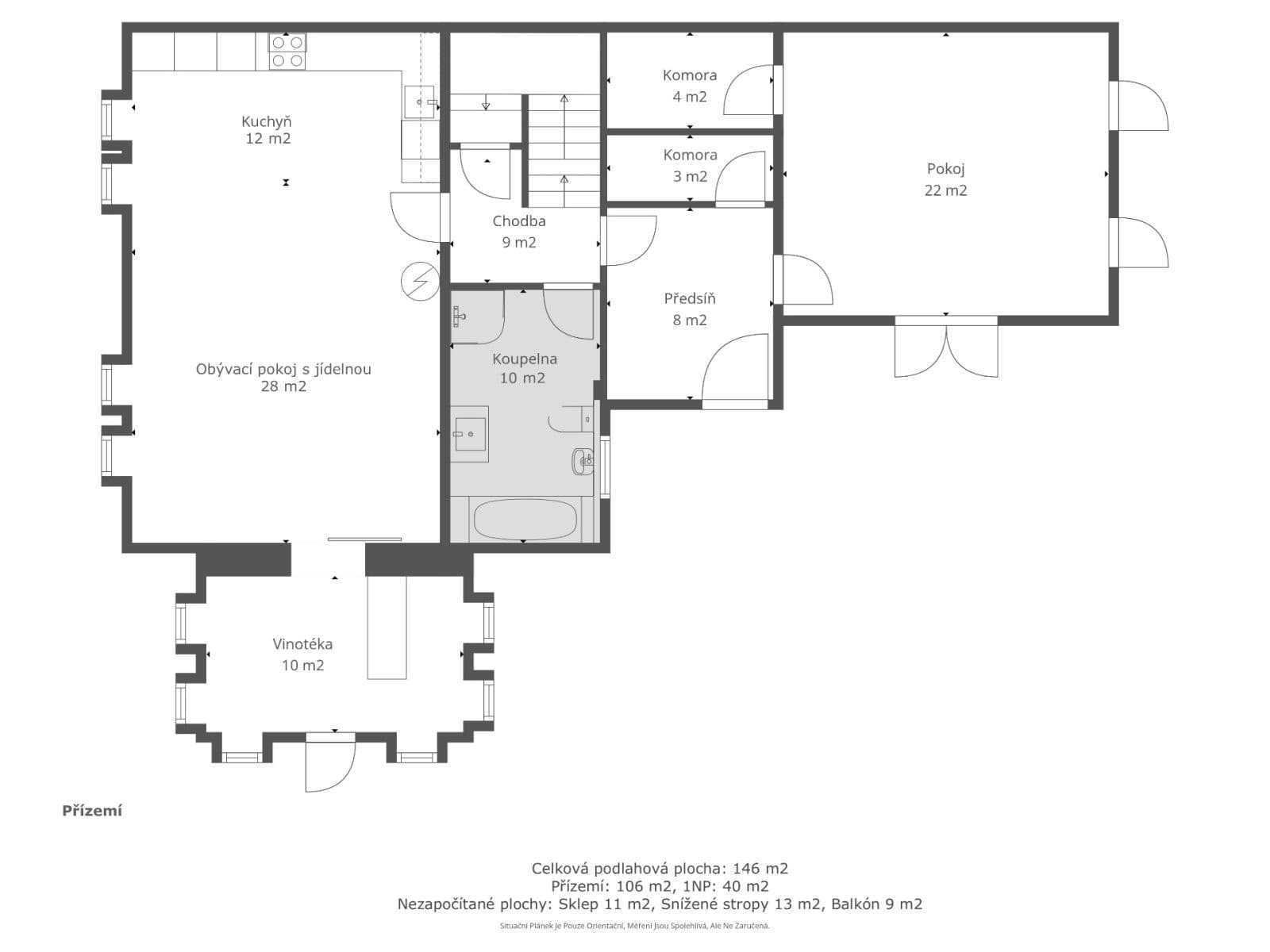
Dům nabízí užitnou plochu cca 160 m² a je ve výborném technickém stavu.
Součástí je zahrada o rozloze 457 m², která poskytuje soukromí i prostor pro relaxaci.
Zastavěná plocha činí 179 m².
Součástí prodeje je kompletní kuchyňská linka včetně elektrospotřebičů, takže nový majitel může dům okamžitě užívat bez nutnosti dalších investic.
K vybavení patří klimatizace, elektricky ovládaná brána a bezpečnostní systém, vše propojené s chytrým ovládáním přes mobilní telefon – včetně topení.
Dům je tedy nejen útulný, ale i technologicky moderní a energeticky úsporný.
K domu je již zpracována architektonická studie rozšíření dětského pokoje o přilehlý balkon – tedy možnost, jak elegantně zvětšit obytnou část a přidat další funkční prostor pro rodinu.
⸻
Vinotéka s potenciálem
Velkou přidanou hodnotou je stylová vinotéka, která je nyní vedena jako nebytová část.
Díky své dispozici ji však lze velmi snadno upravit na plnohodnotnou bytovou jednotku.
Tento prostor umožňuje spojit bydlení s podnikáním – ideální například pro maminku, která chce pracovat z domova, nebo jako showroom, e-shop, ateliér či kancelář.
Dům tak nabízí nejen domov, ale i příležitost pro osobní svobodu a finanční nezávislost.
⸻
✨ Shrnutí předností:
• klidné bydlení v centru obce Přišimasy
• strategická poloha u hranic Prahy
• sousedství s Úvaly a přímé vlakové spojení do centra Prahy
• stylová vinotéka – nebytová část s možností přestavby na byt
• užitná plocha cca 160 m², zahrada 457 m², zastavěná plocha 179 m²
• v ceně kuchyňská linka včetně elektrospotřebičů
• klimatizace, elektrická brána, bezpečnostní systém i topení ovládané mobilem
• architektonická studie pro rozšíření dětského pokoje o balkon
• nově budované chodníky, spádová škola v Úvalech, obchvat ve výstavbě
• ideální pro rodinu s dětmi nebo jako investice s potenciálem růstu
Pokud Vás tento dům zaujal, rádi Vás přivítáme na osobní prohlídce.
Parametry nemovitosti
| Dostupné od | 4. 11. 2025 |
|---|---|
| Konstrukce budovy | Cihla |
| Vybaveno | Částečně |
| Nízkoenergetický | Ano |
| PENB | B - Velmi úsporná |
| Užitná plocha | 160 m² |
| Rizika | Prověřit » |
| Stav | Dobrý |
|---|---|
| Dispozice | 4+kk |
| Číslo inzerátu | 961816 |
| Vlastnictví | Osobní |
| Poloha domu | Samostatný |
| Plocha pozemku | 570 m² |
| Cena za jednotku | 90 312,50 Kč / m2 |
Co tato nemovitost nabízí?
| Balkón 13,66 m² | |
| Sklep 5,58 m² | |
| MHD 4 minuty pěšky |
V okolí nemovitosti najdete
Tato nemovitost již od 59 193 Kč měsíčně s roční úrokovou sazbou od 4,59 %.

























