
Pronájem bytu 4+kk • 94 m² bez realitkyPražská, Úvaly - Úvaly u Prahy, Středočeský kraj
Pražská, Úvaly - Úvaly u Prahy, Středočeský krajVyžadováno pojištění odpovědnostiMáte o nabídku zájem?
Ušetřete 32 900 Kč na provizi a komunikujte se všemi majiteli.
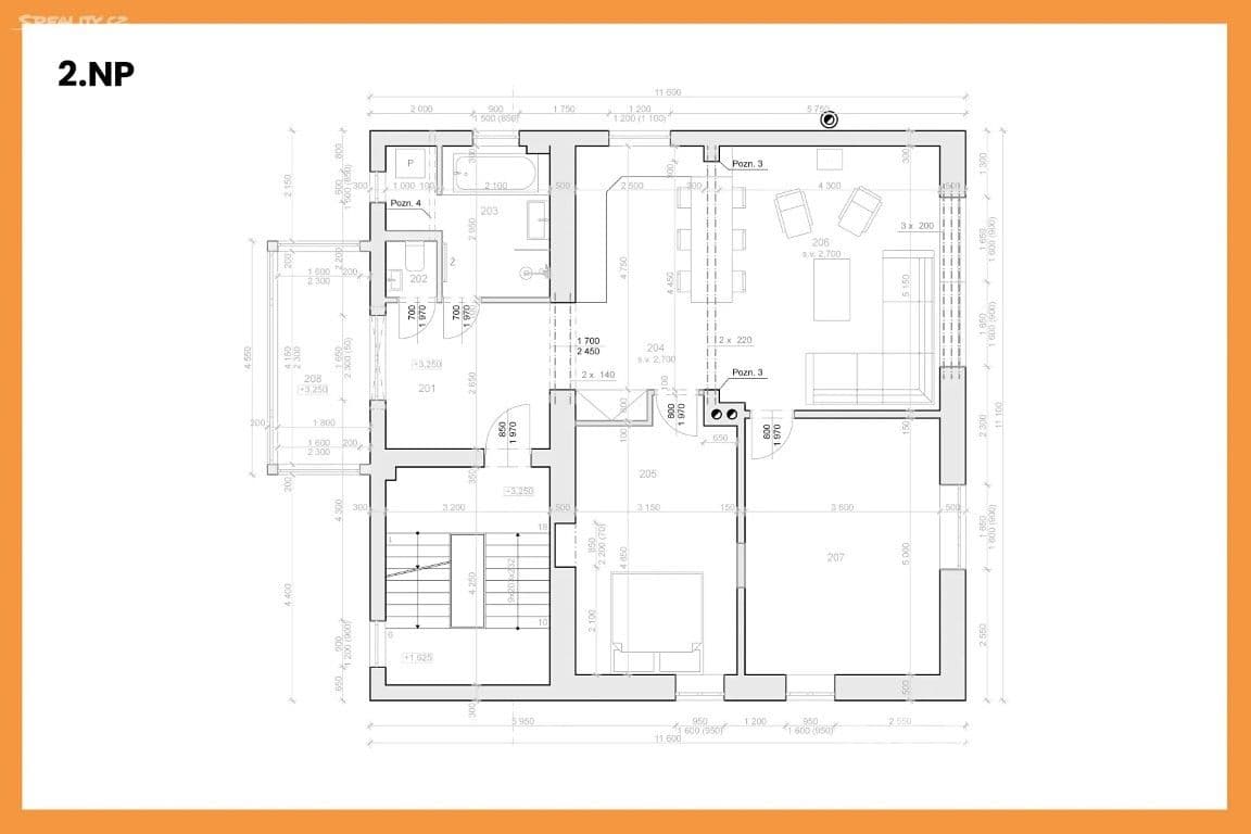
Nabízím k pronájmu krásný a prostorný 4+kk byt v cihlové budově. Byt se nachází ve 2. podlaží celkových 3 podlaží a o rozloze 94 m² muže nabídnout dostatek prostoru pro pohodlné bydlení. Nemovitost je ve velmi dobrém stavu a díky promyšlenému dispozicímu řešení se hodí pro rodiny i pro jednotlivce hledající kvalitní životní prostředí.
Pozn. Může být spíše 3+kk, čtvrtá místnost je menší, vhodná na pracovnu.
Byt je nevybavený, což poskytuje možnost přizpůsobit interiér dle vlastních představ a potřeb. V budově naleznete vše potřebné k běžnému bydlení, a ačkoli jsou některé servisní prvky, jako výtah nebo parkování, nedostupné, kompenzuje to klidná lokalita a kvalitní stav nemovitosti.
K dispozici od 1.1.2026.
V okolí nemovitosti najdete
Máte o nabídku zájem?
Ušetřete 32 900 Kč na provizi a komunikujte se všemi majiteli.
Stále hledáte to pravé?
Nastavte si hlídacího psa. Nabídky vybrané na míru dostanete souhrnně 1× denně e-mailem. S Premium profilem máte k ruce hlídačů rovnou 5 a když se něco objeví, informují vás obratem.









