
Prodej bytu 3+kk • 80 m² bez realitkynábřeží Závodu míru, Pardubice - Pardubice, Pardubický kraj
Tato nemovitost již od 29 267 Kč měsíčně s roční úrokovou sazbou od 4,19 %.
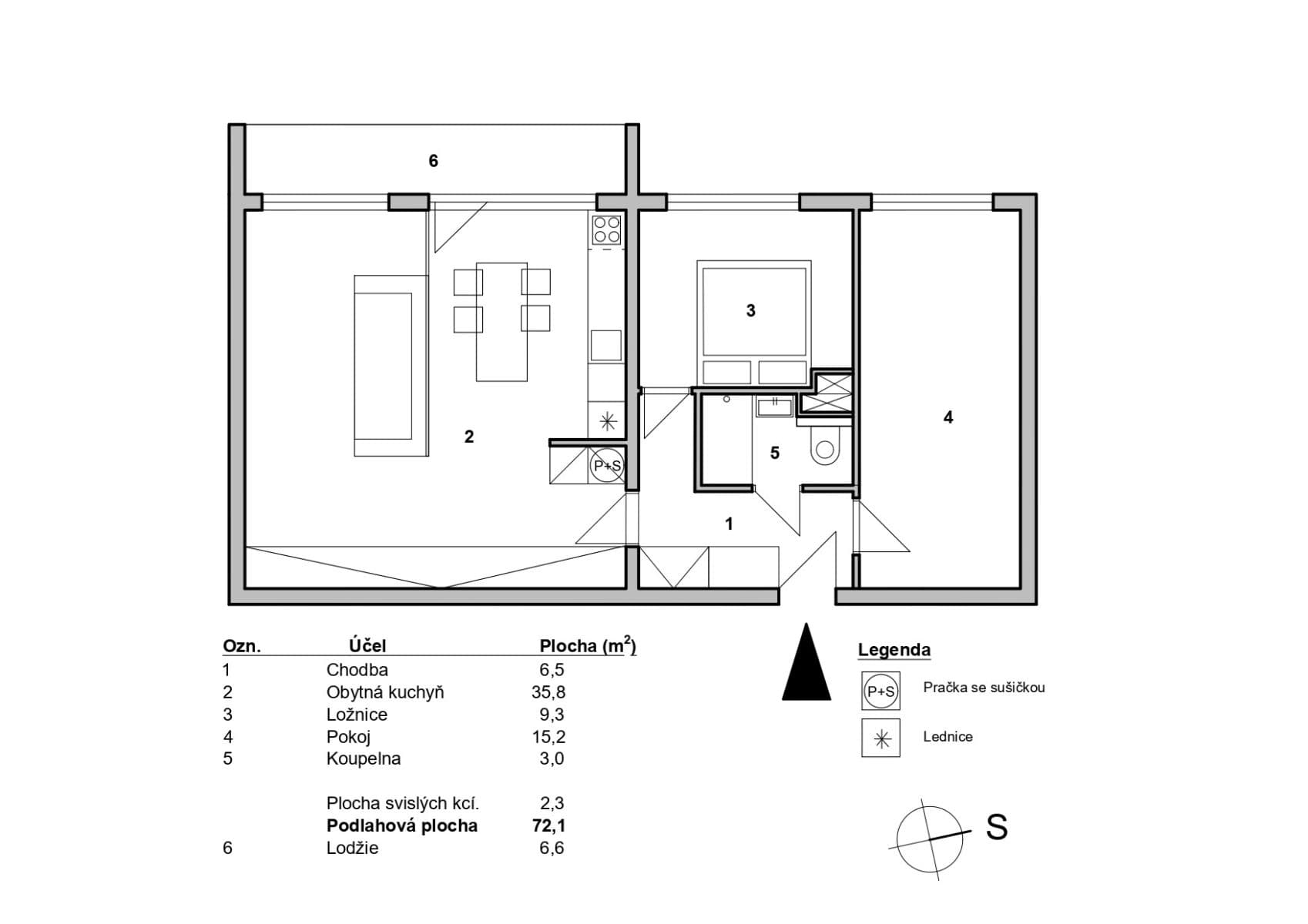
Jako přímý majitel prodám plně zařízený, moderně zrekonstruovaný bezbariérový byt 3+kk s lodžií v klidné a jedné z nejžádanějších části města Pardubice, v centru - ul. Nábřeží Závodu Míru 1822, v OV v blízkosti centra, nádraží, cyklostezek a zeleně. Celková plocha je 79.7 m² (podlahová plocha bytu dle §3 nař. Vlády č. 366/2013 je 72.1 m², dále uzamykatelný sklepní prostor 1.0 m² a lodžie 6.6 m²). Byt se nachází v 10.NP velmi udržovaného panelového domu (zateplení fasády, úprava společných prostor, vstupních dveří, nové stoupačky). Orientace všech místností na západ. Díky tomu je byt světlý a slunný.
Byt je po kompletní rekonstrukci (11/2025) navržené architektkou, kdy byla provedena celková změna dispozice a při které se myslelo na každý detail. V celém bytě položena kvalitní laminátová německá Meister podlaha, dále nová kuchyňská linka na míru vč. vestavné kvalitní lednice, myčky, horkovzdušné trouby, sklokeramické varné desky, digestoře a granitového dřezu, nová koupelna se sprchovým koutem, závěsným WC, dále vestavěný nábytek na míru v chodbě, ložnici, obývacím pokoji, koupelně, nové štukové omítky, elektroinstalace v mědi, nové rozvody odpadů, vody, interiérové dveře s obložkami, LED osvětlení, nové bezpečnostní a protipožární vchodové dveře s třídou ochrany 3. Odpad v kuchyni zajišťuje přečerpávací stanice Grundfos. V bytě příprava na internet. Příprava na pračku/sušičku je v samostatné vestavné skříni u kuchyňské linky. V bytě dostatek úložných prostor a možnost variability s umístěním ložnice a dětského pokoje/pracovny (do obou ložnic se vejde manželská postel). Vytápění a ohřev TUV je řešeno dálkově. Všechny kuchyňské spotřebiče se záručním listem (4 roky). Byt je prodáván včetně veškerého vybavení, které je již v ceně. V bytě po rekonstrukci nikdo nebydlel.
Byt nezatížen hypotékou, zástavou, břemeny. Nízké měsíční náklady (celkem 3122 kč, z toho FO je 1374 kč). V těsné blízkosti domu veškerá občanská vybavenost (škola, školka, sportoviště, OC, úřad, pošta, divadlo, cyklostezky, MHD). Parkování přímo před domem. Byt je připraven k okamžitému nastěhování. Vhodné pro vlastní bydlení nebo jako investice.
Přímý majitel - neplatí se provize - právní servis zajištěn, s případným financováním nemovitosti hypotékou může pomoci náš hypoteční specialista.
Kontakt Ing. Petr Jiráček. Více info o našich realizacích a standardu na www.amme.cz
Parametry nemovitosti
| Dostupné od | 23. 11. 2025 |
|---|---|
| Konstrukce budovy | Panel |
| Vybaveno | Vybaveno |
| Číslo inzerátu | 967614 |
| PENB | C - Úsporná |
| Užitná plocha | 80 m² |
| Cena za jednotku | 93 625 Kč / m2 |
| Stav | Novostavba |
|---|---|
| Dispozice | 3+kk |
| Podlaží | 10. podlaží z 14 |
| Vlastnictví | Osobní |
| Umístění | Centrum |
| Rizika | Prověřit » |
Co tato nemovitost nabízí?
| Bezbariérový přístup | |
| Lodžie 7 m² |
| Sklep 1 m² | |
| Výtah | |
| Parkování |
V okolí nemovitosti najdete
Tato nemovitost již od 29 267 Kč měsíčně s roční úrokovou sazbou od 4,19 %.
Stále hledáte to pravé?
Nastavte si hlídacího psa. Nabídky vybrané na míru dostanete souhrnně 1× denně e-mailem. S Premium profilem máte k ruce hlídačů rovnou 5 a když se něco objeví, informují vás obratem.























