Prodej domu • 314 m² bez realitkyUnhošť - Unhošť, Středočeský kraj
Tato nemovitost již od 97 609 Kč měsíčně s roční úrokovou sazbou od 4,19 %.
Cena: 24 980 000 Kč
Energetická náročnost: B – velmi úsporná
K nastěhování: od 1. 1. 2026
Moderní dvougenerační dům v klidné lokalitě
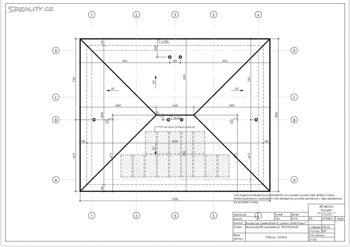
Nabízíme k prodeji celý moderní rodinný dům vhodný pro dvougenerační bydlení, investici nebo kombinaci vlastního bydlení a pronájmu. V domě se nacházejí dvě samostatné bytové jednotky, každá o dispozici 5+kk a obytné ploše cca 157 m². Celkem tedy dům nabízí 314 m² obytné plochy. Součástí jsou také dvě terasy o celkové ploše 64,8 m², garáž, další parkovací stání a zahrada o velikosti cca 450 m².
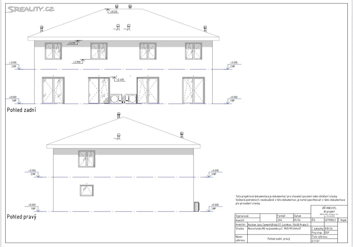
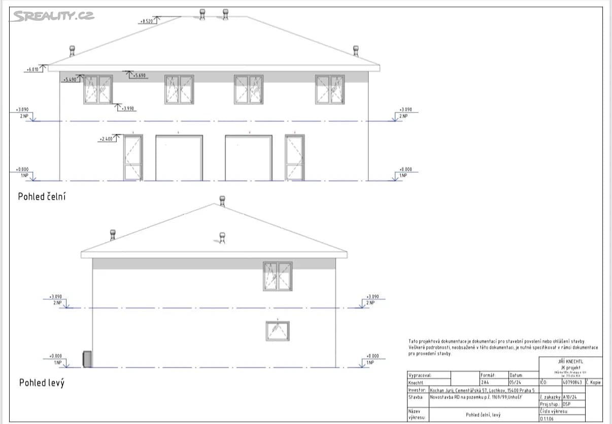
Dům byl navržen s důrazem na komfort, kvalitní materiály a moderní technologie. Díky energetické třídě B – velmi úsporná se můžete spolehnout na nízké provozní náklady a zdravé vnitřní prostředí.
Dispozice jednotlivých jednotek (oba byty totožné)
1. NP
garáž, zádveří, šatna, technická místnost, WC + sprcha, komora, prostorný obývací pokoj s kuchyňským koutem (41,5 m²)
2. NP
chodba, pracovna, 3 samostatné pokoje, 2 koupelny se dvěma WC, šatna
Technologie a vybavení
podlahové teplovodní vytápění, tepelné čerpadlo + elektrokotel, solární panely s vlastní baterií, vlastní zdroj vody s moderní filtrací, optické internetové připojení, velmi nízké provozní náklady
Lokalita a dostupnost
Unhošť – klidná část obce s kompletní občanskou vybaveností a výbornou dopravní dostupností.
Praha: 25–27 min autem
Kladno: 7 min
Školy a školky v okolí
ZŠ Unhošť – nám. T. G. Masaryka 58, MŠ Klíček – Pražská 26, Soukromá MŠ a ZŠ Slunce – Hájecká 190
Další školy: ZŠ Svárov, ZŠ Velké Přítočno, školy v Kladně
Volnočasové aktivity do 5 km
Pumptrack Unhošť, Rybník Bulhar, Naučná stezka „Za svatým Hubertem“, Cyklotrasa na Dědkův mlýn, Lesní komplexy u Unhoště, Vyhlídka Kožova hora, Kynologické cvičiště ZKO Unhošť, Lezecká stěna Kladno (cca 7 km)
Další výhody
klidná část obce s výhledem do přírody, garáž + parkovací stání, dvě plnohodnotné bytové jednotky – ideální pro rodinu, investici i kombinaci, moderní úsporné technologie
Parametry nemovitosti
| Dostupné od | 1. 1. 2026 |
|---|---|
| Konstrukce budovy | Cihla |
| Vybaveno | Nevybaveno |
| Nízkoenergetický | Ano |
| PENB | B - Velmi úsporná |
| Užitná plocha | 314 m² |
| Rizika | Prověřit » |
| Stav | Novostavba |
|---|---|
| Dispozice | Ostatní |
| Číslo inzerátu | 969853 |
| Vlastnictví | Osobní |
| Poloha domu | Samostatný |
| Plocha pozemku | 1 148 m² |
| Cena za jednotku | 79 554 Kč / m2 |
Co tato nemovitost nabízí?
| Garáž | |
| Parkování |
| Terasa 64,8 m² |
V okolí nemovitosti najdete
Tato nemovitost již od 97 609 Kč měsíčně s roční úrokovou sazbou od 4,19 %.
Stále hledáte to pravé?
Nastavte si hlídacího psa. Nabídky vybrané na míru dostanete souhrnně 1× denně e-mailem. S Premium profilem máte k ruce hlídačů rovnou 5 a když se něco objeví, informují vás obratem.











