
Prodej bytu 3+kk • 67 m² bez realitkyHvězdné údolí, Šternberk - Šternberk, Olomoucký kraj
Hvězdné údolí, Šternberk - Šternberk, Olomoucký krajParkování • Garáž • Sklep 10 m²Tato nemovitost již od 21 749 Kč měsíčně s roční úrokovou sazbou od 4,29 %.
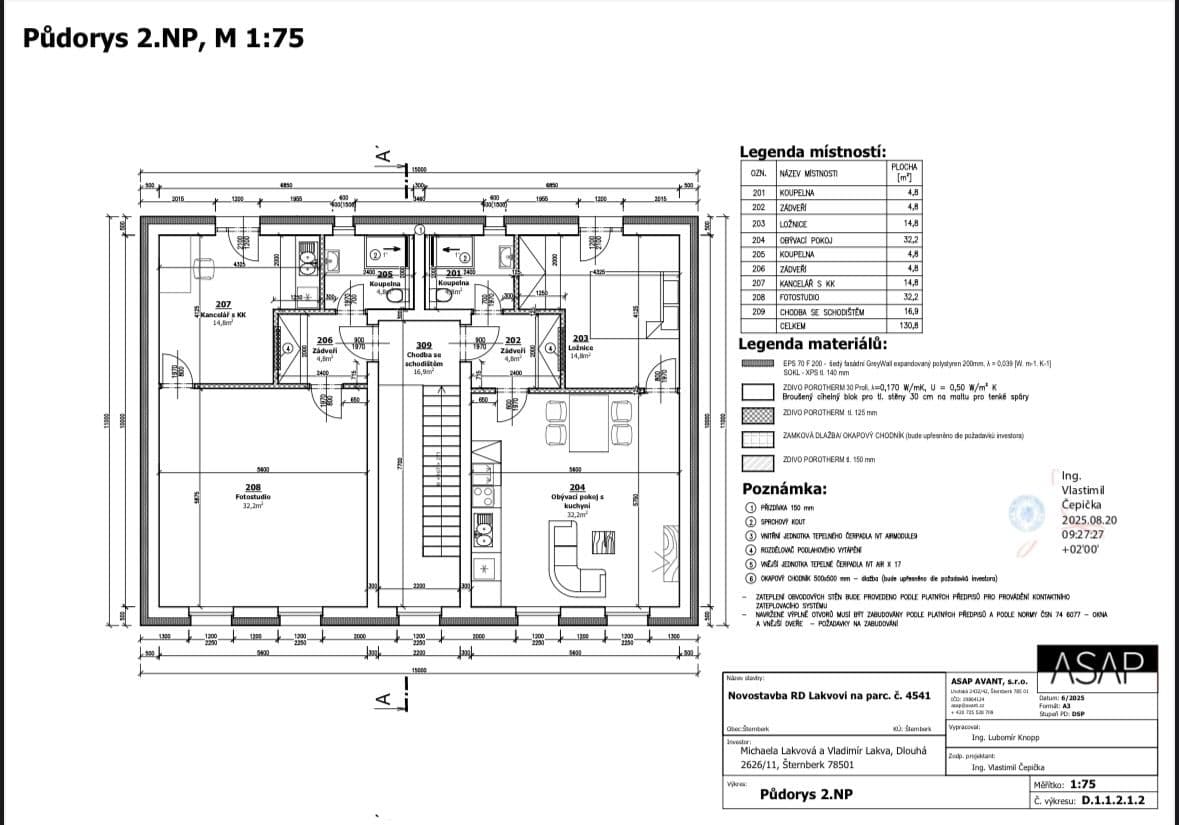
Nabízíme nové byty o výměře 67 m²+ sklepní kóje 10 m² v klidné lokalitě Hvězdné údolí s krásným výhledem na hrad a kostel.
Dům bude mít pouze 4 bytové jednotky.
Výhody a vybavení
• Podlahové vytápění + tepelné čerpadlo
• Fotovoltaika – nízké provozní náklady
• Okna s trojskly, příprava na elektrické žaluzie
• Keramická dlažba
• Interiérové dveře s obložkami
• Wallbox pro elektromobil
Předpokládané náklady: cca 3 000 Kč/měsíc
Cena
• Byt 3+kk (67 m²) + sklepní kóje: 5 500 000Kč
• Garážové stání: 400 000 Kč
• Celkem: 5 900 000 Kč
Parametry nemovitosti
| Dostupné od | 30. 6. 2026 |
|---|---|
| Konstrukce budovy | Cihla |
| Vybaveno | Nevybaveno |
| Provedení | Luxusní |
| Vlastnictví | Osobní |
| Umístění | Klidná část |
| Rizika | Prověřit » |
| Stav | Novostavba |
|---|---|
| Dispozice | 3+kk |
| Podlaží | 2. podlaží z 2 |
| Číslo inzerátu | 972674 |
| PENB | A - Mimořádně úsporná |
| Užitná plocha | 67 m² |
| Cena za jednotku | 82 090 Kč / m2 |
Co tato nemovitost nabízí?
| Sklep 10 m² | |
| Garáž | |
| Parkování |
V okolí nemovitosti najdete
Tato nemovitost již od 21 749 Kč měsíčně s roční úrokovou sazbou od 4,29 %.
Stále hledáte to pravé?
Nastavte si hlídacího psa. Nabídky vybrané na míru dostanete souhrnně 1× denně e-mailem. S Premium profilem máte k ruce hlídačů rovnou 5 a když se něco objeví, informují vás obratem.




