
Prodej domu 4+kk • 114 m² bez realitky, Bádensko-Württembersko
V novém, centrálně situovaném stavebním území v Dettingen an der Iller bude od jara 2026 postaveno 11 moderních řadových koncových a středních domů.
Zvláštním znakem kvality tohoto novostavby je udržitelná stavební metoda:
Všechny domy jsou stavěny podle standardu KfW-40 a budou certifikovány pečetí QNG-Plus. To zajišťuje energeticky efektivní bydlení, nízké provozní náklady a dlouhodobé udržení hodnoty nemovitosti. Navíc bude každý dům vybaven fotovoltaickou elektrárnou – další výhoda pro ekologicky uvědomělé a do budoucna orientované bydlení.
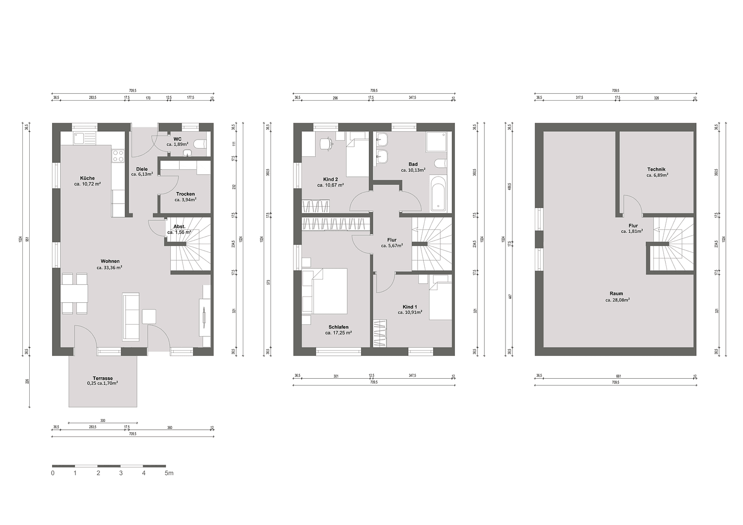
Obydlí jsou stavěna bez sklepa, avšak díky promyšlenému uspořádání s 4,5 až 6,5 obytnými místnostmi (v závislosti na zvolené speciální výbavě) a samostatným úložným prostorem poskytují dostatek místa pro individuální životní koncepce. Ať už jako prostorný rodinný domov nebo jako moderní řešení pro bydlení a práci pod jednou střechou – tyto domy nabízejí flexibilitu pro každou životní fázi.
Otevřený obývací a jídelní prostor tvoří srdce domu a zve k posezení. K dispozici jsou soukromé zahrady a terasy – ideální pro příjemné chvíle venku.
Klidná poloha přímo v obci, kombinovaná s krátkými vzdálenostmi k veškerým důležitým zařízením, činí tento projekt zvláště atraktivním řešením bydlení – jak pro rodiny s dětmi, tak i pro páry či pracující.
Pokud jsme vás zaujali, neváhejte nás kontaktovat. Těšíme se na váš dotaz.
-----------------------------------------------------------------------
V srdci Dettingen an der Iller, idylické obce v okrese Biberach (Bádensko-Württembersko), vzniká atraktivní novostavba, která bude od léta 2025 zpřístupněna k výstavbě. Centrální poloha stavebního území spojuje výhody klidného prostředí s výborným spojením k regionální infrastruktuře.
Stavební území se nachází přímo v centru obce a je obklopeno zavedenou obytnou zástavbou a upravenými zahradami. Nákupní možnosti pro každodenní potřeby, pekařství, mateřská škola i místní základní škola jsou dosažitelné pěšky během několika minut. Také sociální zařízení, hřiště a volnočasové možnosti jsou snadno dostupné, což činí toto místo obzvláště atraktivním pro rodiny.
Díky výhodné dopravní poloze se spojením na státní silnici a dálnici je města Memmingen, Ulm a Biberach an der Riß možné rychle dosáhnout. Veřejná doprava, jako například autobusové linky, je k dispozici a zajišťuje dobré propojení s regionální sítí.
Krajinně atraktivní okolí podél řeky Iller zve k dlouhým procházkám, cyklistickým výletům a turistice.
Přírodní prostředí spojené s živou vesnickou komunitou dělá z nového stavebního území ideální místo pro udržitelné a rodinně přívětivé bydlení.
-----------------------------------------------------------------------
Nejdůležitější klíčové údaje na první pohled:
• Standard KfW 40
• Certifikováno QNG-Plus
• Izolovaná cihlová zdiva
• Obytná plocha: 114 m² (volitelně až 137 m²)
• Pokoje: 4,5 (volitelně až 6,5)
• Vinylové podlahy a dlaždice
• Promyšlené dispozice s úložným prostorem
• Prostorný otevřený obývací/jídelní prostor
• Možnost dotahování podkroví (volitelně přístupné po schodišti)
• Koupelna s vanou a sprchou
• Garáž (volitelně)
Technické detaily:
• Trojitě zasklená plastová okna
• Vzduchové tepelné čerpadlo
• Podlahové vytápění
• Elektrické žaluzie
• Fotovoltaická elektrárna
• Bateriové úložiště (volitelně)
Možné volitelné vybavení (příklady speciálních přání):
– Dodatečně dokončené podkroví
– Bateriové úložiště pro fotovoltaickou elektrárnu
– Samostatná garáž
Instalace travní výsevu není součástí.
Plánovaný začátek stavby: jaro 2026; plánované dokončení: II. čtvrtletí 2027
– Energetický průkaz zatím není, protože se jedná o novostavbu
– Těšíme se na váš dotaz
Neváhejte nás kontaktovat na tel. čísle 08395 910769 0
Provozní přestávka 2025 / 2026
Vezměte prosím na vědomí naši provozní přestávku od 22. prosince 2025 do včetně 6. ledna 2026.
Od 7. ledna 2026 budeme opět k dispozici jako obvykle.
-----------------------------------------------------------------------
Impressum
Max Wild GmbH
Leutkircher Straße 22
88450 Berkheim
Telefon: +49 8395 920-0
Telefax: +49 8395 920-650
info@maxwild.com
www.maxwild.com
Oprávnění jednatelé: Max Wild, Roland Wild, Elmar Wild, Jochen Wild, Christian Wild
Okresní soud Ulm
Registrační číslo: HRB 640308
Identifikační číslo pro DPH dle § 27 a zákona o DPH:
DE 144891755
Právní upozornění: Navzdory pečlivé kontrole obsahu nepřebíráme zodpovědnost za obsah externích odkazů. Za obsah odkazovaných stránek jsou výhradně odpovědní jejich provozovatelé.
https://www.maxwild.com/impressum/
V okolí nemovitosti najdete
Stále hledáte to pravé?
Nastavte si hlídacího psa. Nabídky vybrané na míru dostanete souhrnně 1× denně e-mailem. S Premium profilem máte k ruce hlídačů rovnou 5 a když se něco objeví, informují vás obratem.









