Prodej nebytového prostoru • 76 m² bez realitkyWeiserstraße 28 Salzburg Schallmoos Salzburg 5020
Weiserstraße 28 Salzburg Schallmoos Salzburg 5020MHD 2 minuty pěškyW důsledku odchodu do důchodu prodávám okamžitě
BEZ PROVIZE
můj obchodní prostor přímo v bezprostřední blízkosti salzburského HLAVNÍHO NÁDRAŽÍ.
Obchodní prostory se nachází v přízemí obytného bloku s celkem 42 byty a 3 dalšími obchodními prostory.
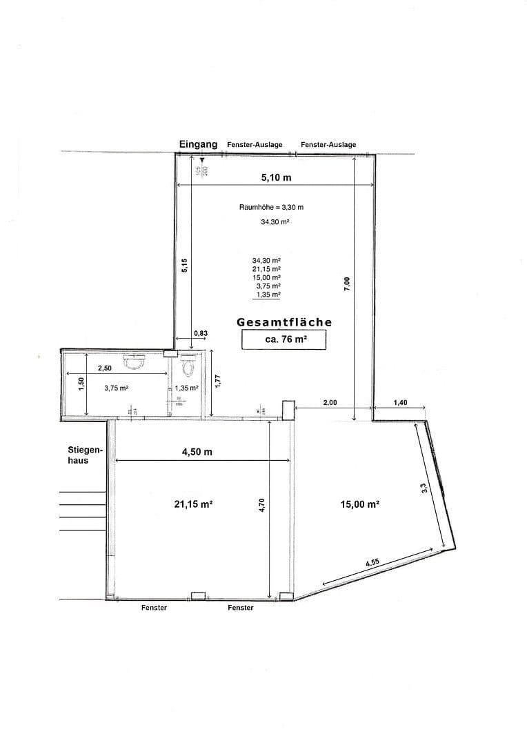
Celkový obchodní prostor o rozloze cca 76 m² je rozdělen do 3 místností:
1. Prodejní místnost (cca 50 m²)
a
2. Kancelář (cca 21 m²) – tyto dvě místnosti jsou odděleny pouze přechodnou příčnou zdí, kterou lze v případě potřeby odstranit.
3. Skladovací místnost s vodovodním připojením (resp. malá kuchyň má cca 5 m²) a WC (cca 1 m²)
Do obchodního prostoru vedou 2 vstupní dveře: jedna z ulice a druhá (těžké bezpečnostní dveře) v zadní části obytného domu resp. ve vstupní chodbě domu.
Skladovací místnost je od kanceláře oddělena bezpečnostními dveřmi.
Všechny výklady, dvě velká okna do vnitřního dvora a vstupní dveře jsou navíc chráněny žaluziemi.
Celý obchodní prostor byl před několika lety nákladně kompletně zrekonstruován: všechny elektroinstalace, zásuvky, vypínače, radiátory a dveře byly vyměněny.
Podlaha byla pokryta keramickými dlaždicemi.
Celý obchodní prostor byl nedávno nově natřen.
Byl instalován kabelový poplašný systém (který je nyní technicky zastaralý) a stále funguje.
Nabízené obchodní prostory se výborně hodí také jako kancelář.
Provozní náklady aktuálně činí cca 386 EUR včetně DPH, přičemž obchodní prostory nebyly v posledních letech vytápěny. Přímo pod obchodem se nachází topná místnost celého obytného bloku, díky čemuž teplota v místnosti klesá ani v zimě sotva pod 19 stupňů.
P.S. Nevhodné pro gastronomický provoz. Energetický certifikát je k dispozici. Obchodní prostory jsou rovněž k pronájmu (měsíční nájem 1.500 EUR).
Parametry nemovitosti
| Stav | Po rekonstrukci |
|---|---|
| Plocha nebytového prostoru | 76 m² |
| Číslo inzerátu | 978232 |
|---|---|
| Cena za jednotku | 4 342 € / m2 |
Co tato nemovitost nabízí?
| Bezbariérový přístup | |
| MHD 2 minuty pěšky |
V okolí nemovitosti najdete
Stále hledáte to pravé?
Nastavte si hlídacího psa. Nabídky vybrané na míru dostanete souhrnně 1× denně e-mailem. S Premium profilem máte k ruce hlídačů rovnou 5 a když se něco objeví, informují vás obratem.




















