Pronájem nebytového prostoru • 765 m² bez realitky5. května, Svitavy - Svitavy-předměstí, Pardubický kraj
Nabízím k pronájmu vytápěné nebytové prostory o celk. rozloze 765 m², který se nachází v cihlové budově a je udržován ve velmi dobrém.
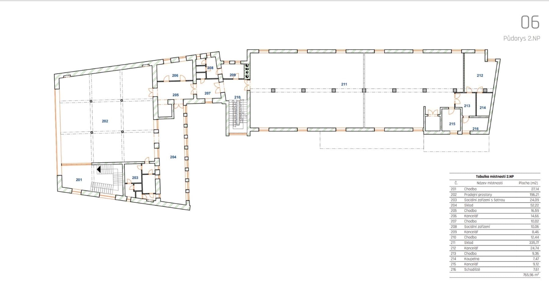
Prostory jsou vhodné pro prodejnu, sklad, kanceláře, lehkou výrobu, fitness centrum či jiné podnikatelské záměry ve 2 NP v centru Svitav ulice 5. května 331, blízko naměstí, Prostory nabízí několik možností přístupu – z hlavního vchodu po schodišti, dále ze společného uzamčeného dvora. Pro pohodlné zásobování je k dispozici nákladní výtah s nosností 1 t přímo z nakládací rampy. Samozřejmostí je také samostatné únikové schodiště.
Velkou výhodou je bezproblémový přístup pro kamiony přímo na uzamčený dvůr, což zajišťuje komfortní logistiku.
Velikost prostor lze flexibilně přizpůsobit dle potřeb nájemce.
Pro více informací nás neváhejte kontaktovat.
I am offering for rent heated non-residential premises with a total area of 765 m², located in a brick building and maintained in very good condition. The premises are suitable for a retail shop, warehouse, offices, light manufacturing, a fitness center, or other business ventures. They are situated on the second floor in the center at Svitav, 5. května 331, close to the town square. The space offers several access options – from the main entrance via a staircase and also from a shared locked courtyard.
For convenient loading, a freight elevator with a capacity of 1 ton is available directly from the loading ramp. There is also a separate emergency staircase. A great advantage is the unhindered access for trucks directly to the locked courtyard, ensuring smooth logistics.
The size of the space can be flexibly adjusted to meet the tenant's needs.
For more information, please do not hesitate to contact us.
Parametry nemovitosti
| Dostupné od | 10. 1. 2026 |
|---|---|
| Konstrukce budovy | Cihla |
| Číslo inzerátu | 979957 |
| Poloha nebytového prostoru | Samostatný |
| Plocha nebytového prostoru | 765 m² |
| Stav | Velmi dobrý |
|---|---|
| Vybaveno | Částečně |
| PENB | D - Méně úsporná |
| Umístění | Centrum |
| Cena za jednotku | 99 Kč / m2 |
Co tato nemovitost nabízí?
| Výtah |
V okolí nemovitosti najdete
Stále hledáte to pravé?
Nastavte si hlídacího psa. Nabídky vybrané na míru dostanete souhrnně 1× denně e-mailem. S Premium profilem máte k ruce hlídačů rovnou 5 a když se něco objeví, informují vás obratem.









