Prodej bytu 4+1 • 83 m² bez realitkyKirschentalgasse 10 Innsbruck Mariahilf Tirol 6020
Kirschentalgasse 10 Innsbruck Mariahilf Tirol 6020MHD 2 minuty pěšky • Výtah • GarážSoukromý prodej!
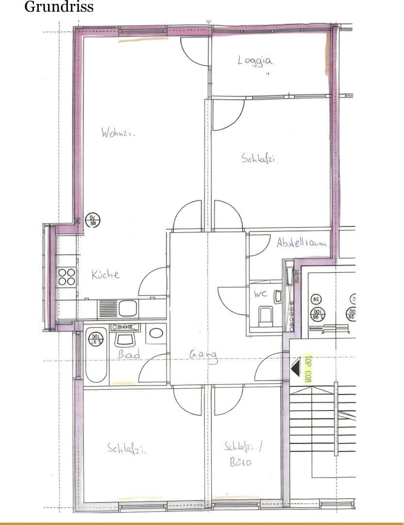
Světlý 4-pokojový byt v centrální a klidné lokalitě
V oblíbené rezidenční oblasti Innsbruck „Hötting“ se nachází tento světlý a velmi dobře půdělající 4-pokojový byt s lodžií.
K bytu náleží parkovací místo v podzemní garáži a sklepní kout.
Velmi tichá poloha dokonale doplňuje tento kupní objekt.
Centrum města je dosažitelné pěšky během několika minut.
Blízké zásobování je zajištěno díky několika obchodům.
Mateřská škola a základní škola jsou dosažitelné během 3 minut.
Provozní náklady € 541,65
Včetně rezervního fondu
V současné době je byt pronajat do 28. 02. 2027.
V okolí nemovitosti najdete
Stále hledáte to pravé?
Nastavte si hlídacího psa. Nabídky vybrané na míru dostanete souhrnně 1× denně e-mailem. S Premium profilem máte k ruce hlídačů rovnou 5 a když se něco objeví, informují vás obratem.















