
Prodej bytu 2+1 • 61 m² bez realitkyMerhautova, Brno - Černá Pole, Jihomoravský kraj
Merhautova, Brno - Černá Pole, Jihomoravský krajČástečně vybaveno • Sklep 8 m²Využít program Bydlím hned, koupím později
Máte-li zájem, vyplňte prosím tento formulář: https://forms.gle/xcQ9TtYEF3QHZVmF8
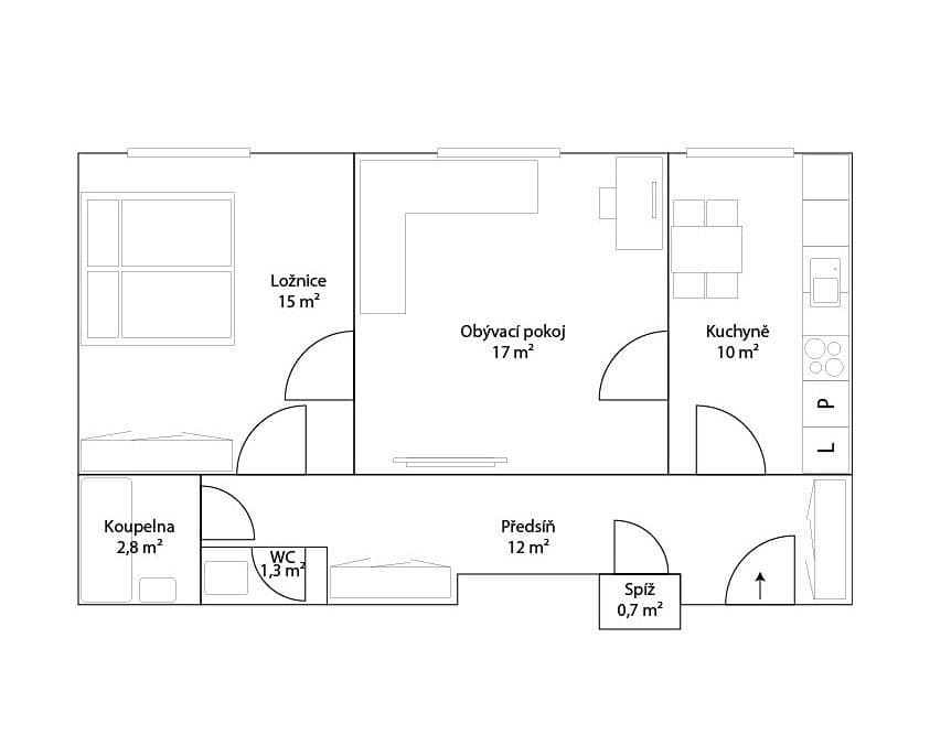
Jako přímý majitel prodám byt 2+1 o rozloze 61m² v cihlovém domě na ulici Merhautova. K bytu náleží 2 sklepy (velká sklepní kóje 6m² a zděný sklep 2m²) a dále je možné využívat společných prostor kočárkárny, prádelny a sušárny.
Západní orientace bytu nabízí velké množství světla, které prochází do všech obytných místností.
Dispoziční řešení 2+1 nabízí možnost dvou neprůchozích pokojů, což ocení například studenti v podnájmu. Prostorná chodba nabízí velké množství úložných prostor.
Rozlehlý udržovaný pozemek před a za domem je ohraničen plotem, což ocení hlavně maminky s dětmi. Největší výhodou je vlastní zatravněný dvůr, kde se nachází příjemné posezení v zeleni se skluzavkou a pískovištěm pro děti.
V roce 2019 prošel celý dům celkovou rekonstrukcí inženýrských sítí a společných prostor. V následujících letech se plánují i další úpravy - zateplení, které by zlepšilo energetickou náročnost z D na B, možná dokonce A. SVJ má k této rekonstrukci již zpracované podklady. Byla by zde i možnost dokoupit balkón.
Parametry nemovitosti
| Dostupné od | 30. 7. 2026 |
|---|---|
| Konstrukce budovy | Cihla |
| Vybaveno | Částečně |
| Číslo inzerátu | 980847 |
| PENB | D - Méně úsporná |
| Užitná plocha | 61 m² |
| Cena za jednotku | 108 180 Kč / m2 |
| Stav | Dobrý |
|---|---|
| Dispozice | 2+1 |
| Podlaží | 3. podlaží z 4 |
| Vlastnictví | Osobní |
| Umístění | Centrum |
| Rizika | Prověřit » |
Co tato nemovitost nabízí?
| Sklep 8 m² |
V okolí nemovitosti najdete
Využít program Bydlím hned, koupím později
Stále hledáte to pravé?
Nastavte si hlídacího psa. Nabídky vybrané na míru dostanete souhrnně 1× denně e-mailem. S Premium profilem máte k ruce hlídačů rovnou 5 a když se něco objeví, informují vás obratem.

















