
Prodej pozemku • 323 m² bez realitkyNepovolená, Praha - Dubeč
Nepovolená, Praha - DubečMHD 3 minuty pěškyTato nemovitost již od 32 940 Kč měsíčně s roční úrokovou sazbou od 4,19 %.
Nabízíme k prodeji STAVEBNÍ POZEMEK včetně STAVEBNÍHO POVOLENÍ ve stávající zástavbě městské části Praha 10 - Dubeč. Ideální pro ty, kteří chtějí stavět vlastní dům bez rizika zdlouhavého získávání stavebního povolení, případně pro ty jež hledají pouze stavební.
K prodeji nabízíme samostatně i druhý přiléhající pozemek p.č. 307/4 (328 m2, vč Stavebního povolení)
- k záměru lze přistoupit i jako k investici, kdy v jedné nemovitosti lze bydlet a druhou pronajímat či prodat.
Při nastavení vzájemně vyhovujících časových a finančních mechanizmů je prodejní cena k jednání.
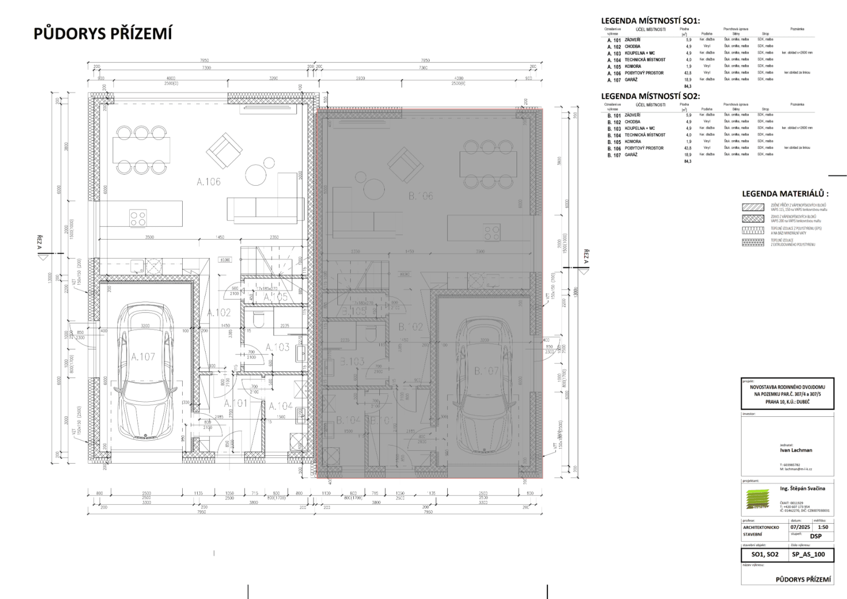
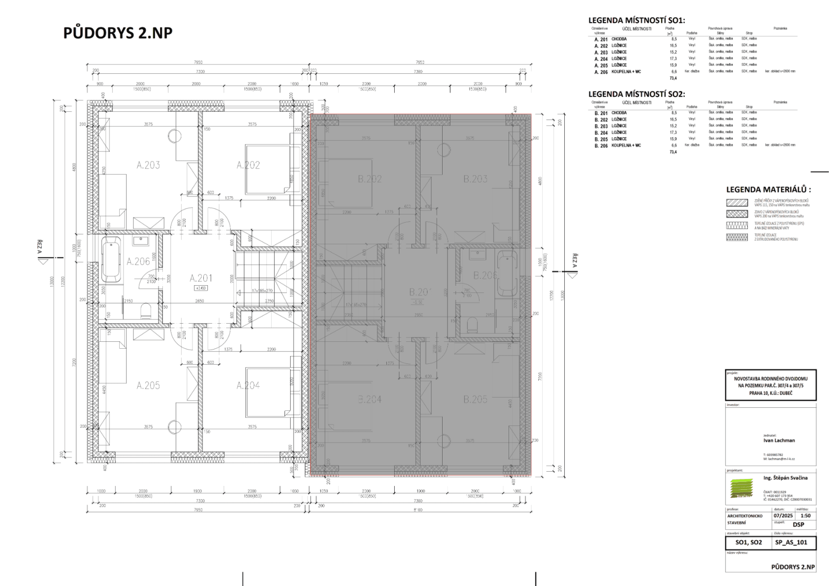
Nabízení pozemek parcelní číslo 307/5 (k.ú. Dubeč) o rozloze 323 m2 představuje skvělou investiční příležitost pro bydlení s veškerým zázemím. Klíčovou výhodou je již zahrnuté STAVEBNÍ POVOLENÍ pro rodinný dům, což zjednodušuje a zrychluje proces výstavby.
V případě zájmu jsme schopni Vám rodinný dům i zrealizovat a ve vámi zvoleném standartu.
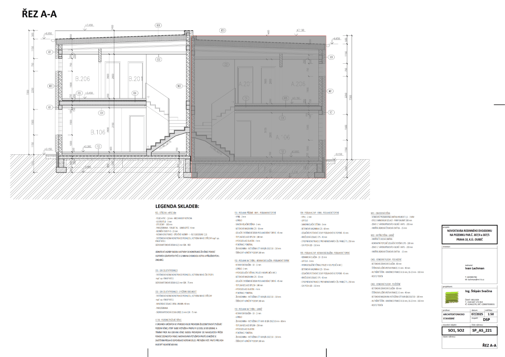
Dvoupodlažní rodinný dům je připojen na veřejné rozvody elektrické energie, vodovodu a kanalizace. Vytápění je zajištěno tepelným čerpadlem a podlahovým vytápěním. Výměna vzduchu je zajištěno rekuperační jednotkou vzduchu.
Pozemek je situačně velmi příhodně umístěn s dobrou dostupností městské hromadné dopravy, autobusových linek i přilehlé silniční komunikace, což činí cestování a spojení s centrem Prahy velmi pohodlným.
V přiléhající komunikaci jsou vedeny rozvody elektřiny, kanalizace, vodovodu, plynu a datové rozvody.
Lokalita poskytuje klid a pohodu, kdy pozemek je umístěn v proluce stávající zástavby (nejedná se o "satelitní bydlení"), přičemž zachovává blízkost městské civilizace a všech důležitých služeb.
Pokud hledáte pozemek s možností zahájení stavby na jaře příštího roku (cca 06/2026), tato nabídka je pro vás ideální volbou.
Prohlídka parcely je možná po předchozí domluvě. Pro více informací o této nemovitosti nebo sjednání prohlídky nás prosím kontaktujte nebo vyplňte níže uvedený formulář, rádi Vám pomůžeme.
Prosím zástupce realitních kanceláří, aby nás nekontaktovali s nabídkou svých služeb.
We are offering for sale a CONSTRUCTION LAND, including a BUILDING PERMIT, in the existing development of the Prague 10 – Dubeč district. It is ideal for those who want to build their own house without the risk of a lengthy permit approval process, or for those looking for the opportunity to construct a single-family home.
In addition to the main plot, we also offer a second adjacent plot (which can be considered an investment opportunity where one property can be used for residential purposes and the other rented out or sold).
With mutually agreeable timing and financial arrangements, the selling price is negotiable.
The offered 323 m² plot represents an excellent investment opportunity for residential purposes with all necessary amenities. A key advantage is the already approved BUILDING PERMIT for a family house, which simplifies and accelerates the planning and construction process.
The two-story family house is connected to public electricity, water, and sewage networks. Heating is provided by a heat pump and underfloor heating, and air exchange is ensured by a recuperation unit.
The plot is very conveniently located with good access to public transportation, bus lines, and nearby roads, making commuting to the center of Prague very easy. In the adjacent street, the networks for electricity, sewage, water, gas, and data are already installed.
The area offers peace and tranquility as the plot is situated in a clearing within the existing built-up area (not in so-called “satellite housing”), while still being close to urban civilization and all essential services.
If you are looking for a plot that allows construction to start in the spring of next year, this offer is an ideal choice.
Viewings are possible by prior arrangement. For more information about this property or to schedule a viewing, please contact us or fill out the form below – we will be happy to assist you.
Please, representatives of real estate agencies, refrain from contacting us with offers of your services.
Parametry nemovitosti
| Dostupné od | 16. 1. 2026 |
|---|---|
| Typ pozemku | Stavební |
| Plocha pozemku | 323 m² |
| Číslo inzerátu | 981955 |
|---|---|
| Vlastnictví | Osobní |
| Cena za jednotku | 26 099 Kč / m2 |
Co tato nemovitost nabízí?
| MHD 3 minuty pěšky |
V okolí nemovitosti najdete
Tato nemovitost již od 32 940 Kč měsíčně s roční úrokovou sazbou od 4,19 %.

Prodej pozemkuŠeříková, Kamenice - Štiřín, Středočeský kraj- 1122 m²
6 990 000 Kč7 900 000 Kč
Ušetříte 910 000 Kč



Stále hledáte to pravé?
Nastavte si hlídacího psa. Nabídky vybrané na míru dostanete souhrnně 1× denně e-mailem. S Premium profilem máte k ruce hlídačů rovnou 5 a když se něco objeví, informují vás obratem.







