Pronájem bytu Třípokojový • 72 m² bez realitkyJ. Mudrocha, Senica - Senica, Trnavský kraj
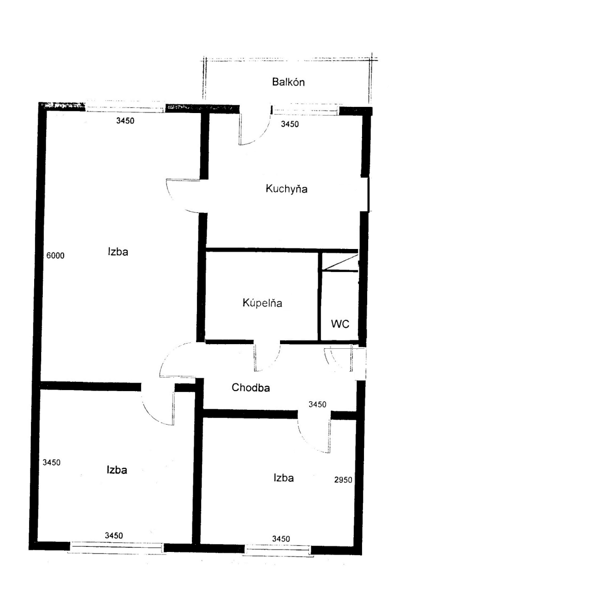
J. Mudrocha, Senica - Senica, Trnavský krajČástečně vybaveno • Balkón 3 m²Vyžadováno pojištění odpovědnostiVyžadováno ověření bezdlužnostiPonúkam 3-izbový byt s balkónom na ul. J. Mudrocha k dlhodobému prenájmu. Byt je po kompletnej rekonštrukcii v r.2022. Nachádza sa na 2.poschodí /3NP/zo 7-ich v zateplenej bytovke s novým výťahom. Je veľmi teplý a má výbornú polohu voči nákupným centrám, školám, poliklinike a zastávkam MHD.
Je čiastočne zariadený – vstavaná skriňa v jednej izbe.
Bez spotrebičov/v prípade záujmu sa dá dohodnúť/. Kúpeľňa má vaňu aj sprchový kút. V kuchyni je nová kuchynská linka, na podlahách je vinyl a laminát, nové zárubne s dverami, okná sú plastové. Nové elektrické rozvody, el. zásuvka aj na balkóne.
Byt je dostupný pre nefajčiarov, bez zvierat. Výška nájomného je 590 €/mesiac bez energií. Za byt sa platí vratná kaucia dva nájmy.
Byt je k dispozícii ihneď. RK prosím nekontaktovať.
Záujemcovia kontaktovať telefonicky alebo mailom.
Parametry nemovitosti
| Dostupné od | 20. 2. 2026 |
|---|---|
| Konstrukce budovy | Panel |
| Vybaveno | Částečně |
| Číslo inzerátu | 982730 |
| Užitná plocha | 72 m² |
| Stav | Velmi dobrý |
|---|---|
| Dispozice | Třípokojový |
| Podlaží | 3. podlaží z 8 |
| Umístění | Sídliště |
| Cena za jednotku | 8 € / m2 |
Co tato nemovitost nabízí?
| Balkón 3 m² | |
| Bezbariérový přístup |
V okolí nemovitosti najdete
Stále hledáte to pravé?
Nastavte si hlídacího psa. Nabídky vybrané na míru dostanete souhrnně 1× denně e-mailem. S Premium profilem máte k ruce hlídačů rovnou 5 a když se něco objeví, informují vás obratem.








