
Pronájem nebytového prostoru • 36 m² bez realitkyPodnikatelská, Praha - Běchovice
Podnikatelská, Praha - BěchoviceČástečně vybaveno • ParkováníVyžadováno pojištění odpovědnostiVyžadováno ověření bezdlužnostiMáte o nabídku zájem?
Ušetřete 3 744 Kč na provizi a komunikujte se všemi majiteli.
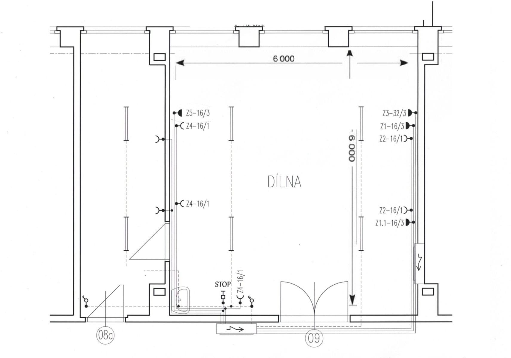
Nabízíme k pronájmu malý výrobní prostor – dílnu o ploše 36 m² s možností rozšíření o 12 m².
💰Cena celkem: 9 000 Kč/měsíc
- nájemné: 3 744 Kč (104 Kč/m²)
- služby 5 256 Kč (136 Kč/m²)
🏢Popis prostoru:
Vhodné pro výrobu, dílnu, sklad, provozovnu
- elektroinstalace 230/400 V (5× 230 V, 4× 400 V – 32 A / 16 A)
- umyvadlo
- podávací jeřábek, nosnost 200 kg (otočné rameno), nezapojený, možnost
zapojení/odstranění
- umístění v budově - přízemí (1. NP)
- bezpečnostní vypínač el. přívodu
Zázemí a služby:
- parkování na vlastních pozemcích před nebo za budovou
- bezbariérový přístup
- objekt je střežen vrátnicí a PCO (pult centrální ochrany)
- internet dle potřeby nájemce
📍Lokalita:
- Areál výzkumných ústavů Běchovice, Podnikatelská 550, Praha 9
Parametry nemovitosti
| Dostupné od | 21. 1. 2026 |
|---|---|
| Konstrukce budovy | Skeletová |
| Číslo inzerátu | 983427 |
| Poloha nebytového prostoru | Řadový |
| Plocha nebytového prostoru | 36 m² |
| Stav | Velmi dobrý |
|---|---|
| Vybaveno | Částečně |
| PENB | C - Úsporná |
| Umístění | Klidná část |
| Cena za jednotku | 104 Kč / m2 |
Co tato nemovitost nabízí?
| Parkování |
V okolí nemovitosti najdete
Máte o nabídku zájem?
Ušetřete 3 744 Kč na provizi a komunikujte se všemi majiteli.
Stále hledáte to pravé?
Nastavte si hlídacího psa. Nabídky vybrané na míru dostanete souhrnně 1× denně e-mailem. S Premium profilem máte k ruce hlídačů rovnou 5 a když se něco objeví, informují vás obratem.








