Prodej domu • 398 m² bez realitkyHředle - Hředle u Zdic, Středočeský kraj
Hředle - Hředle u Zdic, Středočeský krajČástečně vybaveno • Parkování • Sklep 20 m²Tato nemovitost již od 49 625 Kč měsíčně s roční úrokovou sazbou od 4,19 %.
Prodej rodinného domu s velkým pozemkem v srdci přírody – klid, prostor, soukromí, skvělá dostupnost
Nabízíme k prodeji prostorný dům v klidné části obce Hředle nedaleko Zdic. Lokalita je součástí CHKO Křivoklátsko, oblíbené u turistů a milovníků cyklistiky. Výborná dopravní dostupnost – 4 km od dálnice D5, autem 20 minut na okraj Prahy a 25 minut na okraj Plzně.
Občanská vybavenost a doprava:
• škola a školka v přilehlé obci Zdice (4 km)
• autobusové spojení do Zdic i do Prahy (PID)
• ze Zdic vlakové spojení směr Praha, Plzeň, České Budějovice
• přímo v obci obchod a restaurace, v obci Žebrák (6 km) COOP 24/7
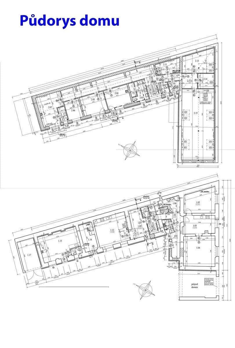
Nemovitost má tvar L a je částečně zrekonstruována – přední část prošla rozsáhlou rekonstrukcí: nová střecha, krov, zateplení, nové rozvody vody a elektřiny, betonové podlahy a stropy, plastová okna, plovoucí podlahy. Nemovitost lze vytápět tuhými palivy i elektrokotlem. Celkem bylo zrekonstruováno přes 200 m² obytné plochy.
Dispozice:
• Přízemí: bytová jednotka 2+1, obývací pokoj, kuchyň, ložnice, koupelna s WC, samostatná toaleta – v současné době pronajímáno
• Patro: bytová jednotka 3+kk, obývací pokoj s kuchyní, prostorná ložnice, pokoj, dvě koupelny s WC, prádelna.
Obě patra mají samostatný vchod, lze je ale propojit v jednu velkou bytovou jednotku.
Další část domu je určena k rekonstrukci, což nabízí skvělou možnost přizpůsobit si nemovitost podle vlastních představ, nebo ji rozšířit. K dispozici jsou již vypracované projekty (dům i stodola). Nemovitost disponuje prostornou zahradou, která skýtá dostatek soukromí.
Celkové parametry:
• obytná plocha: 398 m²
• pozemek: 1 153 m²
• garáž
• stodola v zadní části pozemku: 100 m²
Tento dům je vhodný jak pro vícegenerační bydlení, tak i pro investiční záměr – například pronájem dvou samostatných bytů nebo vybudování penzionu v turisticky atraktivní oblasti.
Parametry nemovitosti
| Stav | Dobrý |
|---|---|
| Dispozice | Ostatní |
| Číslo inzerátu | 983450 |
| PENB | G - Mimořádně nehospodárná |
| Užitná plocha | 398 m² |
| Rizika | Prověřit » |
| Konstrukce budovy | Smíšená |
|---|---|
| Vybaveno | Částečně |
| Vlastnictví | Osobní |
| Poloha domu | Samostatný |
| Plocha pozemku | 1 153 m² |
| Cena za jednotku | 31 910 Kč / m2 |
Co tato nemovitost nabízí?
| Sklep 20 m² | |
| Parkování |
V okolí nemovitosti najdete
Tato nemovitost již od 49 625 Kč měsíčně s roční úrokovou sazbou od 4,19 %.
Stále hledáte to pravé?
Nastavte si hlídacího psa. Nabídky vybrané na míru dostanete souhrnně 1× denně e-mailem. S Premium profilem máte k ruce hlídačů rovnou 5 a když se něco objeví, informují vás obratem.

















